← Back to Sheffield City Council

Status

Awaiting decision
Received
Last month
New dwellings
n/a

Full Proposal

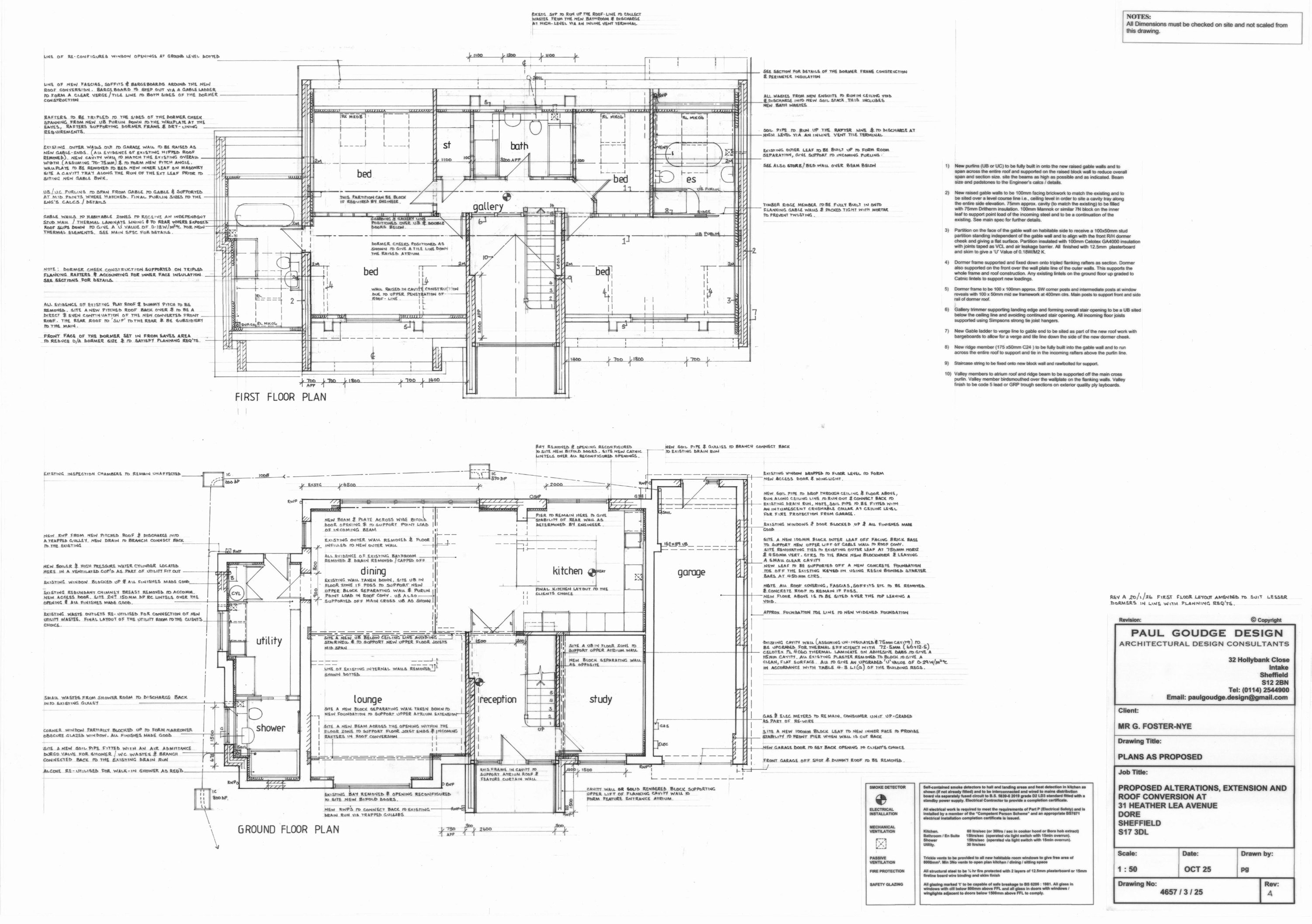
Hip to gable roof conversion, replacement flat roof to gable pitched roof over garage and existing extension, 2no front dormer windows, rear dormer extension and gable end to front elevation of dwellinghouse

Documents

Applicationformredacted
Application Form
Not archived · Council Link
Block plan
Application (Drawings)
Not archived · Council Link
Existing elevations
Application (Drawings)
Not archived · Council Link
Existing plans
Application (Drawings)
Not archived · Council Link
Neighbour Notification Details
Neighbour Notification Details
Not archived · Council Link
Proposed elevations
Application (Drawings)
Not archived · Council Link
Application (Drawings)
Archived · Council Link
Application (Drawings)
Archived · Council Link

Take Action

Make your voice heard. Authorities need to hear from people who support new homes.

✉️ Write Email in Support View on Council Portal