← Back to Sheffield City Council

Status

Awaiting decision
Received
22 days ago
New dwellings
n/a

Full Proposal

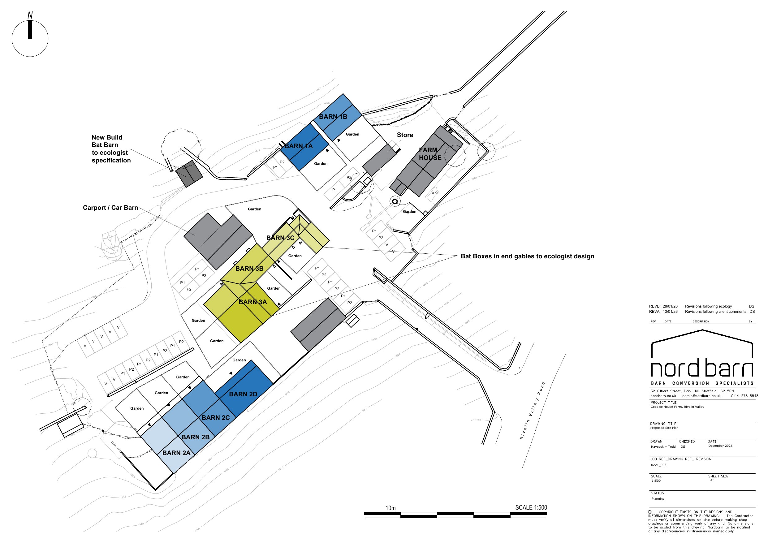
Alterations and change of use of stone barn (barn 3) to form 3 no. dwellinghouses including erection of a single-storey side lean-to extension and a two-storey side/rear extension

Documents

Location plan
Archived · Council Link
Application (Drawings)
Archived · Council Link
Application (Drawings)
Archived · Council Link
0221_004_proposed bat barn
Application (Drawings)
Not archived · Council Link
0221_301_barn 3_existing ground floor plan
Application (Drawings)
Not archived · Council Link
0221_302_barn 3_existing first floor plan
Application (Drawings)
Not archived · Council Link
0221_303_barn 3_existing elevations
Application (Drawings)
Not archived · Council Link
0221_305_barn 3_proposed ground floor plan_reva
Application (Drawings)
Not archived · Council Link
0221_306_barn 3_proposed first floor plan_reva
Application (Drawings)
Not archived · Council Link
0221_307_barn 3_proposed elevations_reva
Application (Drawings)
Not archived · Council Link
251112 - peace of mind report
Application Other
Not archived · Council Link
Applicationformredacted
Application Form
Not archived · Council Link
Bng metric
Ecology documentation
Not archived · Council Link
Bng metric condition assessments 23.07.24
Ecology documentation
Not archived · Council Link
Ecological impact assessment rev 2 (10.02.26)
Ecology documentation
Not archived · Council Link
Form 1: additional information requirements form
CIL Documentation
Not archived · Council Link
Nb0221ps01_barn 3
Planning statement
Not archived · Council Link
Neighbour Notification Details
Neighbour Notification Details
Not archived · Council Link

Take Action

Make your voice heard. Authorities need to hear from people who support new homes.

✉️ Write Email in Support View on Council Portal