← Back to Sheffield City Council

Status

Awaiting decision
Received
20 days ago
New dwellings
n/a

Full Proposal

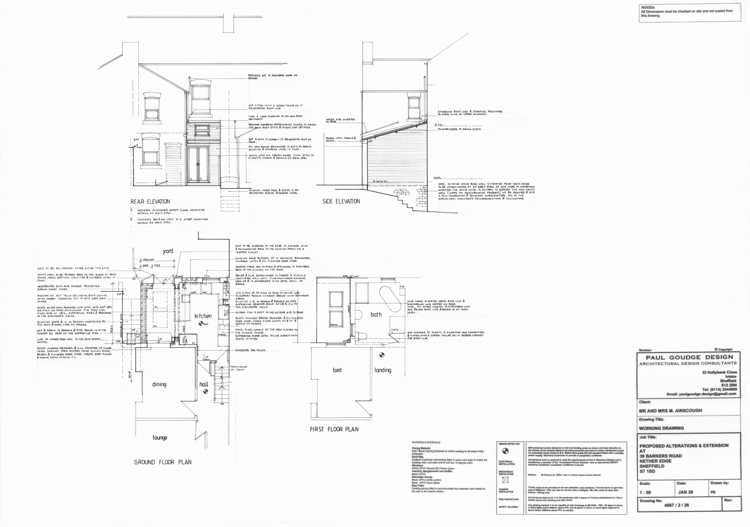
Erection of single-storey rear extension to dwellinghouse

Documents

2026.02.12 advert posted in the sheffield telegraph
Other
Not archived · Council Link
Applicationformredacted
Application Form
Not archived · Council Link
Block plan
Application (Drawings)
Not archived · Council Link
Design and heritage statement
Design & access statement
Not archived · Council Link
Existing plans and elevations
Application (Drawings)
Not archived · Council Link
Neighbour Notification Details
Neighbour Notification Details
Not archived · Council Link
Application (Drawings)
Archived · Council Link
Application (Drawings)
Archived · Council Link

Take Action

Make your voice heard. Authorities need to hear from people who support new homes.

✉️ Write Email in Support View on Council Portal