← Back to Shropshire Council

Status

Pending Consideration
Received
n/a
New dwellings
n/a

Summary

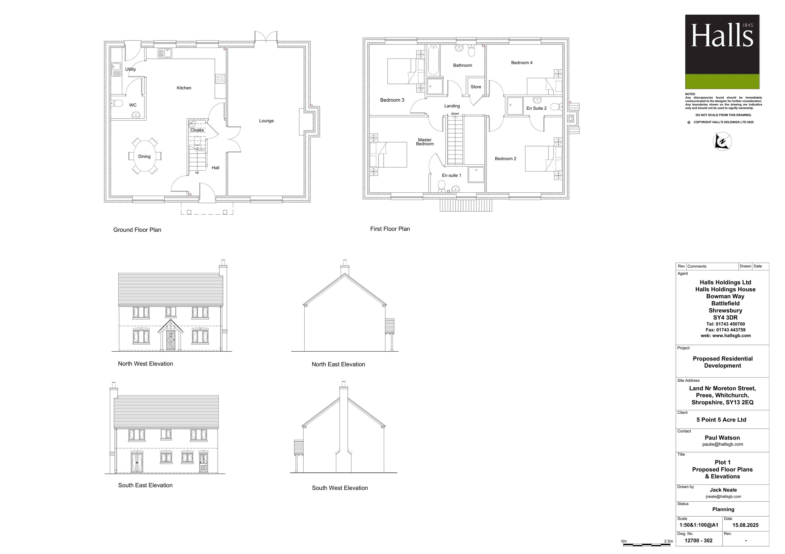
Erection of three detached dwellings with garages, associated works and phasing.

Full Proposal

Erection of 3 no. detached dwellings with garages, associated works and infrastructure including phasing plan for phased development

Documents

APPLICATIONFORMREDACTED
Application Form
Not archived · Council Link
BASELINE HABITAT MAP
Biodiversity Net Gain
Not archived · Council Link
BNG SMALL SITES METRIC
Biodiversity Net Gain
Not archived · Council Link
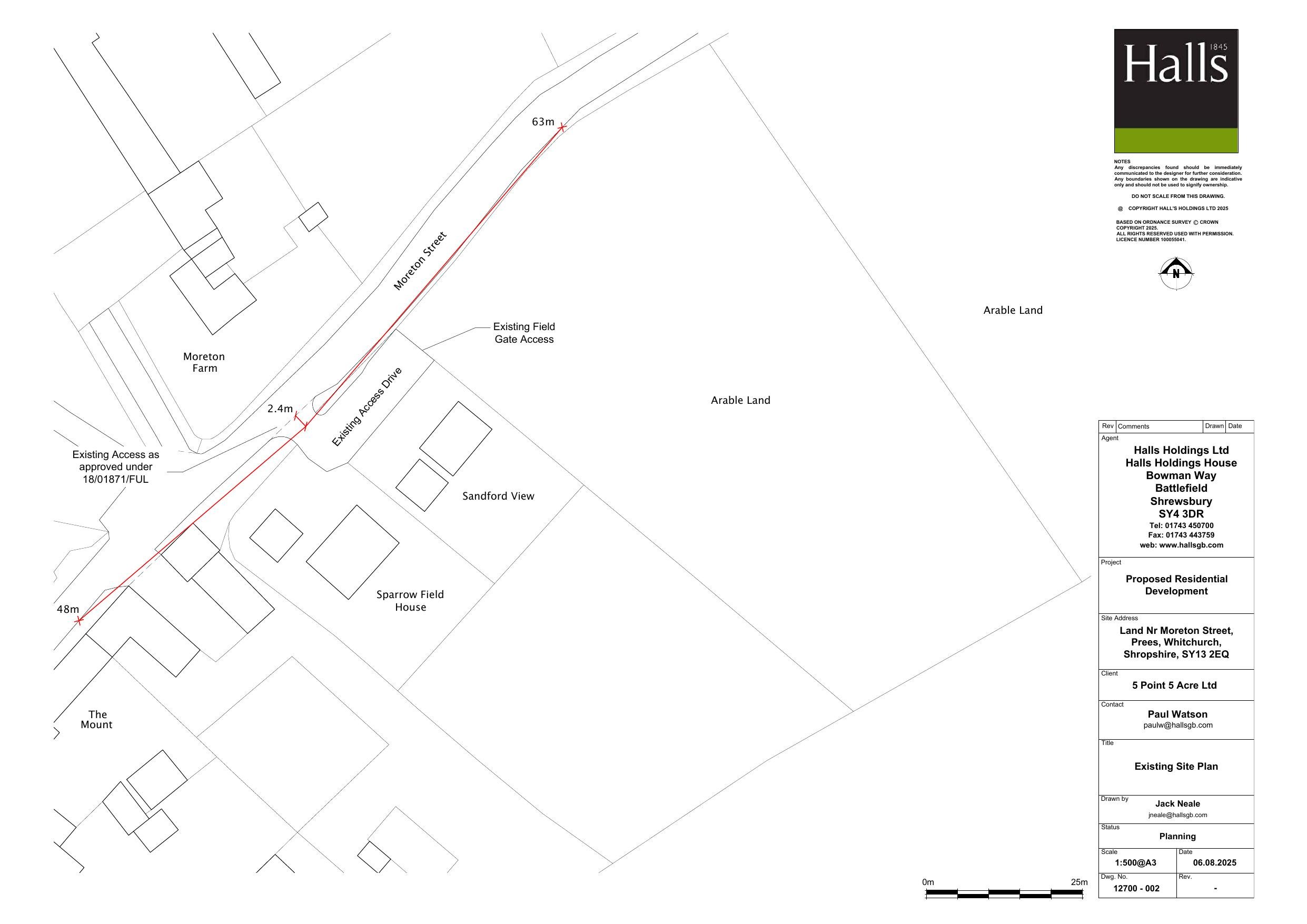
Site/Block Plan Existing
Archived · Council Link
HERITAGE IMPACT ASSESSMENT
Heritage impact statement
Not archived · Council Link
INDICATIVE LANDSCAPE PLAN
Landscaping Details
Not archived · Council Link
LOCATION PLAN
Location Plan
Not archived · Council Link
PHASING PLAN
Detail Drawing
Not archived · Council Link
PLANNING DESIGN AND ACCESS STATEMENT
Design and Access Statement
Not archived · Council Link
Mixed/Combined Plans
Archived · Council Link
Mixed/Combined Plans
Archived · Council Link
Mixed/Combined Plans
Archived · Council Link
PRELIMINARY ECOLOGICAL APPRAISAL AND BNG
Biodiversity survey and report
Not archived · Council Link
PROPOSED GARAGES
Mixed/Combined Plans
Not archived · Council Link
Site/Block Plan Proposed
Archived · Council Link

Take Action

Make your voice heard. Authorities need to hear from people who support new homes.

✉️ Write Email in Support View on Council Portal