← Back to Solihull Metropolitan Borough Council

Status

Awaiting decision
Received
17 Aug 2025
New dwellings
n/a

Full Proposal

Erection of 4 new dwellings and associated works.

Documents

APPLICATION FORM REDACTED
Application Form
Not archived · Council Link
BIOIVERSITY NET GAIN (BNG) ASSESSMENT
Report
Not archived · Council Link
BNG METRIC
Report
Not archived · Council Link
DESIGN AND ACCESS STATEMENT
Report
Not archived · Council Link
DICKENS HEATH PARISH COUNCIL
Consultee Comment
Not archived · Council Link
Drawing
Archived · Council Link
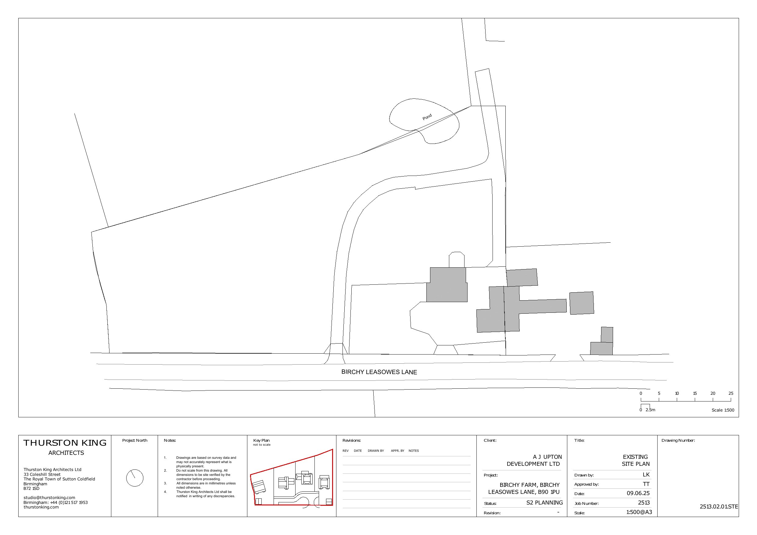
LOCATION & BLOCK PLANS
Drawing
Not archived · Council Link
PLANNING STATEMENT
Report
Not archived · Council Link
PLOT 1 OVERALL PLOT PLAN
Drawing
Not archived · Council Link
PLOT 1 PROPOSED ELEVATIONS
Drawing
Not archived · Council Link
PLOT 1 PROPOSED GARAGE FLOOR PLANS & ELEVATIONS
Drawing
Not archived · Council Link
PLOT 1 PROPOSED GROUND & FIRST FLOOR PLANS
Drawing
Not archived · Council Link
PLOT 1 PROPOSED ROOF PLAN
Drawing
Not archived · Council Link
PLOT 2 OVERALL PLOT PLAN
Drawing
Not archived · Council Link
PLOT 2 PROPOSED ELEVATIONS
Drawing
Not archived · Council Link
PLOT 2 PROPOSED GROUND & FIRST FLOOR PLANS
Drawing
Not archived · Council Link
PLOT 2 PROPOSED ROOF PLAN
Drawing
Not archived · Council Link
PLOT 3 PROPOSED ELEVATIONS
Drawing
Not archived · Council Link
PLOT 3 PROPOSED GROUND & FIRST FLOOR PLANS
Drawing
Not archived · Council Link
PLOT 3 PROPOSED OVERALL PLOT PLAN
Drawing
Not archived · Council Link
PLOT 3 PROPOSED ROOF PLAN
Drawing
Not archived · Council Link
PLOT 4 GARAGE FLOOR PLAN & ELEVATIONS
Drawing
Not archived · Council Link
PLOT 4 OVERALL PLOT PLAN
Drawing
Not archived · Council Link
PLOT 4 PROPOSED ELEVATIONS
Drawing
Not archived · Council Link
PLOT 4 PROPOSED GROUND & FIRST FLOOR PLANS
Drawing
Not archived · Council Link
PLOT 4 PROPOSED ROOF PLAN
Drawing
Not archived · Council Link
PROPOSED FRONT & REAR STREET SCENES
Drawing
Not archived · Council Link
Drawing
Archived · Council Link
REPRESENTATION - SEVERN TRENT
Consultee Comment
Not archived · Council Link
SMBC - CONTAMINATED LAND
Consultee Comment
Not archived · Council Link
SMBC - DRAINAGE & LLFA
Consultee Comment
Not archived · Council Link
SMBC - LANDSCAPE
Consultee Comment
Not archived · Council Link
WCC ARCHAEOLOGY
Consultee Comment
Not archived · Council Link

Take Action

Make your voice heard. Authorities need to hear from people who support new homes.

✉️ Write Email in Support View on Council Portal