← Back to Solihull Metropolitan Borough Council

Status

Awaiting decision
Received
08 Sep 2025
New dwellings
n/a

Full Proposal

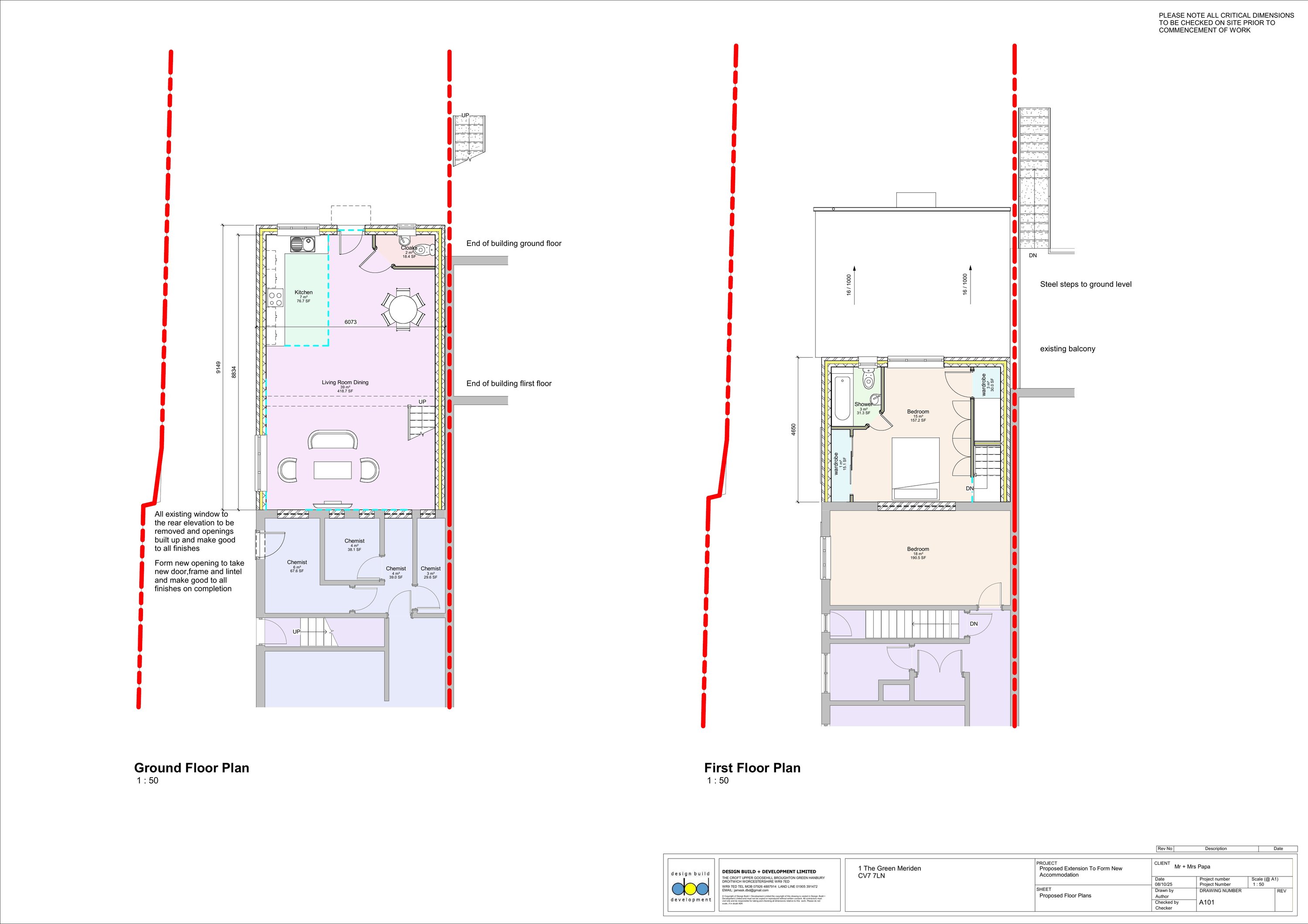
Two storey and single storey to form residential extension to the rear of Crest Pharmacy.

Documents

A001-FLOOR PLANS EXISTING
Drawing
Not archived · Council Link
A002-EXISTING ELEVATIONS
Drawing
Not archived · Council Link
A102-PROPOSED ELEVATIONS.PDF
Drawing
Not archived · Council Link
A104-BLOCK PLAN AND LOCATION PLAN
Drawing
Not archived · Council Link
APPLICATION FORM REDACTED
Application Form
Not archived · Council Link
APPLICATIONFORMREDACTED
Application Form
Not archived · Council Link
EXISTING ELEVATIONS
Drawing
Not archived · Council Link
EXISTING FLOOR PLANS
Drawing
Not archived · Council Link
Drawing
Archived · Council Link
LOCATION PLAN_INCLUDED_IN_BLOCK PLAN
Drawing
Not archived · Council Link
PLANNING STATEMENT.
Correspondence
Not archived · Council Link
REPRESENTATION - SEVERN TRENT
Consultee Comment
Not archived · Council Link
SMBC - DRAINAGE & LLFA
Consultee Comment
Not archived · Council Link

Take Action

Make your voice heard. Authorities need to hear from people who support new homes.

✉️ Write Email in Support View on Council Portal