← Back to Solihull Metropolitan Borough Council

Status

Awaiting decision
Received
20 Dec 2025
New dwellings
n/a

Full Proposal

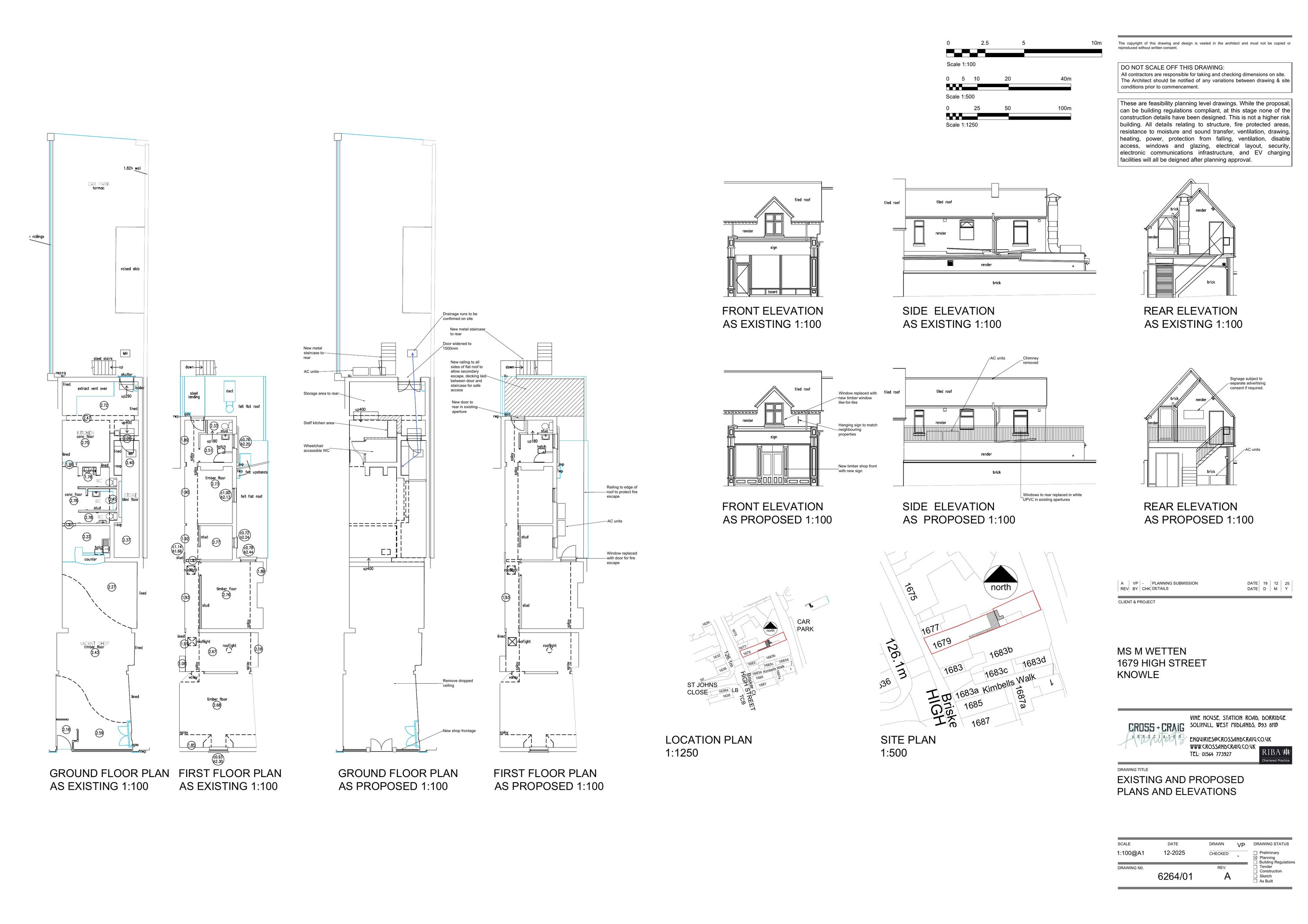
Alterations to shop frontage, addition of railings to rear flat roof, alterations to access stairs and rear doorway, addition of AC units, and replacement of windows.

Documents

APPLICATION FORM REDACTED
Application Form
Not archived · Council Link
SMBC - DRAINAGE & LLFA
Consultee Comment
Not archived · Council Link
SMBC HERITAGE
Consultee Comment
Not archived · Council Link
SMBC HERITAGE
Consultee Comment
Not archived · Council Link
SUPERSEDED DESIGN & ACCESS STATEMENT
Report
Not archived · Council Link
UPDATED DESIGN & ACCESS STATEMENT
Report
Not archived · Council Link

Take Action

Make your voice heard. Authorities need to hear from people who support new homes.

✉️ Write Email in Support View on Council Portal