← Back to Solihull Metropolitan Borough Council

Status

Awaiting decision
Received
Last month
New dwellings
n/a

Full Proposal

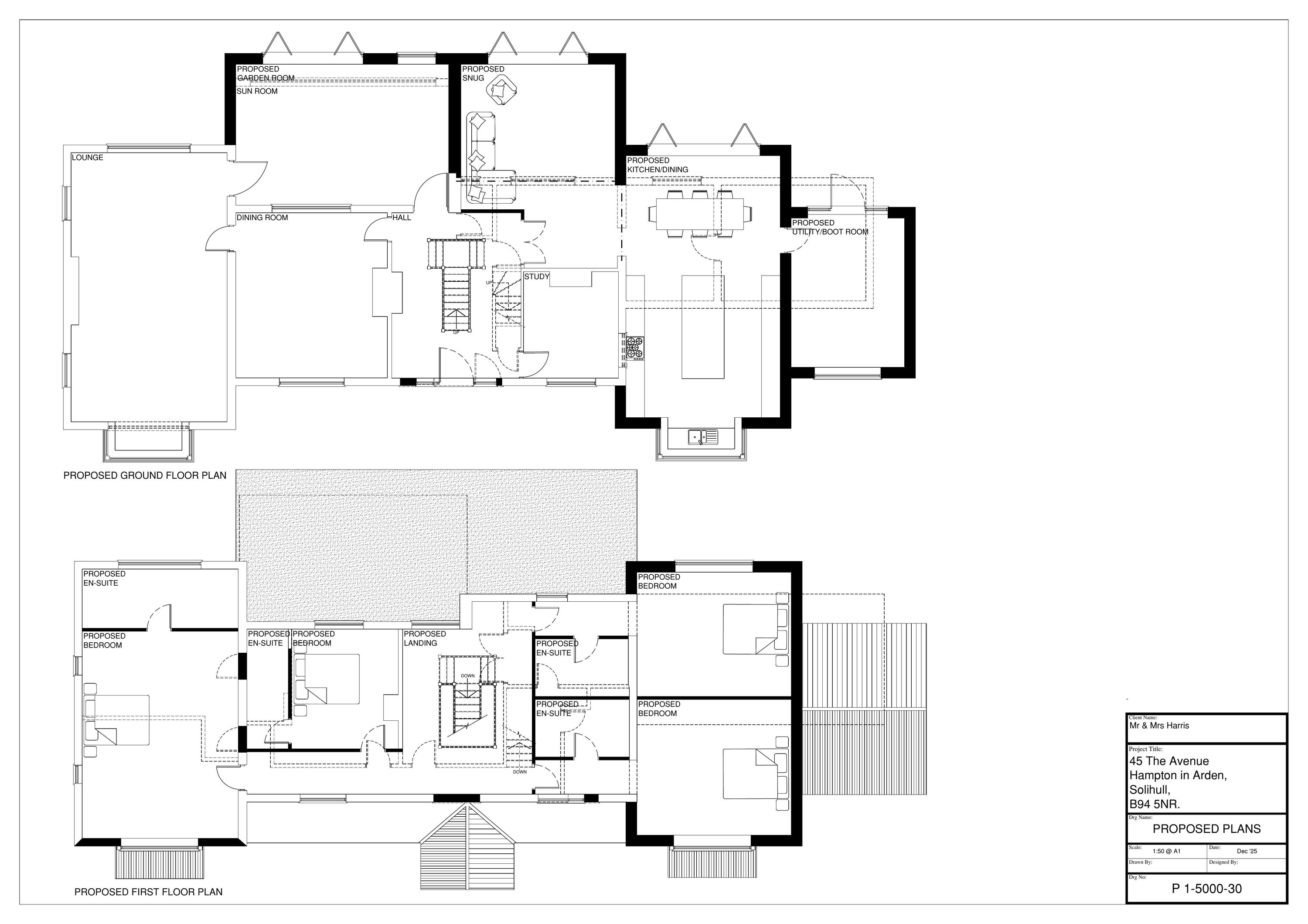
Demolition of existing single storey kitchen/utility, rear sunroom and detached garage block. New single storey rear extension, reconfiguration of roof arrangement to existing two storey house, new two storey extension to form kitchen/dining and two bedrooms at first floor. Detached oak car port with external staircase and accommodation above.

Documents

APPLICATION FORM REDACTED
Application Form
Not archived · Council Link
EXISTING ELEVATIONS
Drawing
Not archived · Council Link
EXISTING ELEVATIONS
Drawing
Not archived · Council Link
EXISTING FLOOR PLANS
Drawing
Not archived · Council Link
EXISTING FLOOR PLANS
Drawing
Not archived · Council Link
PROPOSED BLOCK PLAN
Drawing
Not archived · Council Link
PROPOSED ELEVATIONS
Drawing
Not archived · Council Link
PROPOSED ELEVATIONS
Drawing
Not archived · Council Link
Drawing
Archived · Council Link
PROPOSED GARAGE
Drawing
Not archived · Council Link
PROPOSED GARAGE
Drawing
Not archived · Council Link
Drawing
Archived · Council Link

Take Action

Make your voice heard. Authorities need to hear from people who support new homes.

✉️ Write Email in Support View on Council Portal