← Back to Somerset West and Taunton Council (Legacy)

Status

Registered
Received
16 days ago
New dwellings
n/a

Full Proposal

Application for prior approval for change of use of agricultural building into 1 No. dwelling house (Class C3) and for associated operational development

Documents

APPLICATION FORM
Application Form
Not archived · Council Link
ATTACHMENT SUMMARY
Other
Not archived · Council Link
CLASS Q SUPPORTING STATEMENT
Other
Not archived · Council Link
EXISTING ELEVATIONS
Drawing
Not archived · Council Link
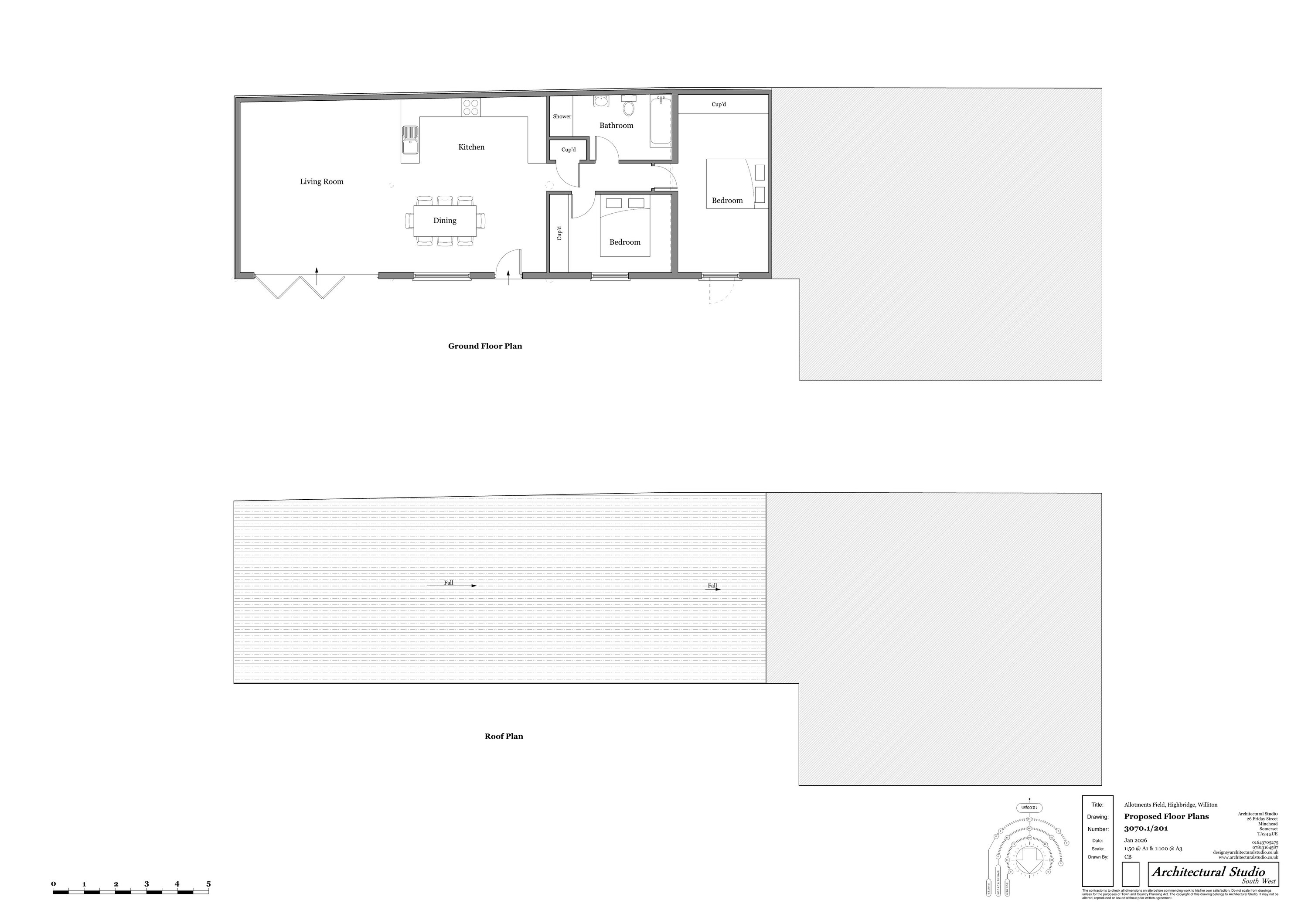
EXISTING FLOOR PLANS
Drawing
Not archived · Council Link
Drawing
Archived · Council Link
FLOOD MAP
Other
Not archived · Council Link
LETTER FROM S HOLMES
Other
Not archived · Council Link
PROPOSED ELEVATIONS
Drawing
Not archived · Council Link
Drawing
Archived · Council Link
Drawing
Archived · Council Link
SITE PHOTOS
Other
Not archived · Council Link
STATUTORY DECLARATION - S HOLMES
Other
Not archived · Council Link

Take Action

Make your voice heard. Authorities need to hear from people who support new homes.

✉️ Write Email in Support View on Council Portal