← Back to South Cambridgeshire District Council

Status

Awaiting decision
Received
27 Nov 2025
New dwellings
n/a

Full Proposal

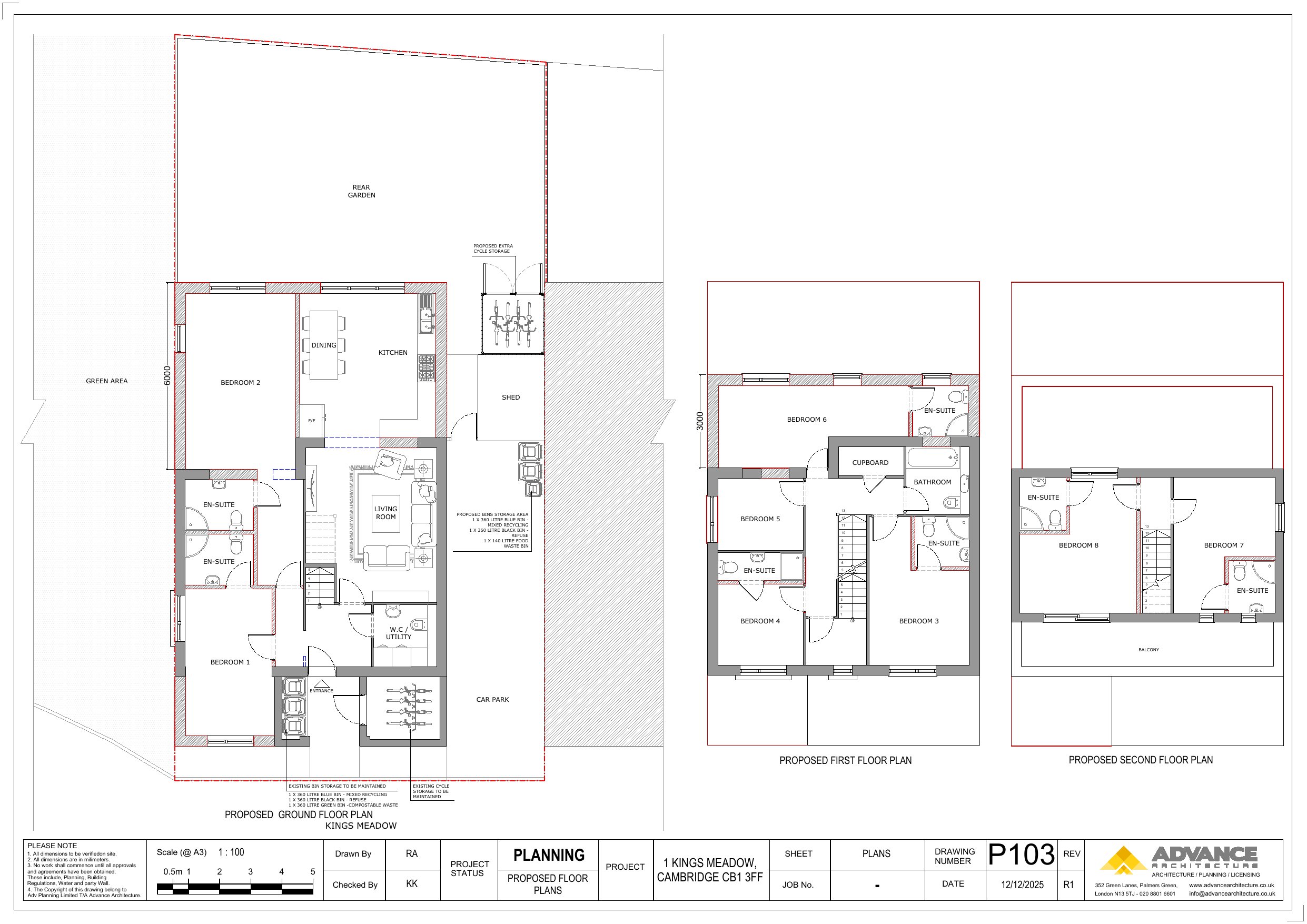
Single storey front extension, single storey side and rear extension and first floor side extension to create change of use from residential (Use Class C3) to a large 8bed HMO (sui generis) and associated works.

Documents

ACKNOWLEDGEMENT LETTER
Application Officer Correspondence
Not archived · Council Link
APPLICATION FORM - NO PERSONAL INFO
Application Information
Not archived · Council Link
ATTACHMENT SUMMARY FROM PORTAL
Attachment Summary
Not archived · Council Link
CIL FORM
Application Information
Not archived · Council Link
DRAINAGE
Consultee Comments
Not archived · Council Link
DRAINAGE
Consultee Comments
Not archived · Council Link
ENVIRONMENTAL HEALTH
Consultee Comments
Not archived · Council Link
ENVIRONMENTAL QUALITY AND GROWTH
Consultee Comments
Not archived · Council Link
EXISTING AND PROPOSED SECTIONS
Drawings
Not archived · Council Link
EXISTING ELEVATIONS
Drawings
Not archived · Council Link
EXISTING FLOOR PLANS
Drawings
Not archived · Council Link
EXISTING ROOF PLAN
Drawings
Not archived · Council Link
FEE CALCULATION
Application Information
Not archived · Council Link
FILE COPY OF AMENDMENT LETTER
Application Officer Correspondence
Not archived · Council Link
INVALID LETTER
Application Information
Not archived · Council Link
LOCAL HIGHWAY AUTHORITY
Consultee Comments
Not archived · Council Link
LOCAL HIGHWAY AUTHORITY
Consultee Comments
Not archived · Council Link
MAP OF NOTIFIED NEIGHBOURS
Neighbour/Consultee Notification List
Not archived · Council Link
PLANNING, DESIGN AND ACCESS STATEMENT
Design and Access Statement
Not archived · Council Link
PROPOSED BLOCK PLAN
Drawings
Not archived · Council Link
PROPOSED BLOCK PLAN
Superseded Documents
Not archived · Council Link
PROPOSED ELEVATIONS
Drawings
Not archived · Council Link
Superseded Documents
Archived · Council Link
Drawings
Archived · Council Link
PROPOSED ROOF PLAN
Drawings
Not archived · Council Link
REVISED PROPOSED ELEVATIONS
Drawings
Not archived · Council Link
Drawings
Archived · Council Link
SITE NOTICE
Application Press/Site Notices
Not archived · Council Link
WASTE - SHARED SERVICE
Consultee Comments
Not archived · Council Link
WASTE - SHARED SERVICE
Consultee Comments
Not archived · Council Link

Take Action

Make your voice heard. Authorities need to hear from people who support new homes.

✉️ Write Email in Support View on Council Portal