← Back to South Cambridgeshire District Council
Full Proposal
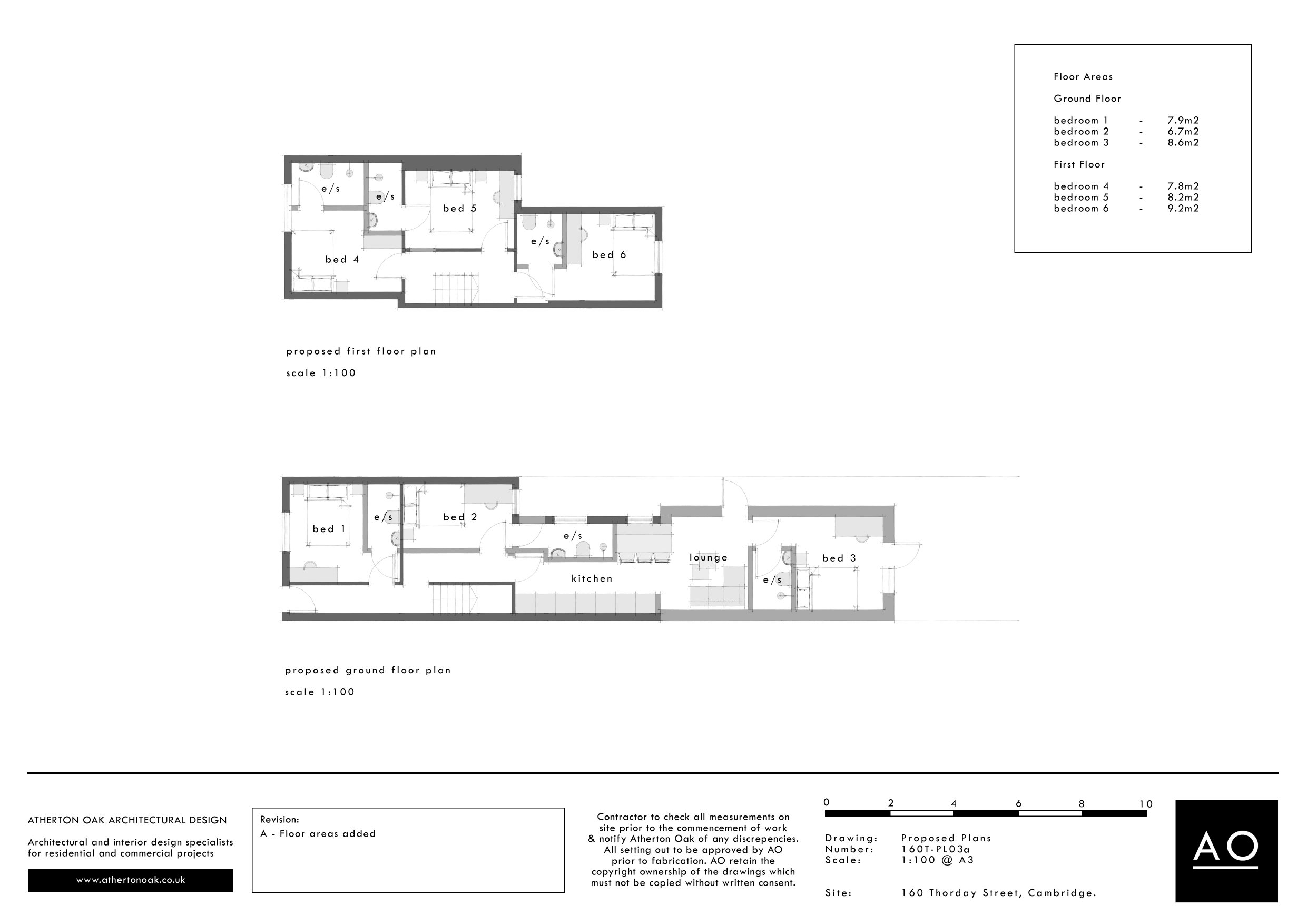
Change of use from residential to a 6 bed, 6 person HMO, together with a single storey rear extension and internal replan
Documents
ACKNOWLEDGEMENT LETTER
Application Officer Correspondence
APPLICATION FORM - NO PERSONAL INFO
Application Information
ATTACHMENT SUMMARY FROM PORTAL
Attachment Summary
CONSERVATION
Consultee Comments
DRAINAGE
Consultee Comments
ENVIRONMENTAL QUALITY AND GROWTH
Consultee Comments
EOT REQUEST
Extension of Time Request
EXISTING ELEVATIONS
Drawings
FEE CALCULATION
Application Information
HERITAGE STATEMENT
Application Information
INVALID LETTER
Application Information
LOCAL HIGHWAY AUTHORITY
Consultee Comments
LOCATION AND PROPOSED BLOCK PLAN
Drawings
MAP OF NOTIFIED NEIGHBOURS
Neighbour/Consultee Notification List
PROPOSED ELEVATIONS
Drawings
SITE NOTICE
Application Press/Site Notices
WASTE - SHARED SERVICE
Consultee Comments
Take Action
Make your voice heard. Authorities need to hear from people who support new homes.