← Back to South Downs National Park Authority

Status

Application in Progress
Received
24 days ago
New dwellings
n/a

Full Proposal

Demolition of existing and erection of replacement dwelling.

Documents

APPLICATION FORM
Application Form
Not archived · Council Link
ARBORICULTURAL METHOD STATEMENT 02.
Application Documents
Not archived · Council Link
CIL FORM 1: ADDITIONAL INFORMATION
Application Form
Not archived · Council Link
CIL FORM 2: ASSUMPTION OF LIABILITY
Application Form
Not archived · Council Link
ECOSYSTEMS SERVICES STATEMENT AND SOIL MANAGEMENT PLAN
Application Documents
Not archived · Council Link
EMAIL FROM AGENT - 06.02.26
Miscellaneous
Not archived · Council Link
EXISTING ELEVATIONS
Plans
Not archived · Council Link
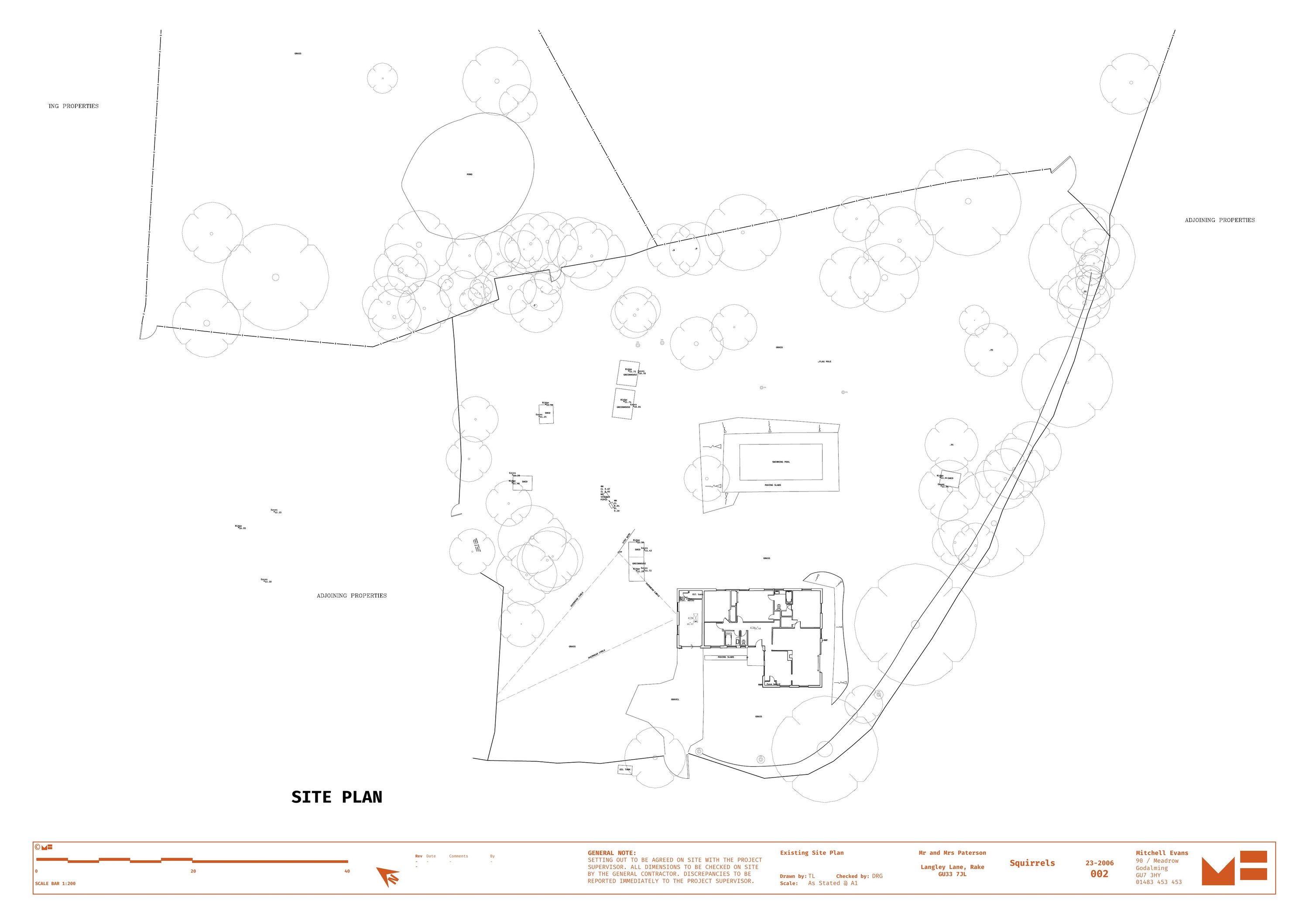
EXISTING GROUND FLOOR PLAN
Plans
Not archived · Council Link
Plans
Archived · Council Link
FOUL SEWERAGE AND UTILITIES ASSESSMENT
Application Documents
Not archived · Council Link
LANDSCAPE AND VISUAL IMPACT ASSESSMENT - DRAWINGS
Application Documents
Not archived · Council Link
LANDSCAPE AND VISUAL IMPACT ASSESSMENT - LANDSCAPE STRATEGY (FIGURE 14 REV A)
Application Documents
Not archived · Council Link
LANDSCAPE AND VISUAL IMPACT ASSESSMENT - TEXT
Application Documents
Not archived · Council Link
LIGHTING ASSESSMENT
Application Documents
Not archived · Council Link
MRS LIZ ANNALLS
Consultee Comment
Not archived · Council Link
PLANNING, DESIGN & ACCESS STATEMENT
Application Documents
Not archived · Council Link
PROPOSED FIRST FLOOR PLAN
Plans
Not archived · Council Link
PROPOSED FRONT AND SIDE (EAST) ELEVATIONS
Plans
Not archived · Council Link
PROPOSED GROUND FLOOR (01 OF 02)
Plans
Not archived · Council Link
PROPOSED GROUND FLOOR PLAN (02 OF 02)
Plans
Not archived · Council Link
PROPOSED POOL SECTION
Plans
Not archived · Council Link
PROPOSED REAR AND SIDE (WEST) ELEVATIONS
Plans
Not archived · Council Link
PROPOSED ROOF PLAN
Plans
Not archived · Council Link
Plans
Archived · Council Link
PROTECTED SPECIES WALKOVER AND BAT ASSESSMENT SURVEY
Application Documents
Not archived · Council Link
SUSTAINABILITY ASSESSMENT
Application Documents
Not archived · Council Link

Take Action

Make your voice heard. Authorities need to hear from people who support new homes.

✉️ Write Email in Support View on Council Portal