← Back to South Gloucestershire Council

Status

Unknown
Received
16 Oct 2024
New dwellings
n/a

Full Proposal

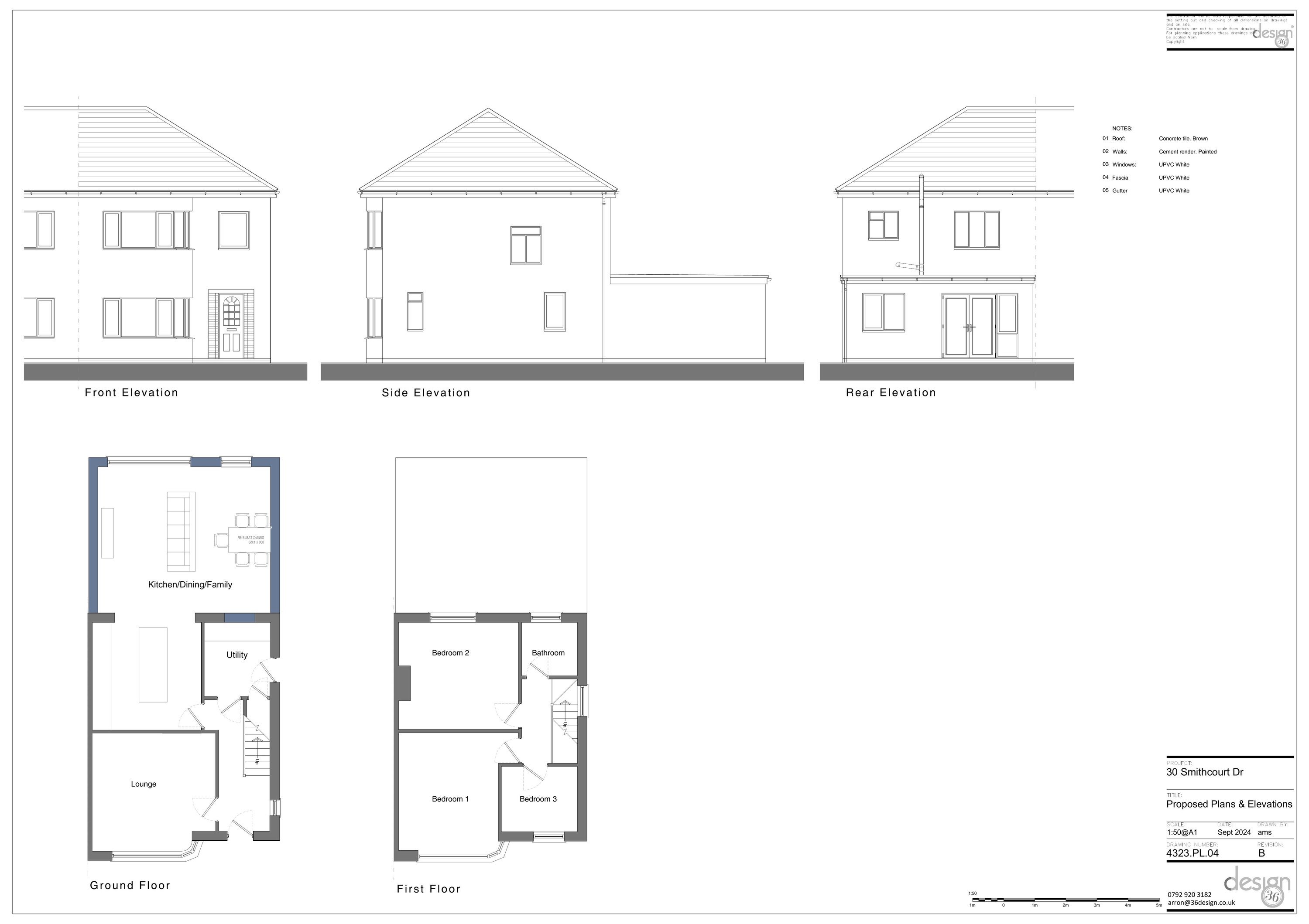
The erection of a single storey rear extension, which would extend beyond the rear wall of the original house by 5m, for which the maximum height would be 2.85m, and for which the height of the eaves would be 2.85m.

Documents

APPLICATION FORM - WITHOUT PERSONAL DATA
Application Form
Not archived · Council Link
EXISTING AND PROPOSED BLOCK PLANS
Plan
Not archived · Council Link
EXISTING PLANS AND ELEVATIONS
Plan
Not archived · Council Link
OFFICER DELEGATED REPORT
Report
Not archived · Council Link
PRIOR APPROVAL GRANTED
Decision
Not archived · Council Link
STOKE GIFFORD PARISH COUNCIL
Consultee Comment
Not archived · Council Link
THE LOCATION PLAN
Plan
Not archived · Council Link

Take Action

Make your voice heard. Authorities need to hear from people who support new homes.

✉️ Write Email in Support View on Council Portal