← Back to South Gloucestershire Council

Status

Awaiting decision
Received
20 Nov 2025
New dwellings
n/a

Full Proposal

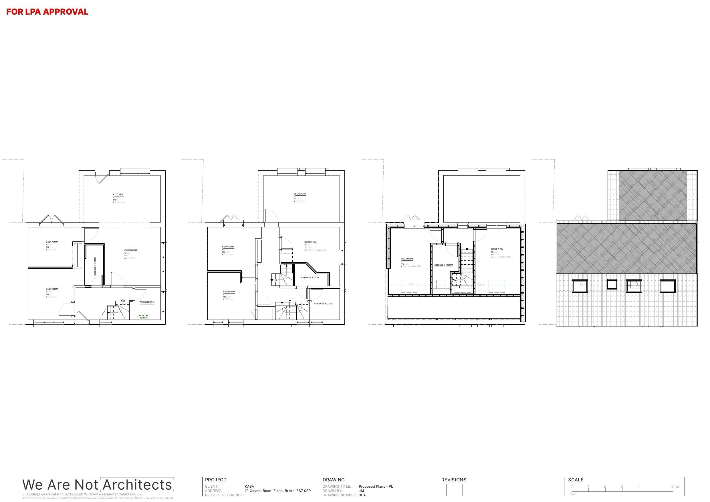
Installation of 1 no. rear dormer and other alterations to roofline to facilitate change of use from small House in Multiple Occupation (HMO) (Class C4) to large 8 no. bedroom, 8 no. person HMO (Sui Generis) (as defined in the Town and Country Planning (use class order) 1987.

Documents

APPLICATION FORM - WITHOUT PERSONAL DATA
Application Form
Not archived · Council Link
BIN STORAGE
Supporting Document
Not archived · Council Link
COMMUNITY INFRASTRUCTURE LEVY - COMPLETED FORM
Application Form
Not archived · Council Link
CYCLE STORAGE
Supporting Document
Not archived · Council Link
EXISTING ELEVATIONS
Plan
Not archived · Council Link
EXISTING FLOOR PLANS
Plan
Not archived · Council Link
EXISTING SECTION
Plan
Not archived · Council Link
HOUSING ENABLING
Consultee Comment
Not archived · Council Link
LOCATION & PROPOSED BLOCK PLAN
Plan
Not archived · Council Link
PLANNING, DESIGN AND ACCESS STATEMENT
Supporting Document
Not archived · Council Link
PROPOSED ELEVATIONS
Plan
Not archived · Council Link
PROPOSED SECTION
Plan
Not archived · Council Link
Plan
Archived · Council Link
SUSTAINABLE TRANSPORT
Consultee Comment
Not archived · Council Link

Take Action

Make your voice heard. Authorities need to hear from people who support new homes.

✉️ Write Email in Support View on Council Portal