← Back to South Gloucestershire Council
P25/02693/F
South Gloucestershire Council · IDOX
Status
Awaiting decision
Received
19 Nov 2025
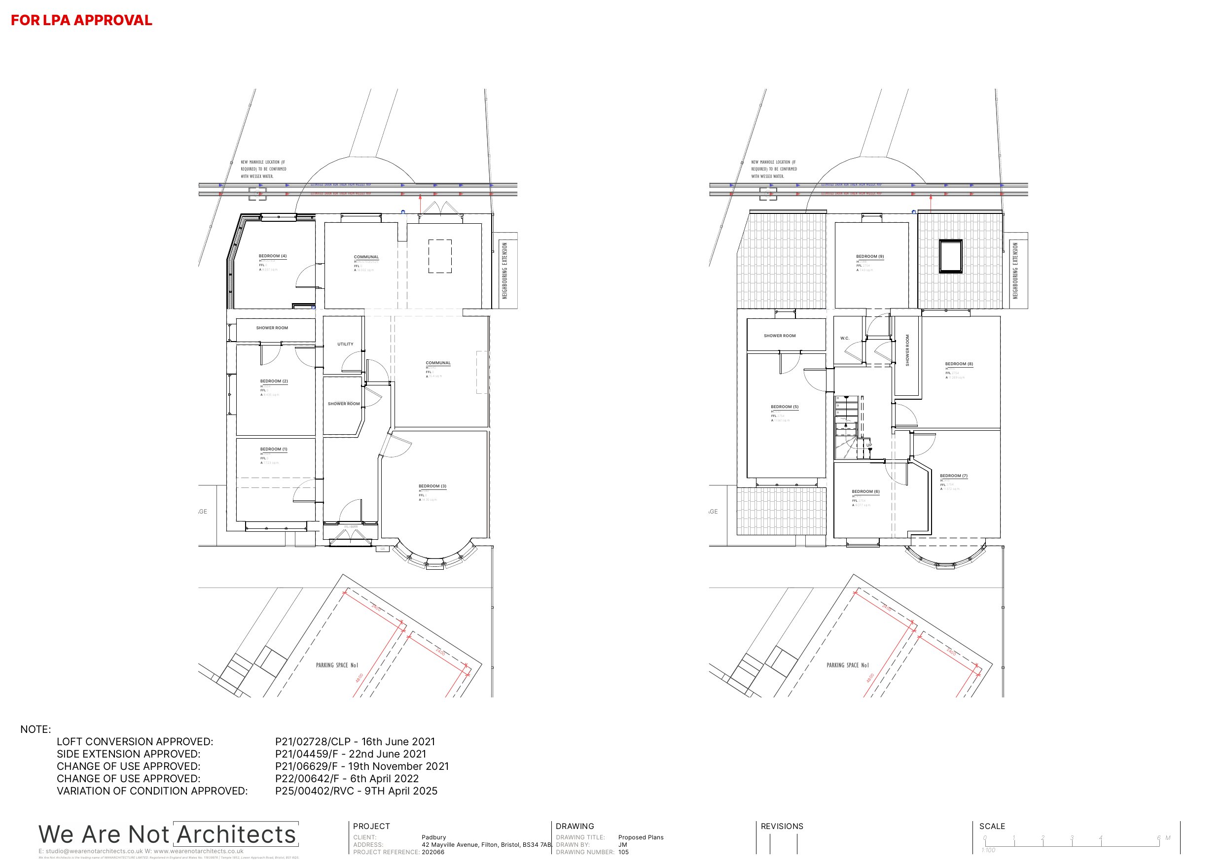
New dwellings
n/a
Full Proposal
Erection of a single storey rear/side extension to facilitate the enlargement of existing 10no bed HMO (Sui Generis) to a 11no bed (11 person) large house in multiple occupation (Sui Generis). Erection of a rear annexe building, bin storage and cycle parking.
Documents
24 GLEBELANDS ROAD - PHOTO EVIDENCE - SATURDAY DAYTIME
Supporting Document
Not archived
· Council Link
Take Action
Make your voice heard. Authorities need to hear from people who support new homes.