← Back to South Gloucestershire Council

Status

Awaiting decision
Received
Last month
New dwellings
n/a

Full Proposal

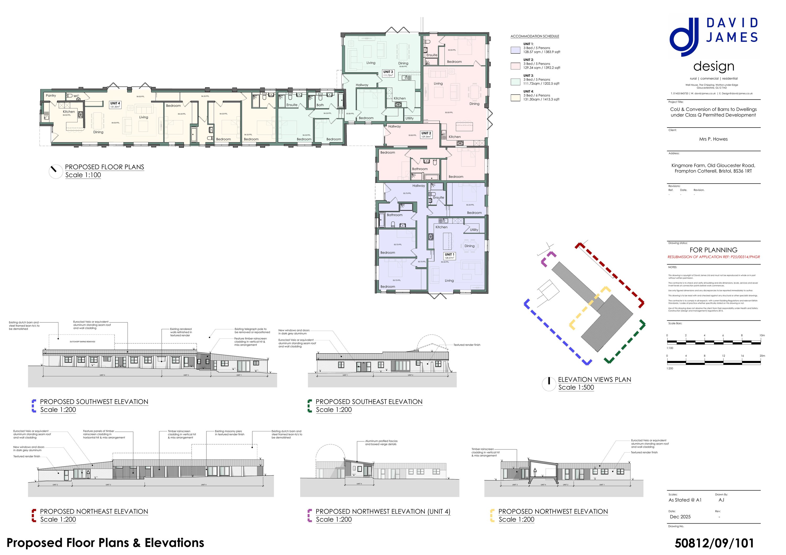
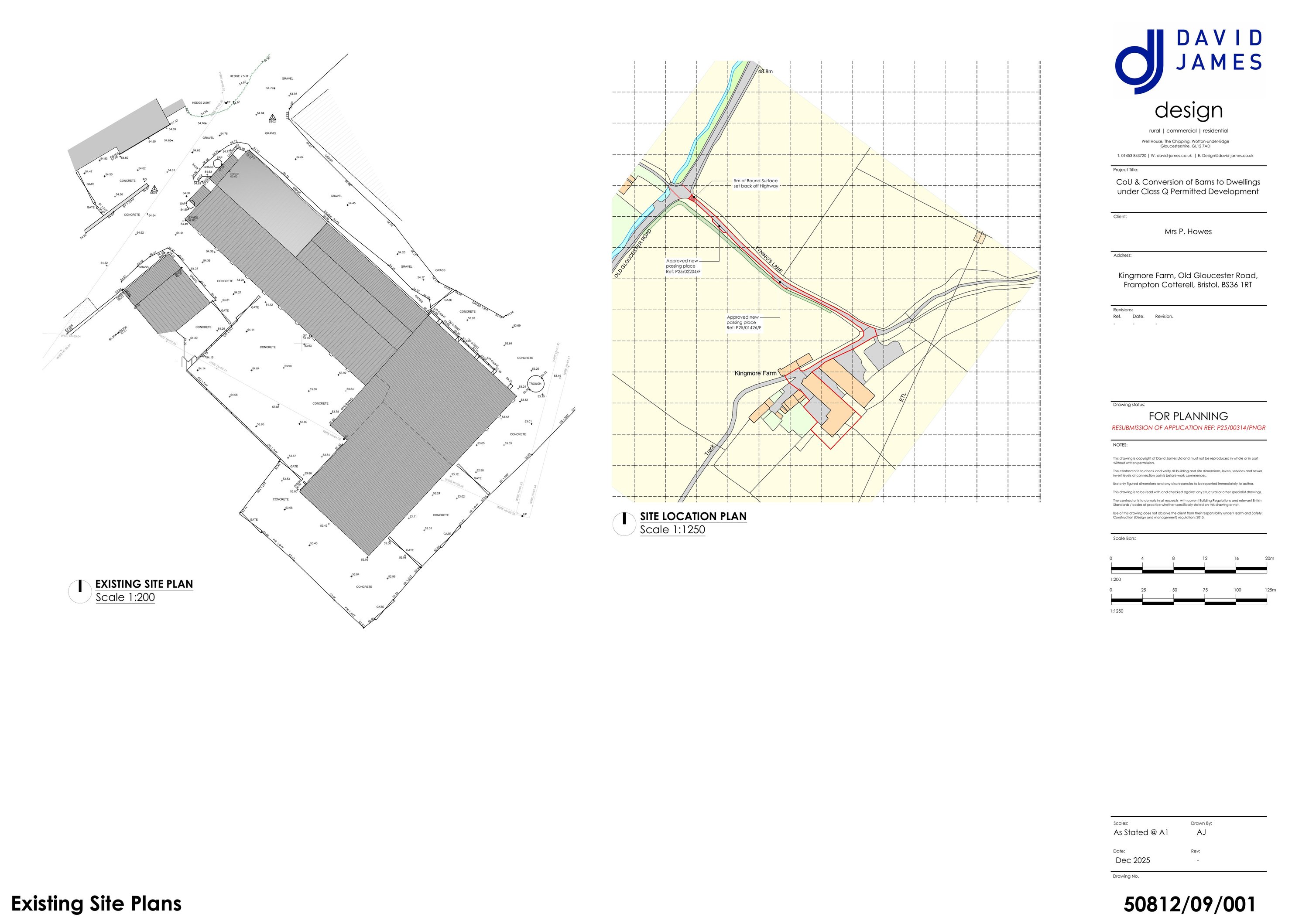
Prior notification of a change of use from Agricultural Building to 4 no. residential dwellings (Class C3) as defined in the Town and Country Planning (Use Classes) Order 1987 (as amended) to include operational development (resubmission of P25/00314/PNGR).

Documents

APPLICATION FORM - WITHOUT PERSONAL DATA
Application Form
Not archived · Council Link
DESIGN AND ACCESS STATEMENT
Supporting Document
Not archived · Council Link
EXISTING FLOOR PLAN AND ELEVATIONS
Plan
Not archived · Council Link
FRAMPTON COTTERELL PARISH COUNCIL-NEUTRAL
Consultee Comment
Not archived · Council Link
PROTECTED SPECIES SURVEY REPORT
Supporting Document
Not archived · Council Link
SGC CONTAMINATED LAND
Consultee Comment
Not archived · Council Link
SGC ECOLOGY OFFICER
Consultee Comment
Not archived · Council Link
SGC PROW OFFICER
Consultee Comment
Not archived · Council Link
STRUCTURAL REPORT ON REDUNDANT BARNS
Supporting Document
Not archived · Council Link
WINTERBOURNE PARISH COUNCIL-SUPPORTS
Consultee Comment
Not archived · Council Link

Take Action

Make your voice heard. Authorities need to hear from people who support new homes.

✉️ Write Email in Support View on Council Portal