← Back to South Gloucestershire Council
P26/00156/PNH
South Gloucestershire Council · IDOX
Status
Awaiting decision
Received
Last month
New dwellings
n/a
Full Proposal
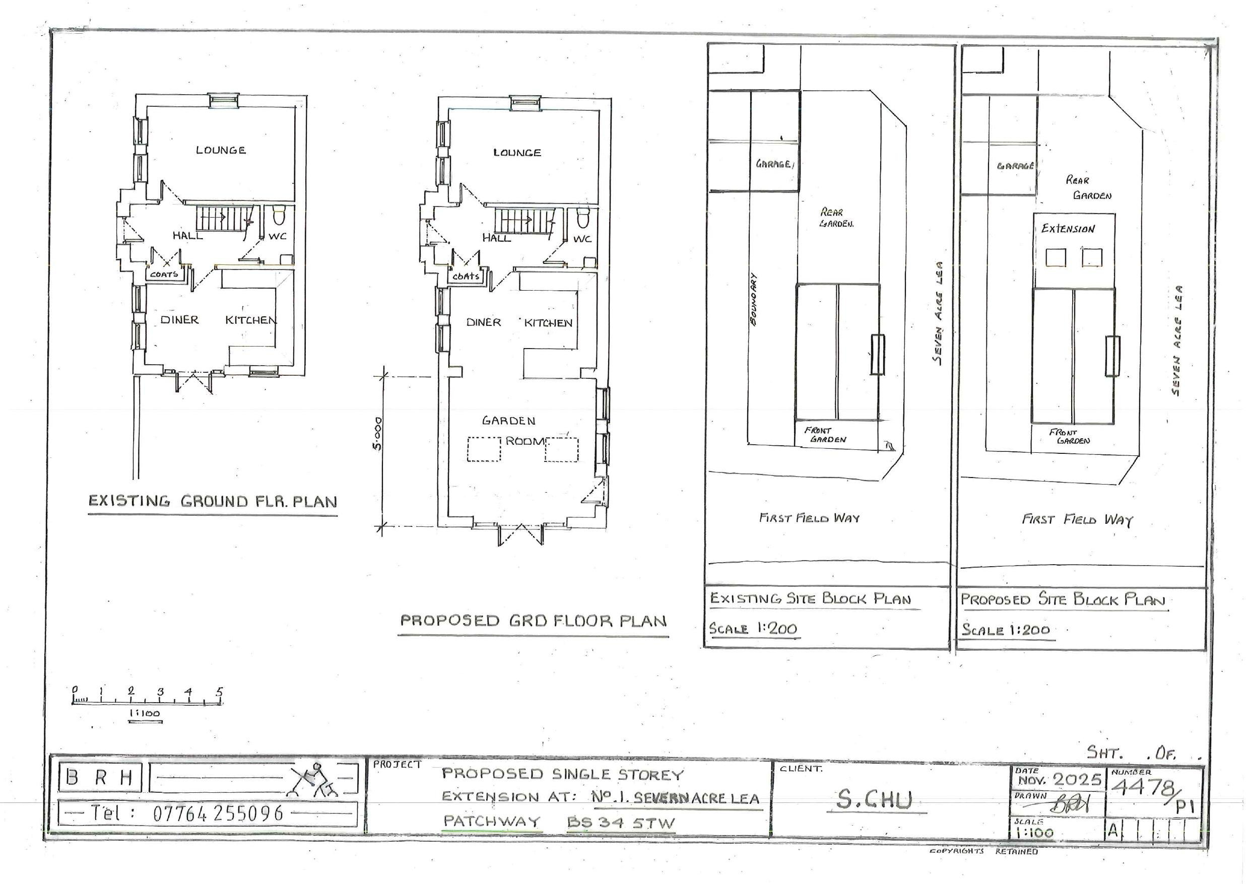
The erection of a single storey rear extension, which would extend beyond the rear wall of the original house by 6.20m, for which the maximum height would be 3.50m, and for which the height of the eaves would be 2.40m.
Documents
Take Action
Make your voice heard. Authorities need to hear from people who support new homes.