← Back to South Gloucestershire Council

Status

Awaiting decision
Received
27 days ago
New dwellings
n/a

Full Proposal

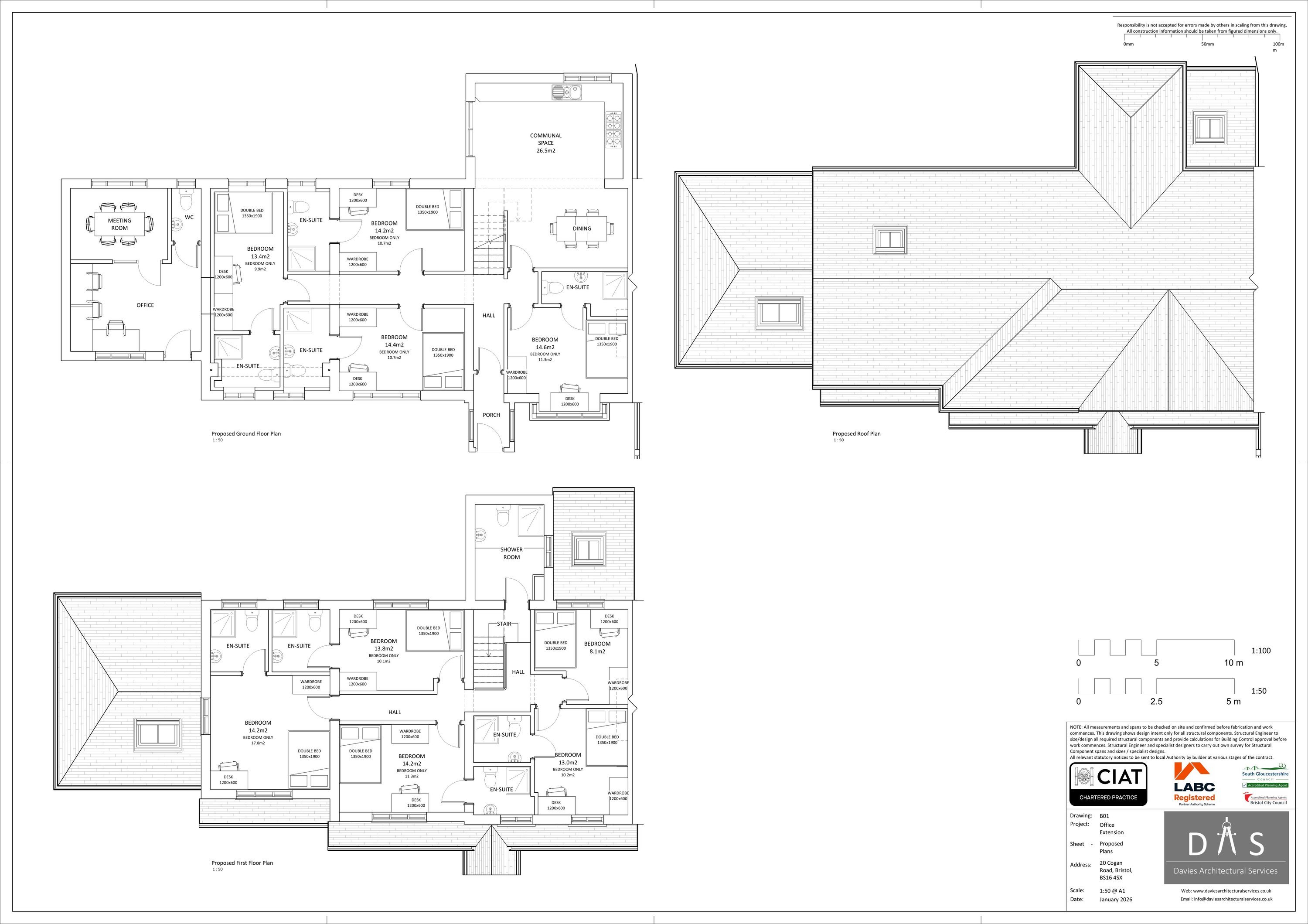
Erection of a single-storey side extension to form office/meeting room for dwellinghouse for people living together as a single household and receiving care, with nine bedrooms (sui generis).

Documents

APPLICATION FORM - WITHOUT PERSONAL DATA
Application Form
Not archived · Council Link
COVERING LETTER
Correspondence
Not archived · Council Link
EXISTING 3D VIEWS
Plan
Not archived · Council Link
EXISTING ELEVATIONS
Plan
Not archived · Council Link
EXISTING PLANS
Plan
Not archived · Council Link
EXISTING SITE LAYOUT
Plan
Not archived · Council Link
LOCATION PLAN
Plan
Not archived · Council Link
PROPOSED 3D VIEWS
Plan
Not archived · Council Link
PROPOSED ELEVATIONS
Plan
Not archived · Council Link
Plan
Archived · Council Link
PROPOSED SITE LAYOUT
Plan
Not archived · Council Link
SGC HIGHWAY STRUCTURES
Consultee Comment
Not archived · Council Link

Take Action

Make your voice heard. Authorities need to hear from people who support new homes.

✉️ Write Email in Support View on Council Portal