← Back to South Gloucestershire Council

Status

Awaiting decision
Received
Last month
New dwellings
n/a

Full Proposal

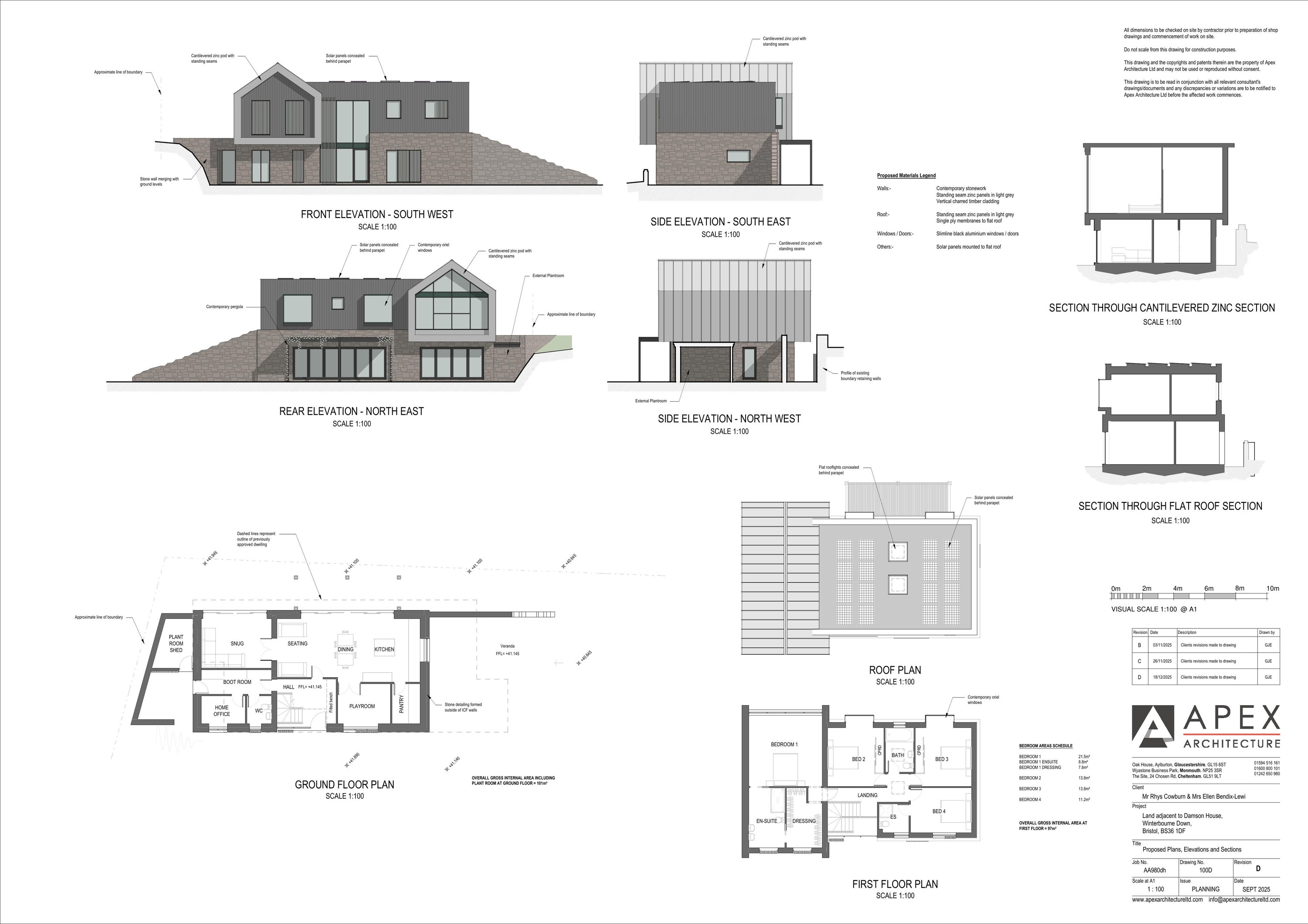
Erection of 1no self-build dwelling with garage and associated works.

Documents

APPLICATION FORM - WITHOUT PERSONAL DATA
Application Form
Not archived · Council Link
COVERING LETTER
Supporting Document
Not archived · Council Link
PROPOSED 3D IMAGES
Supporting Document
Not archived · Council Link
PROPOSED GARAGE AND STREET SCENES
Plan
Not archived · Council Link
SELF BUILD PROFORMA
Supporting Document
Not archived · Council Link
TECHNICAL REPORT
Supporting Document
Not archived · Council Link

Take Action

Make your voice heard. Authorities need to hear from people who support new homes.

✉️ Write Email in Support View on Council Portal