← Back to South Gloucestershire Council

Status

Awaiting decision
Received
25 days ago
New dwellings
n/a

Full Proposal

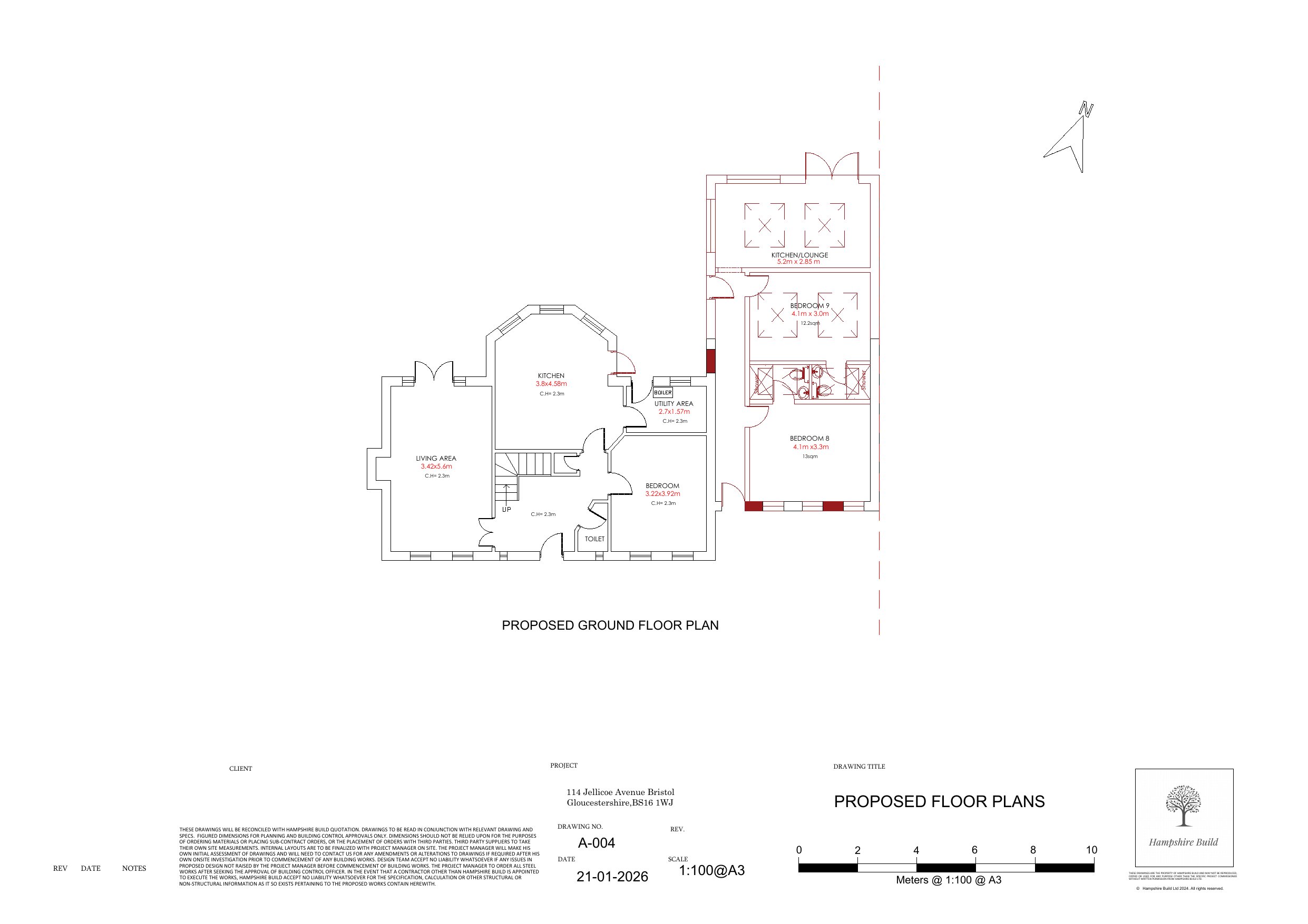
Erection of single storey rear extension to facilitate conversion of existing garage into Annexe ancillary to main dwelling.

Documents

APPLICATION FORM - WITHOUT PERSONAL DATA
Application Form
Not archived · Council Link
EXISTING BLOCK PLAN
Plan
Not archived · Council Link
EXISTING ELEVATIONS
Plan
Not archived · Council Link
EXISTING FLOOR PLANS
Plan
Not archived · Council Link
EXISTING ROOF PLAN
Plan
Not archived · Council Link
PROPOSED BLOCK PLAN
Plan
Not archived · Council Link
PROPOSED ELEVATIONS
Plan
Not archived · Council Link
PROPOSED ELEVATIONS
Plan
Not archived · Council Link
PROPOSED ROOF PLAN
Plan
Not archived · Council Link
THE LOCATION PLAN
Plan
Not archived · Council Link

Take Action

Make your voice heard. Authorities need to hear from people who support new homes.

✉️ Write Email in Support View on Council Portal