← Back to South Kesteven District Council

Status

Awaiting decision
Received
12 Sep 2025
New dwellings
n/a

Summary

Erection of two dwellings.

Full Proposal

Erection of two dwellings

Documents

1363 12 PLOT 1 PLANS AND ELEVATIONS
Drawing
Not archived · Council Link
1363.11 BLOCK PLAN
Superseded plan/document
Not archived · Council Link
1363.13 PLOT 2 PLANS AND ELEVATIONS
Drawing
Not archived · Council Link
2139 06 DESIGN AND ACCESS STATEMENT RFS
Report
Not archived · Council Link
2139 STATEMENT OF COMMUNITY CONSULTATION
Report
Not archived · Council Link
AMENDED PLOT 2 FLOOR & ELEVATION PLAN
Drawing
Not archived · Council Link
Drawing
Archived · Council Link
APPLICATION FORM REDACTED
Superseded plan/document
Not archived · Council Link
APPLICATIONFORMREDACTED
Application Form
Not archived · Council Link
CONSERVATION OFFICER
Consultee Comment - PUBLIC
Not archived · Council Link
DESIGN, ACCESS, PLANNING & HERITAGE STATEMENT
Superseded plan/document
Not archived · Council Link
ENVIRONMENTAL PROTECTION
Consultee Comment - PUBLIC
Not archived · Council Link
ENVIRONMENTAL PROTECTION
Consultee Comment - PUBLIC
Not archived · Council Link
HIGHWAYS / SUDS
Consultee Comment - PUBLIC
Not archived · Council Link
HIGHWAYS / SUDS
Consultee Comment - PUBLIC
Not archived · Council Link
HISTORIC ENGLAND
Consultee Comment - PUBLIC
Not archived · Council Link
HISTORIC ENGLAND
Consultee Comment - PUBLIC
Not archived · Council Link
LINCOLNSHIRE WILDLIFE TRUST
Consultee Comment - PUBLIC
Not archived · Council Link
LOCATION PLAN
Superseded plan/document
Not archived · Council Link
LOCATIONPLAN
Other
Not archived · Council Link
MS DENISE DRURY
Consultee Comment - PUBLIC
Not archived · Council Link
MS DENISE DRURY
Consultee Comment - PUBLIC
Not archived · Council Link
NATIONAL TRUST
Consultee Comment - PUBLIC
Not archived · Council Link
PHOTO
Photo
Not archived · Council Link
PHOTO
Photo
Not archived · Council Link
PHOTO
Photo
Not archived · Council Link
PLOT 1 - FLOOR & ELEVATION PLAN
Superseded plan/document
Not archived · Council Link
PLOT 2 - FLOOR, ELEVATION & SECTION PLAN
Superseded plan/document
Not archived · Council Link
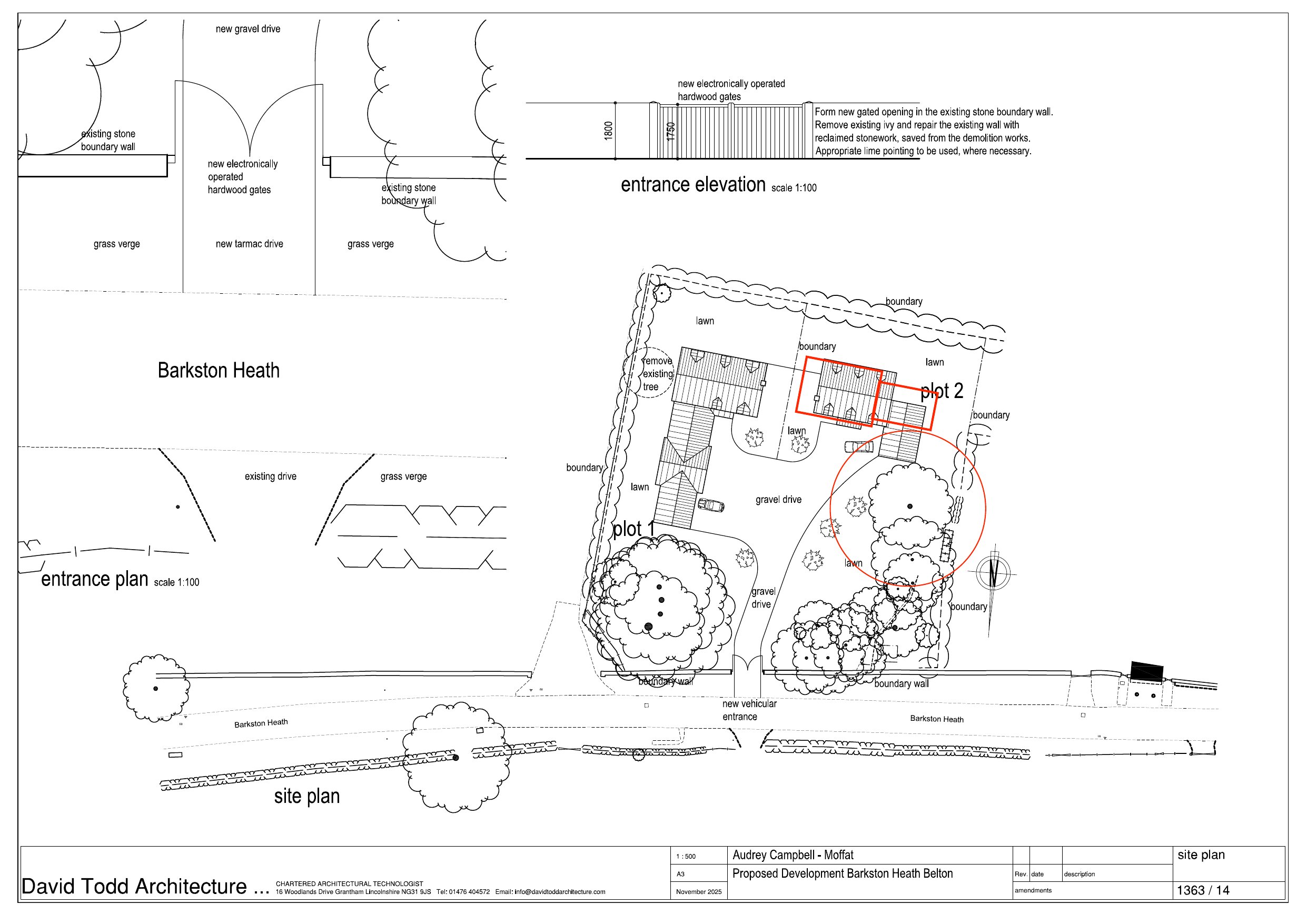
PROPOSED SITE LAYOUT PLAN
Drawing - Proposed
Not archived · Council Link
SITE LAYOUT PLAN
Drawing
Not archived · Council Link
Superseded plan/document
Archived · Council Link
STATEMENT OF COMMUNITY CONSULTATION
Superseded plan/document
Not archived · Council Link
SUPERSEDED PLOT 2 - FLOOR, ELEVATION & SECTION PLAN
Superseded plan/document
Not archived · Council Link
SUPERSEDED SITE LAYOUT PLAN
Superseded plan/document
Not archived · Council Link
Superseded plan/document
Archived · Council Link
THE GARDENS TRUST
Consultee Comment - PUBLIC
Not archived · Council Link
TOPOGRAPHIC SURVEY
Drawing
Not archived · Council Link
TREE CONSTRAINTS REPORT REDACTED
Report
Not archived · Council Link
TREE REPORT REDACTED
Report
Not archived · Council Link

Take Action

Make your voice heard. Authorities need to hear from people who support new homes.

✉️ Write Email in Support View on Council Portal