← Back to South Kesteven District Council

Status

Awaiting decision
Received
22 Dec 2025
New dwellings
n/a

Full Proposal

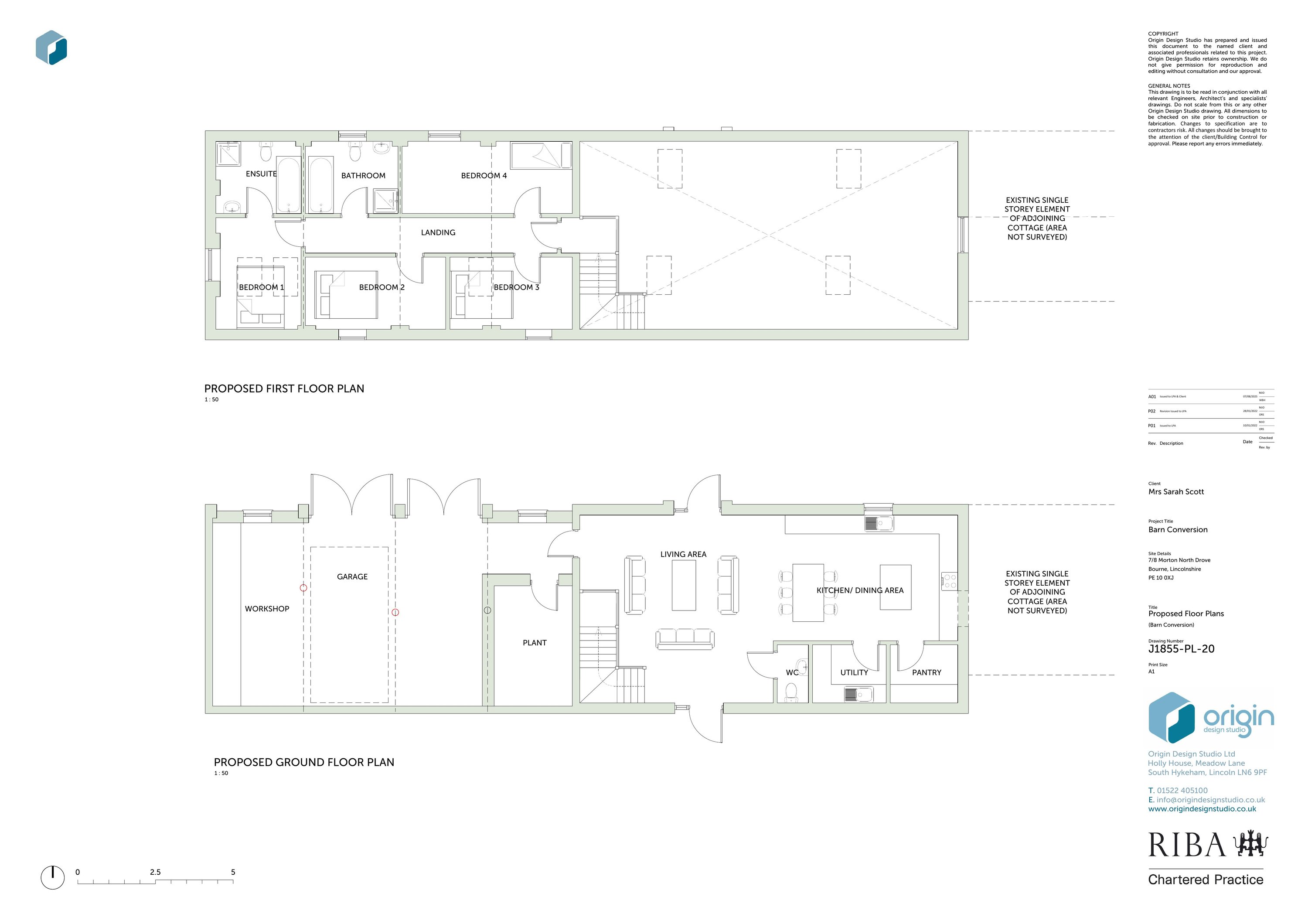
Conversion of existing agricultural barn to dwelling, with associated parking, hard landscaping and change of use of land to residential curtilage

Documents

25542 - BAT AND BARN OWL SURVEY REPORT
Report
Not archived · Council Link
25542 - BIODIVERSITY NET GAIN ASSESSMENT (BNGA)
Report
Not archived · Council Link
25542 - STATUTORY BIODIVERSITY METRIC CALCULATION TOOL (SBMCT)
Report
Not archived · Council Link
APPENDIX D OF FRA DECEMBER 2025
Report
Not archived · Council Link
APPLICATION FORM REDACTED
Application Form
Not archived · Council Link
BLACK SLUICE INTERNAL DRAINAGE BOARD - GUIDANCE SHEET
Other
Not archived · Council Link
ENVIRONMENT AGENCY
Consultee Comment - PUBLIC
Not archived · Council Link
ENVIRONMENT AGENCY
Consultee Comment - PUBLIC
Not archived · Council Link
ENVIRONMENTAL PROTECTION
Consultee Comment - PUBLIC
Not archived · Council Link
EXISTING ELEVATIONS
Drawing - Existing
Not archived · Council Link
EXISTING FLOOR PLANS
Drawing - Existing
Not archived · Council Link
HIGHWAYS / SUDS
Consultee Comment - PUBLIC
Not archived · Council Link
J1855 FRA WITH SOME APPENDICES DECEMBER 2025
Report
Not archived · Council Link
LINCOLNSHIRE FIRE AND RESCUE
Consultee Comment - PUBLIC
Not archived · Council Link
LINCOLNSHIRE WILDLIFE TRUST
Consultee Comment - PUBLIC
Not archived · Council Link
PROPOSED ELEVATIONS
Drawing - Proposed
Not archived · Council Link
Drawing - Proposed
Archived · Council Link
Drawing - Proposed
Archived · Council Link
SITE LOCATION AND EXISTING BLOCK PLAN
Drawing
Not archived · Council Link

Take Action

Make your voice heard. Authorities need to hear from people who support new homes.

✉️ Write Email in Support View on Council Portal