← Back to Broadland and South Norfolk Council

Status

Pending Decision
Received
27 Sep 2024
New dwellings
n/a

Full Proposal

Outline planning permission for the erection of 7 dwellings with all matters reserved except for access

Documents

1 whymarks walk
Public Comment (D)
Not archived · Council Link
Agreement to extension of time
Correspondence (D)
Not archived · Council Link
Agreement to extension of time
Correspondence (D)
Not archived · Council Link
Agreement to extension of time
Correspondence (D)
Not archived · Council Link
Amended application form
Application Form (K)
Not archived · Council Link
Anglian water
Consultee Comment (D)
Not archived · Council Link
Anglian water
Consultee Comment (D)
Not archived · Council Link
Anglian water
Consultee Comment (D)
Not archived · Council Link
Anglian water
Consultee Comment (D)
Not archived · Council Link
Anglian water sewer map
Drawing (K)
Not archived · Council Link
Applicant response to neighbour concerns
Report (K)
Not archived · Council Link
Application form redacted
Application Form (K)
Not archived · Council Link
Biodiversity net gain feasibility report
Drawing (K)
Not archived · Council Link
Biodiversity net gain feasibility report
Report (K)
Not archived · Council Link
Biodiversity net gain supporting statement
Report (K)
Not archived · Council Link
Bng baseline tharston v2
Report (K)
Not archived · Council Link
Bng proposal tharston v2
Report (K)
Not archived · Council Link
Committee report
Delegated/Committee Report (K)
Not archived · Council Link
Confirmation of nn credit availability
Correspondence (D)
Not archived · Council Link
Ecological impact assessment
Report (K)
Not archived · Council Link
Ecologist and biodiversity officer
Consultee Comment (D)
Not archived · Council Link
Ecology & biodiversity comment
Consultee Comment (D)
Not archived · Council Link
Email exchange between officer and agent
Correspondence (D)
Not archived · Council Link
Email exchange between officer and agent
Correspondence (D)
Not archived · Council Link
Email exchange between officer and agent
Correspondence (D)
Not archived · Council Link
Email exchange between officer and applicant
Correspondence (D)
Not archived · Council Link
Environmental management comment
Consultee Comment (D)
Not archived · Council Link
Environmental quality team
Consultee Comment (D)
Not archived · Council Link
Indicative elevations
Drawing (K)
Not archived · Council Link
Indicative elevations
Drawing (K)
Not archived · Council Link
Indicative landscape plan
Drawing (K)
Not archived · Council Link
Indicative plans
Drawing (K)
Not archived · Council Link
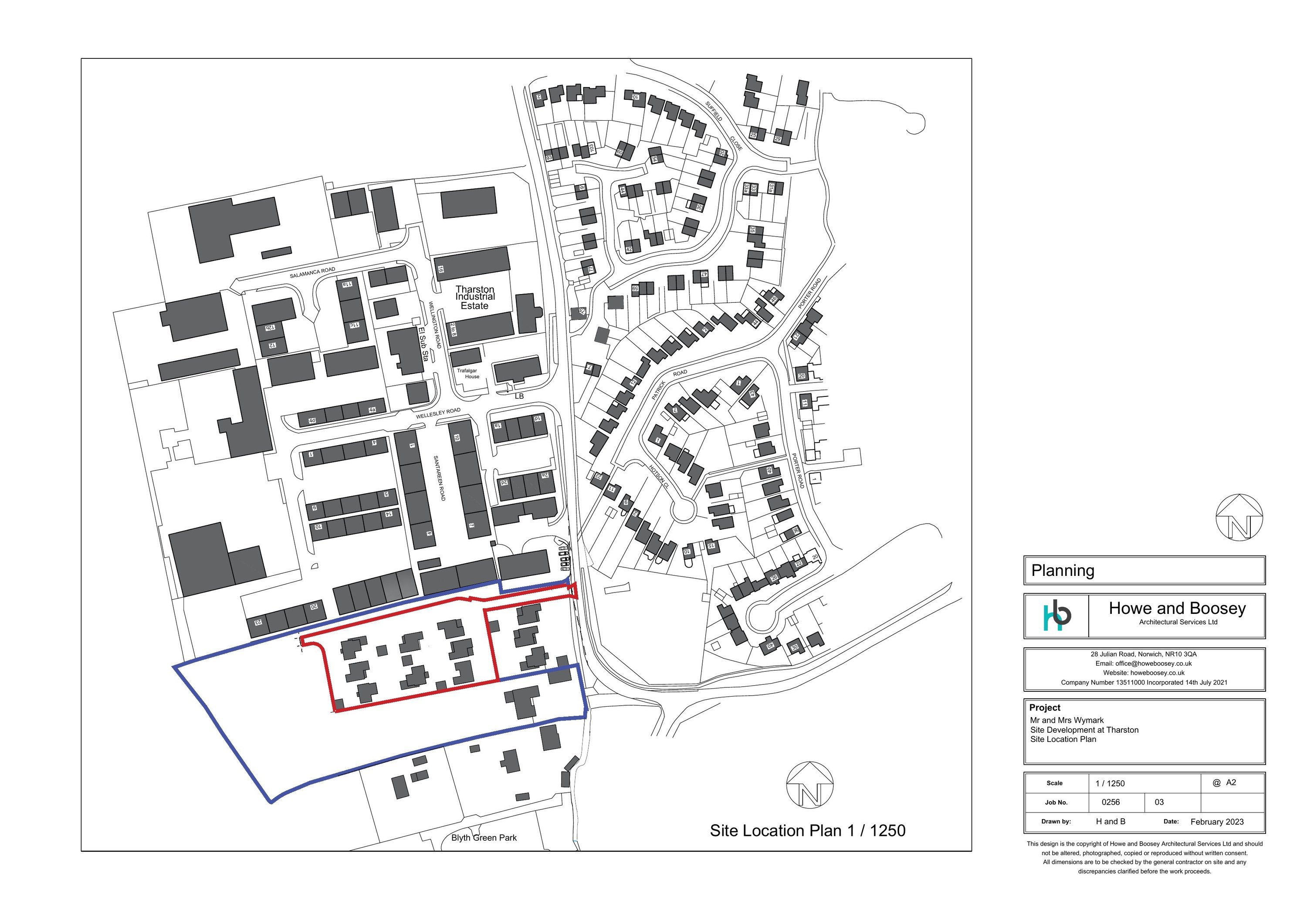
Site LocationPlan (K)
Archived · Council Link
Drawing (K)
Archived · Council Link
Location plan
Drawing (K)
Not archived · Council Link
Ncc highways
Consultee Comment (D)
Not archived · Council Link
Noise impact assessment
Report (K)
Not archived · Council Link
Norfolk county council highways comment
Consultee Comment (D)
Not archived · Council Link
Nutrient neutrality calculator
Report (K)
Not archived · Council Link
Parish council
Consultee Comment (D)
Not archived · Council Link
Planning statement
Report (K)
Not archived · Council Link
Planning statement rev a
Report (K)
Not archived · Council Link
Re-consultation email
Correspondence (D)
Not archived · Council Link
Residents of whymarks walk
Public Comment (D)
Not archived · Council Link
Returned post unit 15a wellesley road
BackGround Papers (K)
Not archived · Council Link
Screening assessment form
Consultee Comment (D)
Not archived · Council Link
Screening assessment form
Report (K)
Not archived · Council Link
Site LocationPlan (K)
Archived · Council Link
Sport england
Consultee Comment (D)
Not archived · Council Link
Statutory metric calculation
Report (K)
Not archived · Council Link

Take Action

Make your voice heard. Authorities need to hear from people who support new homes.

✉️ Write Email in Support View on Council Portal