← Back to Broadland and South Norfolk Council

Status

Pending Decision
Received
05 Sep 2025
New dwellings
n/a

Full Proposal

Conversion of single floor commercial shop to one-bedroom residential unit

Documents

97b denmark street
Public Comment (D)
Not archived · Council Link
97b denmark street
Public Comment (D)
Not archived · Council Link
97b denmark street- photo 1
Public Comment (D)
Not archived · Council Link
97b denmark street- photo 2
Public Comment (D)
Not archived · Council Link
97b denmark street- photo 3
Public Comment (D)
Not archived · Council Link
Application form
Application Form (K)
Not archived · Council Link
Cil form 1 - additional info
CIL Documentation (K)
Not archived · Council Link
Design and access statement
Report (K)
Not archived · Council Link
Edp advert
BackGround Papers (K)
Not archived · Council Link
Estate agents advertisment
BackGround Papers (K)
Not archived · Council Link
Existing plans and elevations
Drawing (K)
Not archived · Council Link
Existing window section
Drawing (K)
Not archived · Council Link
Heritage statement
Report (K)
Not archived · Council Link
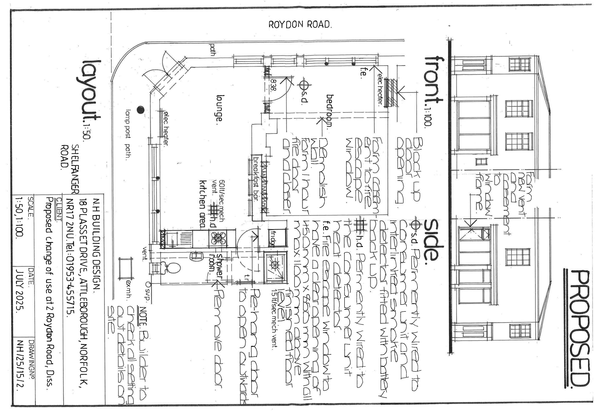
Proposed elevations and layout
Drawing (K)
Not archived · Council Link
Proposed fire escape section and window
Drawing (K)
Not archived · Council Link
Proposed window section
Drawing (K)
Not archived · Council Link
Signed declaration - app form
Application Form (K)
Not archived · Council Link
Site boundary plan
Drawing (K)
Not archived · Council Link
Drawing (K)
Archived · Council Link

Take Action

Make your voice heard. Authorities need to hear from people who support new homes.

✉️ Write Email in Support View on Council Portal