← Back to Broadland and South Norfolk Council

Status

Pending Consideration
Received
02 Oct 2025
New dwellings
n/a

Full Proposal

Erection of self-build dwelling to replace existing agricultural building

Documents

Amended nn calculator
BackGround Papers (K)
Not archived · Council Link
Application form - redacted
Application Form (K)
Not archived · Council Link
Confirmation happy with description
BackGround Papers (K)
Not archived · Council Link
Draft unilateral undertaking
Legal Agreement (K)
Not archived · Council Link
Environmental quality
Consultee Comment (D)
Not archived · Council Link
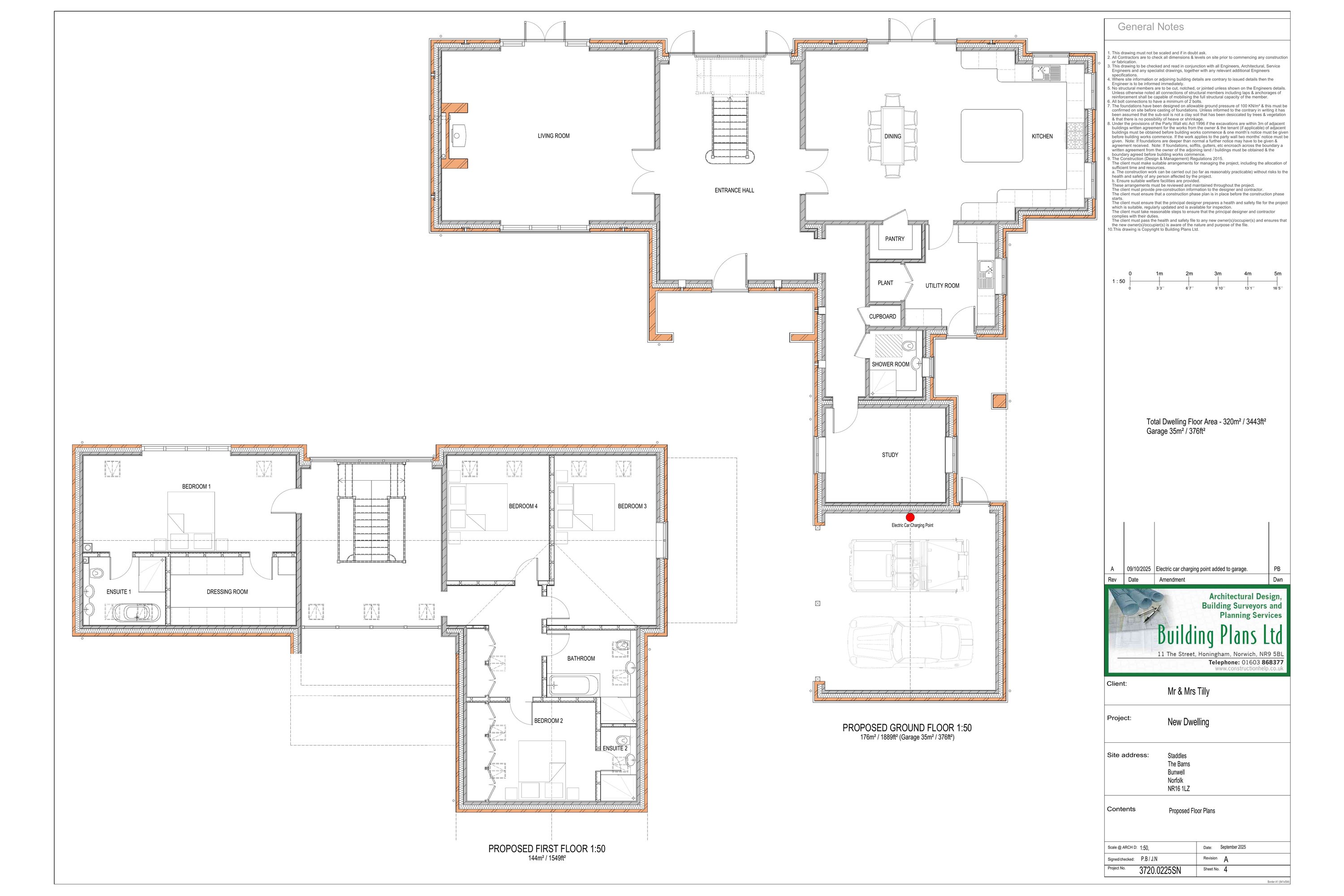
Existing elevations, floor plans and section
Drawing (K)
Not archived · Council Link
Full application form
Application Form (K)
Not archived · Council Link
Ncc highways
Consultee Comment (D)
Not archived · Council Link
Nutrient neutrality
Consultee Comment (D)
Not archived · Council Link
Nutrient neutrality comment
Consultee Comment (D)
Not archived · Council Link
Nutrient neutrality comment
Consultee Comment (D)
Not archived · Council Link
Press advert
BackGround Papers (K)
Not archived · Council Link
Proposed elevations
Drawing (K)
Not archived · Council Link
Drawing (K)
Archived · Council Link
Drawing (K)
Archived · Council Link
Proposed site and location plan
Drawing (K)
Not archived · Council Link
Public comment
Public Comment (D)
Not archived · Council Link
Re-consultation instruction
Officer Notes
Not archived · Council Link
Self build statement
Report (K)
Not archived · Council Link
Superseded calculator
BackGround Papers (K)
Not archived · Council Link

Take Action

Make your voice heard. Authorities need to hear from people who support new homes.

✉️ Write Email in Support View on Council Portal