← Back to Broadland and South Norfolk Council

Status

Pending Consideration
Received
31 Oct 2025
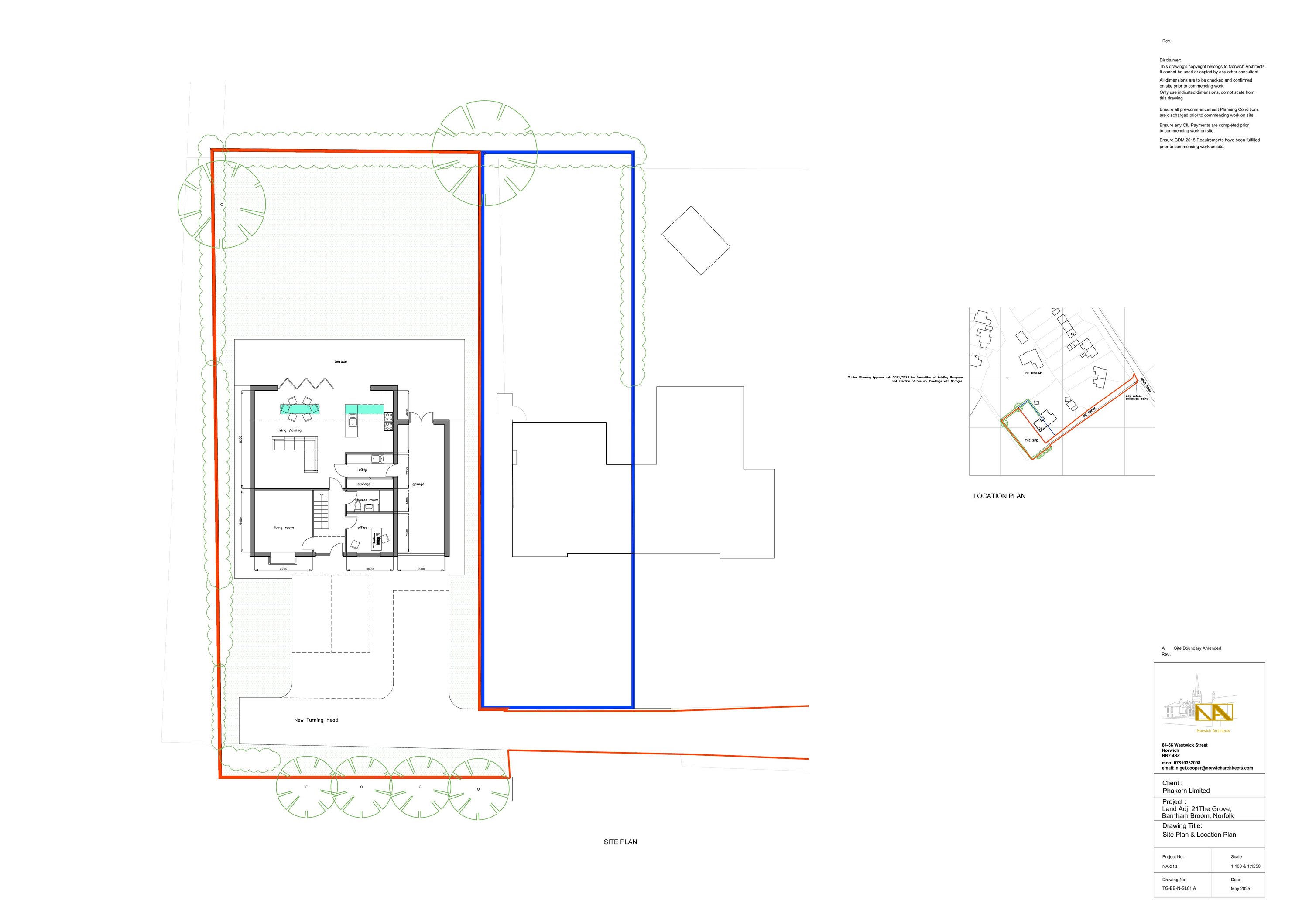
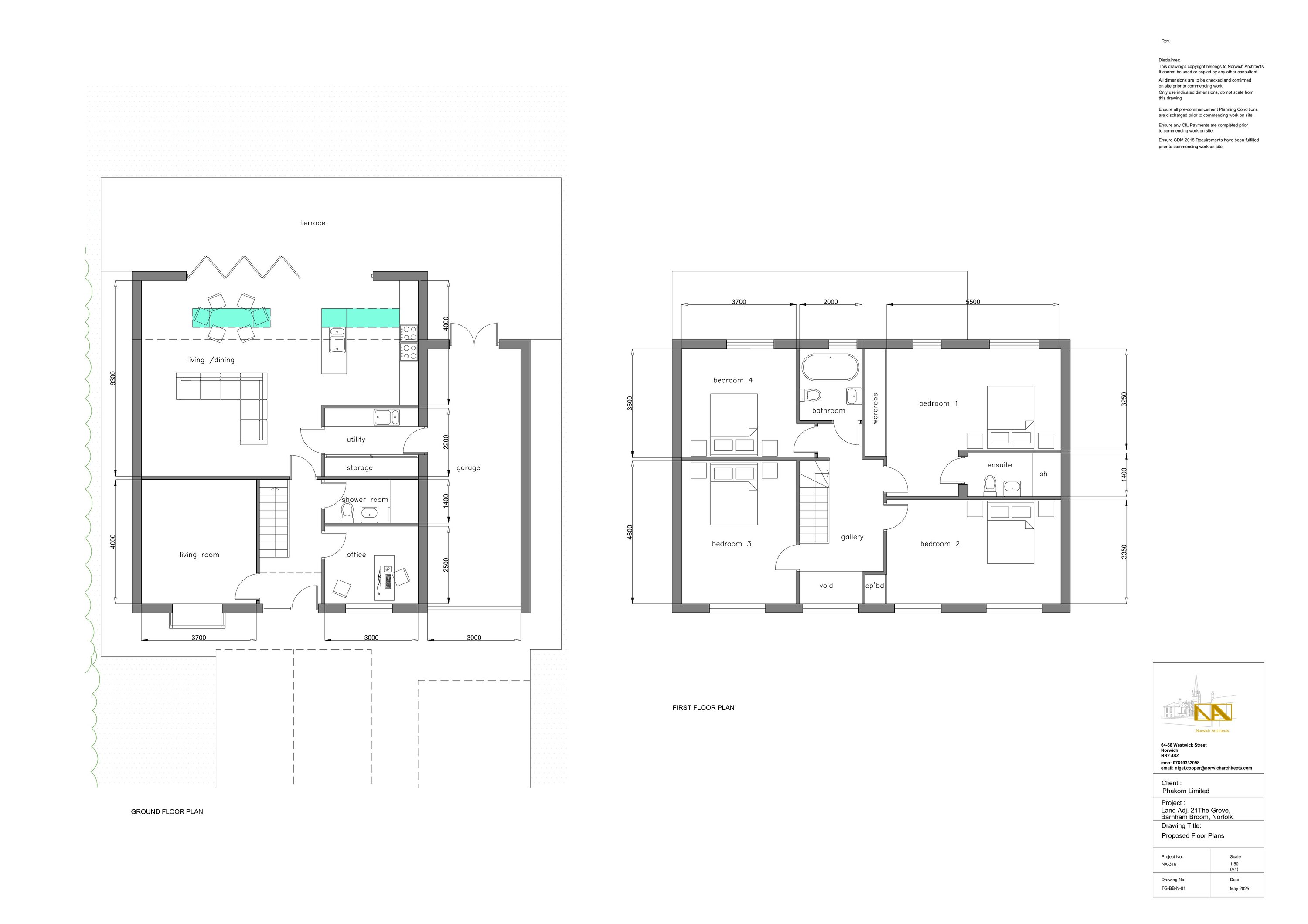
New dwellings
n/a

Full Proposal

Outline planning permission for the erection of 1 self-build dwelling

Documents

18 the grove
Public Comment (D)
Not archived · Council Link
19 the grove
Public Comment (D)
Not archived · Council Link
20 the grove
Public Comment (D)
Not archived · Council Link
Additional consultee instruction
Officer Notes
Not archived · Council Link
Application form redacted
Application Form (K)
Not archived · Council Link
Beech house
Public Comment (D)
Not archived · Council Link
Design and access statement
Report (K)
Not archived · Council Link
Environmental quality
Consultee Comment (D)
Not archived · Council Link
Ncc highways
Consultee Comment (D)
Not archived · Council Link
Parish council
Consultee Comment (D)
Not archived · Council Link
Planning statement
Report (K)
Not archived · Council Link
Proposed elevations
Drawing (K)
Not archived · Council Link
Drawing (K)
Archived · Council Link
Returned post -94 norwich road
Correspondence (D)
Not archived · Council Link
Drawing (K)
Archived · Council Link
Site LocationPlan (K)
Archived · Council Link

Take Action

Make your voice heard. Authorities need to hear from people who support new homes.

✉️ Write Email in Support View on Council Portal