← Back to Broadland and South Norfolk Council

Status

Pending Decision
Received
18 Dec 2025
New dwellings
n/a

Summary

Change of use of agricultural buildings to seven dwellinghouses (Prior Approval).

Full Proposal

Notification for Prior Approval for a proposed change of use and associated building works of agricultural buildings to 7 dwellinghouses (QA & QB)

Documents

Applicants email
BackGround Papers (K)
Not archived · Council Link
Environmental management comment
Consultee Comment (D)
Not archived · Council Link
Existing block plan
Drawing (K)
Not archived · Council Link
Existing elevations - units 2 and 3
Drawing (K)
Not archived · Council Link
Existing elevations - units 4, 5, 6 and 7
Drawing (K)
Not archived · Council Link
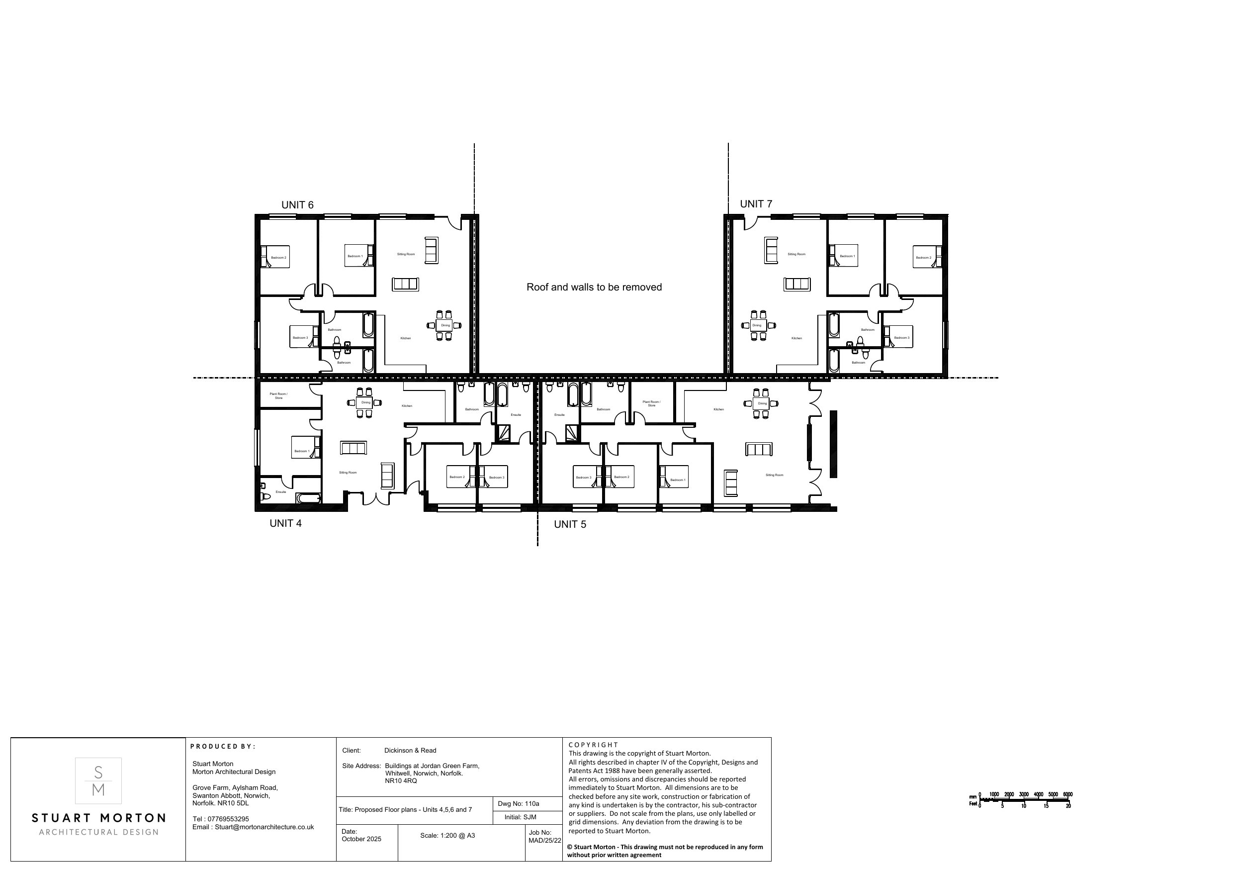
Existing floor plan - units 4, 5, 6 and 7
Drawing (K)
Not archived · Council Link
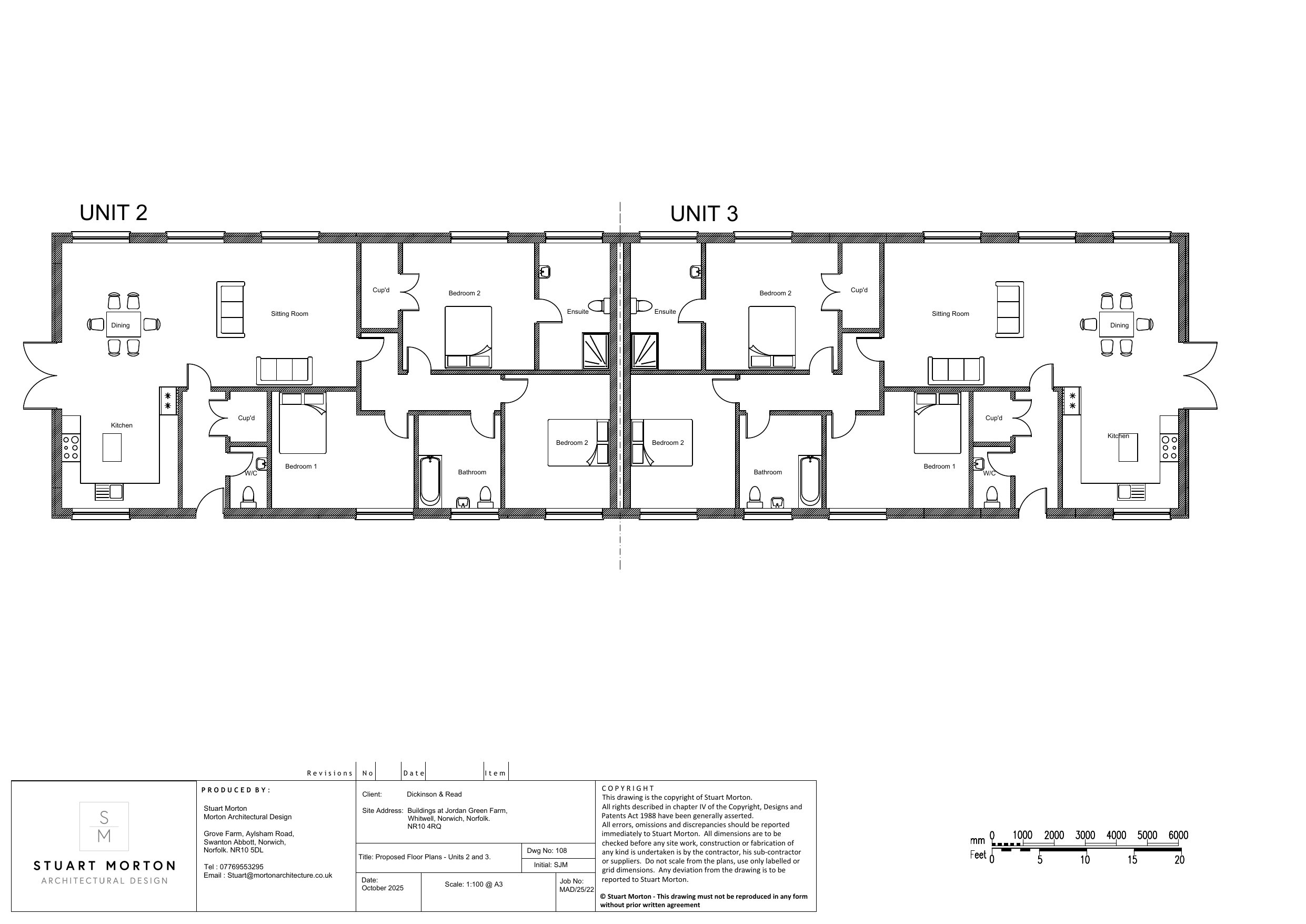
Existing floor plans - units 2 and 3
Drawing (K)
Not archived · Council Link
Existing floor plans and elevations - unit 1
Drawing (K)
Not archived · Council Link
Existing location plan
Drawing (K)
Not archived · Council Link
Fire water officer
Public Comment (D)
Not archived · Council Link
Ncc highways
Consultee Comment (D)
Not archived · Council Link
Neutrient neutrality solution summary
BackGround Papers (K)
Not archived · Council Link
Norfolk calculator - existing septic tank
BackGround Papers (K)
Not archived · Council Link
Norfolk calculator - existing septic tank
Report (K)
Not archived · Council Link
Norfolk calculator - new graf one2clean septic tank
Report (K)
Not archived · Council Link
Norfolk calculator - new septic tank
BackGround Papers (K)
Not archived · Council Link
Norfolk calculator - whitwell class q (rev. a)
Report (K)
Not archived · Council Link
Norfolk calculator - whitwell class q site
BackGround Papers (K)
Not archived · Council Link
Nutrient neutrality calculator
Consultee Comment (D)
Not archived · Council Link
Nutrient neutrality solution summary (rev. a)
Report (K)
Not archived · Council Link
Planning statement
BackGround Papers (K)
Not archived · Council Link
Preliminary ecological appraisal
BackGround Papers (K)
Not archived · Council Link
Proposed block plan
Drawing (K)
Not archived · Council Link
Proposed elevations - units 2 and 3
Drawing (K)
Not archived · Council Link
Proposed elevations - units 4, 5. 6 and 7
Drawing (K)
Not archived · Council Link
Reepham town council
Consultee Comment (D)
Not archived · Council Link
Screening assessment
BackGround Papers (K)
Not archived · Council Link
Structural report
BackGround Papers (K)
Not archived · Council Link
Superseded - neutrient neutrality solution summary
BackGround Papers (K)
Not archived · Council Link
Superseded - norfolk calculator - existing septic tank
BackGround Papers (K)
Not archived · Council Link
Superseded - norfolk calculator - new septic tank
BackGround Papers (K)
Not archived · Council Link
Superseded - norfolk calculator - whitwell class q site
BackGround Papers (K)
Not archived · Council Link

Take Action

Make your voice heard. Authorities need to hear from people who support new homes.

✉️ Write Email in Support View on Council Portal