← Back to South Ribble Borough Council

Status

Unknown
Received
19 Sep 2024
New dwellings
n/a

Full Proposal

Demolition of existing Showroom area and Change of Use from office space into 3 Apartments and one dwelling.

Documents

ACCESS STATEMENT SEPTEMBER 2024
Planning File
Not archived · Council Link
APPLICATION FORM REDACTED
Planning File
Not archived · Council Link
APPROVAL FULL PLANNING
Decision
Not archived · Council Link
BLOCK PLAN
Planning File
Not archived · Council Link
CIL FORM
Planning File
Not archived · Council Link
CIL RESPONSE
Consultee Response
Not archived · Council Link
DELEGATED REPORT
Delegated Report
Not archived · Council Link
ECOLOGY
Consultee Response
Not archived · Council Link
ELEVATIONS 1 OF 2
Planning File
Not archived · Council Link
ELEVATIONS 1 OF 2
Planning File
Not archived · Council Link
ELEVATIONS 2 OF 2
Planning File
Not archived · Council Link
ELEVATIONS 2 OF 2
Planning File
Not archived · Council Link
ELEVATIONS WITH NO ROOFLIGHTS
Planning File
Not archived · Council Link
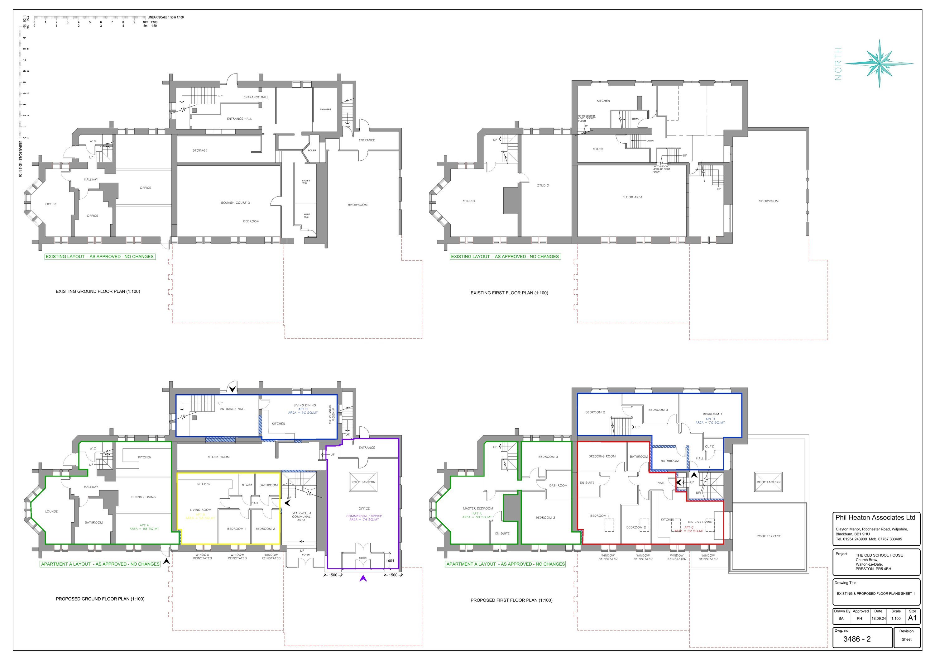
FLOOR PLANS
Planning File
Not archived · Council Link
GROWTH LANCASHIRE.
Consultee Response
Not archived · Council Link
HERITAGE STATEMENT OCTOBER 2024
Planning File
Not archived · Council Link
HIGHWAYS
Consultee Response
Not archived · Council Link
OS MAP RED LINED
Planning File
Not archived · Council Link
OSH LBC APPLICATION FORM
Planning File
Not archived · Council Link
PLAN 1 - A - OCT
Planning File
Not archived · Council Link
ROOF PLAN NO ROOFLIGHTS
Planning File
Not archived · Council Link
SECTION THROUGH EXTERNAL WALL WITH BREATHABLE CAVITY
Planning File
Not archived · Council Link
SITE LAYOUT
Planning File
Not archived · Council Link
Planning File
Archived · Council Link

Take Action

Make your voice heard. Authorities need to hear from people who support new homes.

✉️ Write Email in Support View on Council Portal