← Back to South Ribble Borough Council

Status

Unknown
Received
30 Sep 2024
New dwellings
n/a

Full Proposal

Erection of one proposed new two storey dwelling including new access and landscaping on land to North of 56 Newgate Lane.

Documents

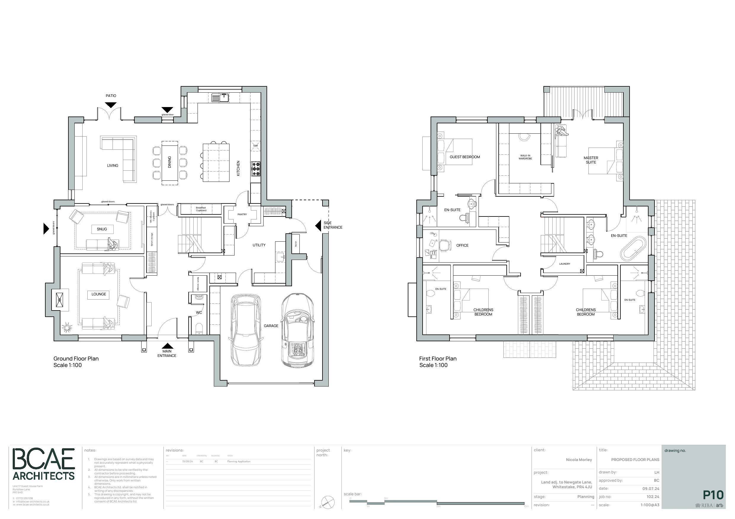
102.24 - E00 - LOCATION PLAN
Planning File
Not archived · Council Link
102.24 - NEWGATE LANE - DA STATEMENT_COMPRESSED 2
Planning File
Not archived · Council Link
Planning File
Archived · Council Link
102.24 - P20 - PROPOSED ELEVATIONS SHEET 1
Planning File
Not archived · Council Link
102.24 - P21 - PROPOSED ELEVATIONS SHEET 2
Planning File
Not archived · Council Link
APPLICATIONFORMREDACTED
Planning File
Not archived · Council Link
APPROVAL FULL PLANNING
Decision
Not archived · Council Link
ARBORICULTURAL IMPLICATIONS ASSESSMENT
Planning File
Not archived · Council Link
ARBORICULTURAL STATEMENT
Planning File
Not archived · Council Link
CGI'S & VISUAL APPRAISAL M3834-VA-24.08-V1
Planning File
Not archived · Council Link
CIL MEASURED FLOOR PLAN
CIL Document
Not archived · Council Link
CIL RESPONSE
Consultee Response
Not archived · Council Link
Delegated Report
Delegated Report
Not archived · Council Link
ECOLOGY
Consultee Response
Not archived · Council Link
ECOLOGY
Consultee Response
Not archived · Council Link
ECOLOGY PHASE 1SURVEY -ERAP LTD 2024-259 56 NEWGATE LANE
Planning File
Not archived · Council Link
ERAP 2024-259 BNG EXEMPTION
Planning File
Not archived · Council Link
Planning File
Archived · Council Link
HIGHWAYS RESPONSE
Consultee Response
Not archived · Council Link
NEIGHBOUR CONTACT LIST
Planning File
Not archived · Council Link
PLANNING STATEMENT
Planning File
Not archived · Council Link
TREES
Consultee Response
Not archived · Council Link
UU RESPONSE
Consultee Response
Not archived · Council Link

Take Action

Make your voice heard. Authorities need to hear from people who support new homes.

✉️ Write Email in Support View on Council Portal