← Back to South Ribble Borough Council

Status

Unknown
Received
05 Oct 2024
New dwellings
n/a

Full Proposal

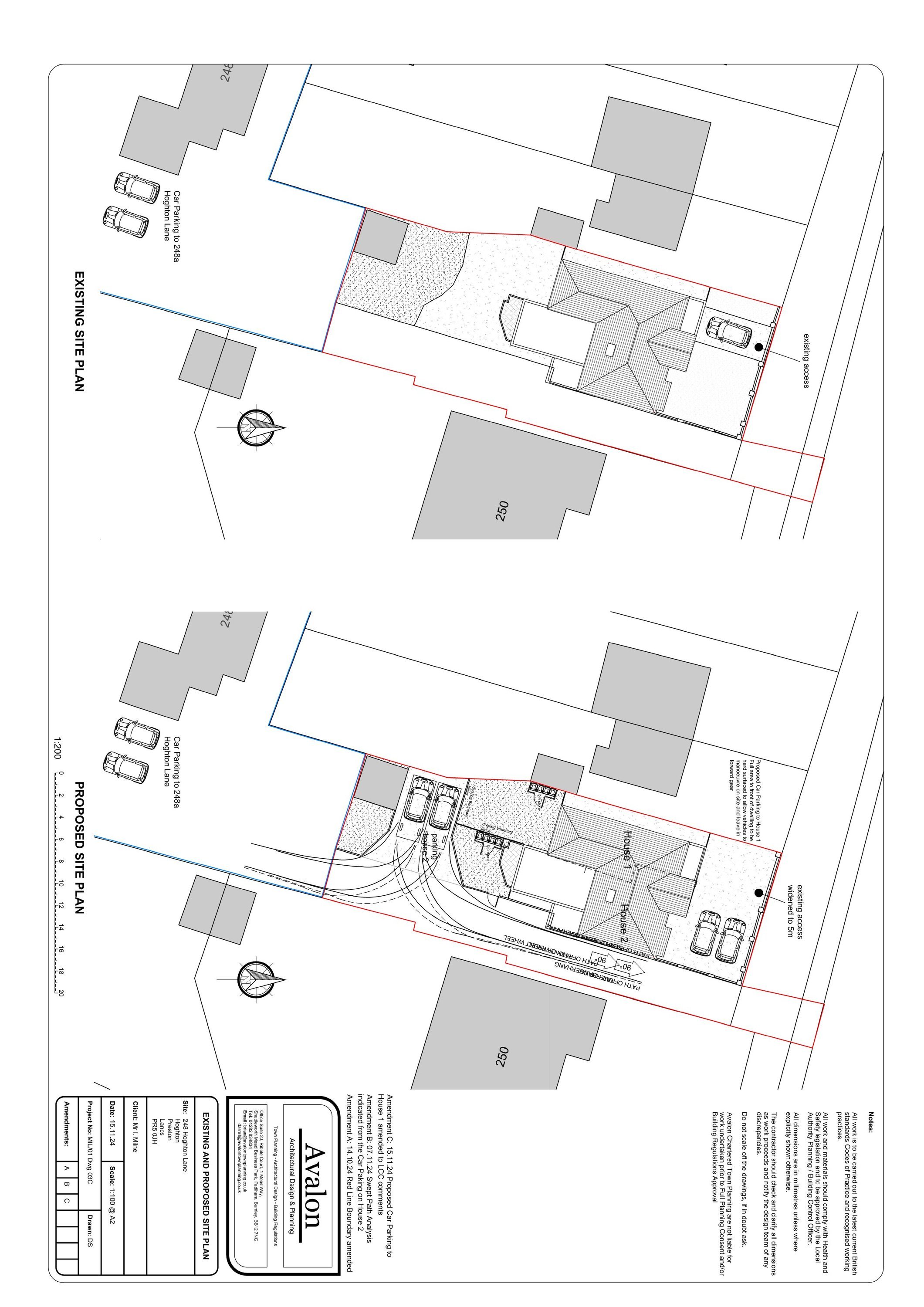
Subdivision of existing dwelling into 2 dwellings together with a rear single storey extension

Documents

APPLICATIONFORMREDACTED
Planning File
Not archived · Council Link
APPROVAL FULL PLANNING
Decision
Not archived · Council Link
CIL RESPONSE
Consultee Response
Not archived · Council Link
EXISTING PLANS AND ELEVATIONS
Planning File
Not archived · Council Link
HIGHWAYS RESPONSE
Consultee Response
Not archived · Council Link
LCC HIGHWAYS
Consultee Response
Not archived · Council Link
LCC HIGHWAYS
Consultee Response
Not archived · Council Link
LOCATION PLAN
Planning File
Not archived · Council Link
Planning File
Archived · Council Link
Amended Plans
Archived · Council Link

Take Action

Make your voice heard. Authorities need to hear from people who support new homes.

✉️ Write Email in Support View on Council Portal