← Back to South Ribble Borough Council

Status

Awaiting decision
Received
25 Jul 2025
New dwellings
n/a

Summary

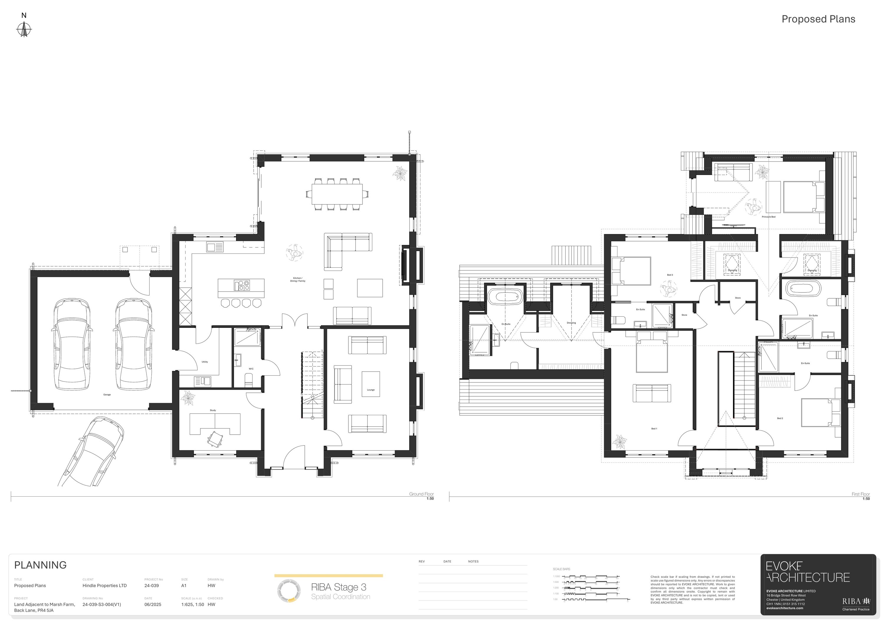
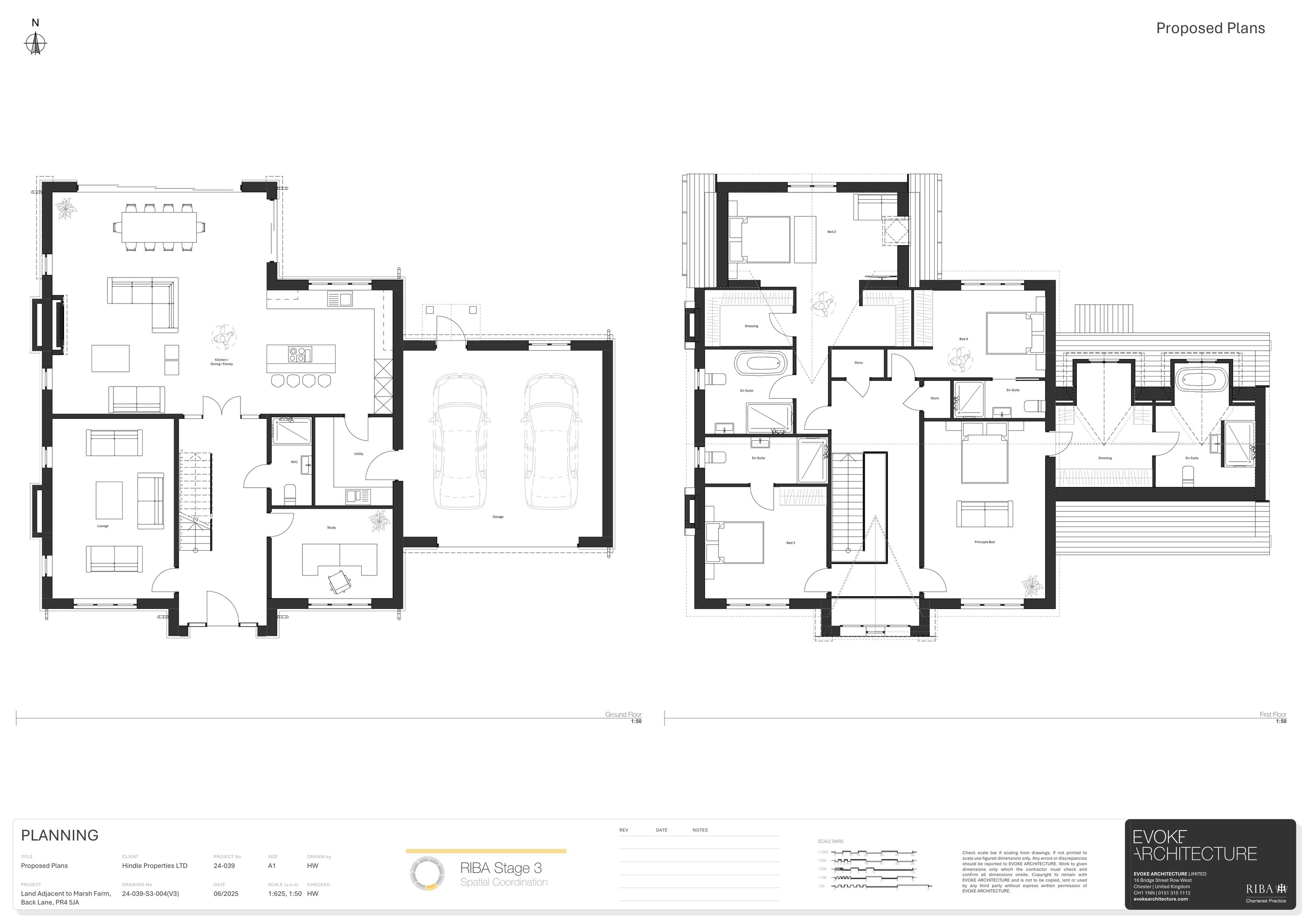
Technical details consent for erection of one dwelling following permission in principle.

Full Proposal

Stage 2 Technical Details Consent following permission in principle for the erection of one dwelling (07/2024/00304/PIP)

Documents

(SUPERSEDED) CONCEPT VISUALS
Planning File
Not archived · Council Link
(SUPERSEDED) PROPOSED ELEVATIONS
Planning File
Not archived · Council Link
(SUPERSEDED) PROPOSED ELEVATIONS
Planning File
Not archived · Council Link
Planning File
Archived · Council Link
Planning File
Archived · Council Link
Planning File
Archived · Council Link
APPLICATION FORM REDACTED
Planning File
Not archived · Council Link
BNG ASSESSMENT
Planning File
Not archived · Council Link
BNG METRIC
Planning File
Not archived · Council Link
CIL
Consultee Response
Not archived · Council Link
CIL
Consultee Response
Not archived · Council Link
CONCEPT VISUALS
Amended Plans
Not archived · Council Link
DECISION NOTICE
Decision Notice
Not archived · Council Link
DELEGATED REPORT
Delegated Report
Not archived · Council Link
ECOLOGY
Consultee Response
Not archived · Council Link
ENVIRONMENTAL HEALTH
Consultee Response
Not archived · Council Link
Planning File
Archived · Council Link
HIGHWAYS RESPONSE
Consultee Response
Not archived · Council Link
HIGHWAYS RESPONSE
Consultee Response
Not archived · Council Link
LCC HIGHWAYS
Consultee Response
Not archived · Council Link
LOCATION PLAN
Planning File
Not archived · Council Link
PRELIMINARY ECOLOGICAL APPRAISAL
Planning File
Not archived · Council Link
PROPOSED ELEVATIONS
Amended Plans
Not archived · Council Link
Amended Plans
Archived · Council Link
Amended Plans
Archived · Council Link
PROPOSED STREET SCENE
Amended Plans
Not archived · Council Link
UNITED UTILITIES
Consultee Response
Not archived · Council Link

Take Action

Make your voice heard. Authorities need to hear from people who support new homes.

✉️ Write Email in Support View on Council Portal