← Back to South Ribble Borough Council
07/2025/00688/FUL
South Ribble Borough Council · IDOX
Status
Unknown
Received
05 Sep 2025
New dwellings
n/a
Full Proposal
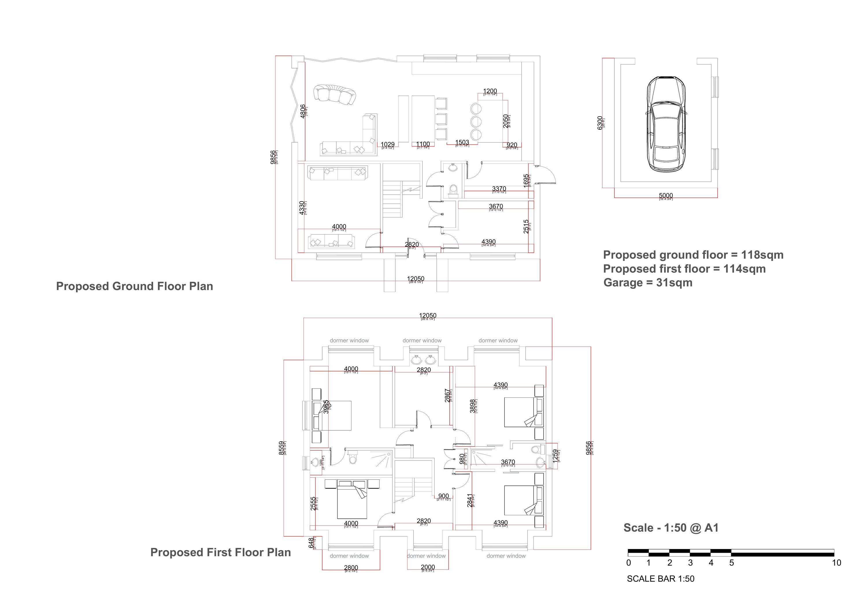
Demolition of existing implement shed and stable block, removal of associated existing equestrian menage, and erection of a detached (self-build) dwellinghouse with ancillary garage and associated landscaping
Documents
PRELIMINARY ECOLOGICAL APPRAISAL AND PRELIMINARY BAT ROOST ASSESSMENT
Planning File
Not archived
· Council Link
Take Action
Make your voice heard. Authorities need to hear from people who support new homes.