← Back to South Ribble Borough Council

Status

Unknown
Received
19 Sep 2025
New dwellings
n/a

Summary

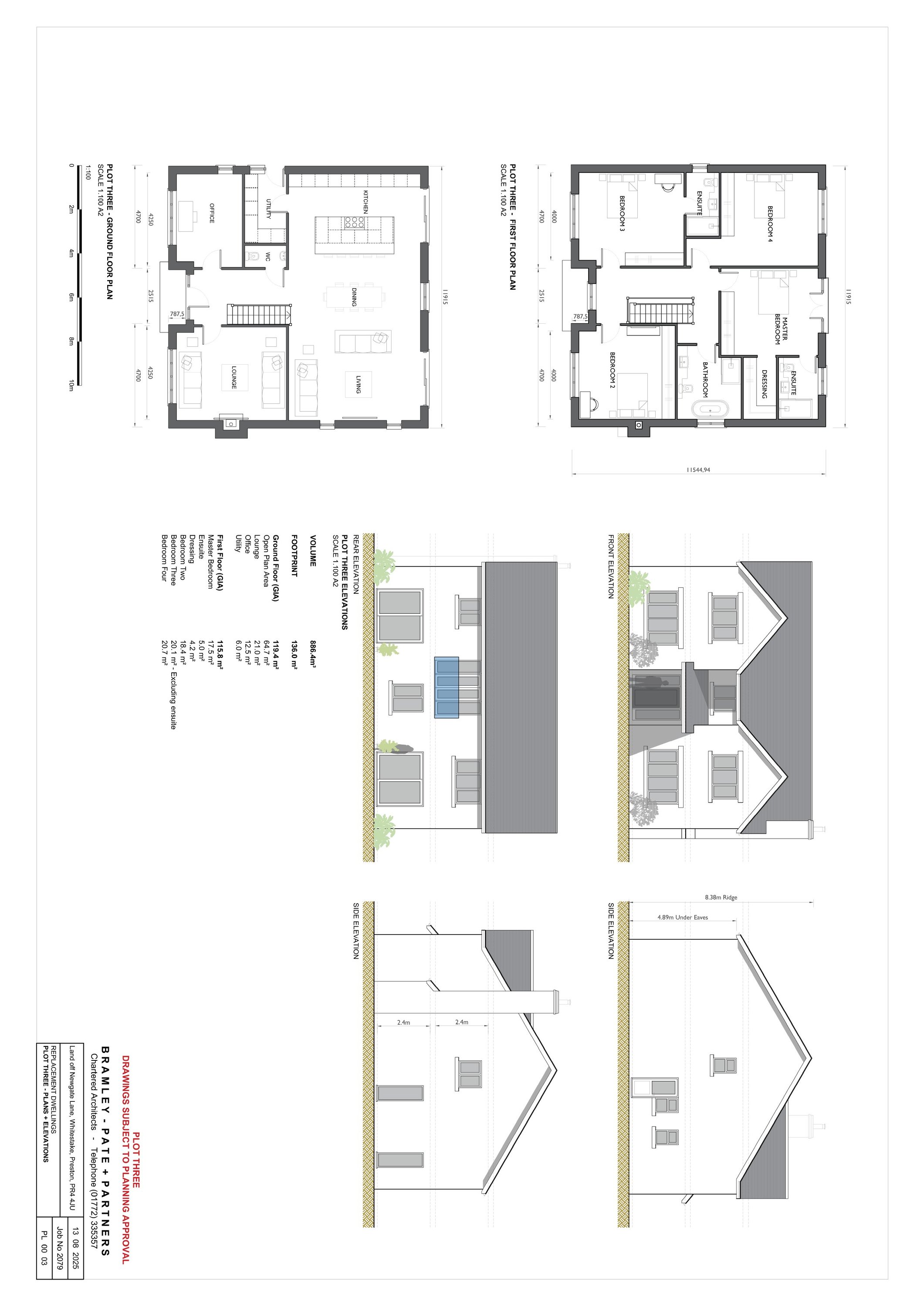
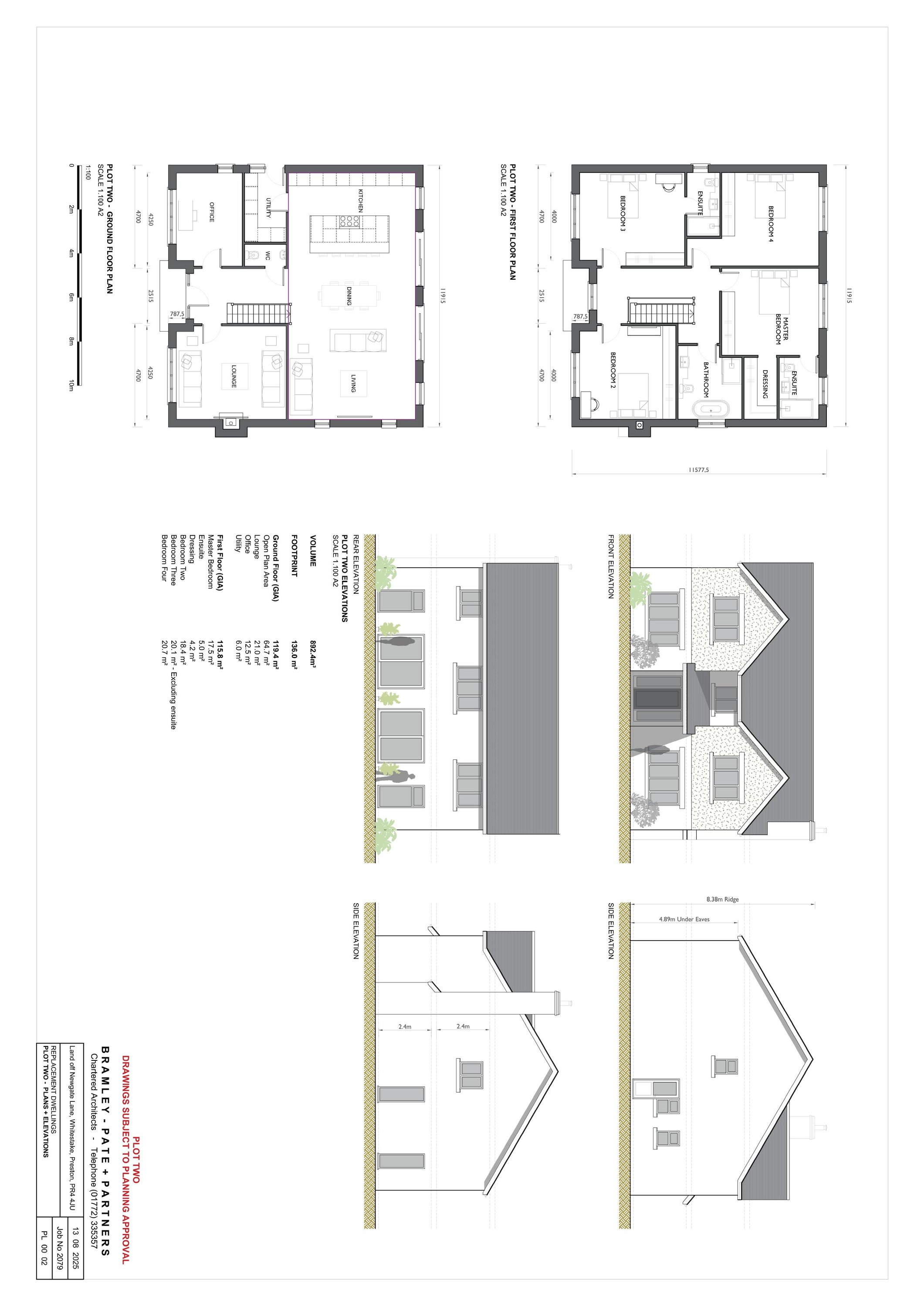
Demolish farm building; construct 3 self-built houses

Full Proposal

Demolition of existing agricultural building and erection of three self-build detached dwellinghouses

Documents

APPLICATION FORM REDACTED
Planning File
Not archived · Council Link
APPROVAL FULL PLANNING
Decision
Not archived · Council Link
DELEGATED REPORT
Delegated Report
Not archived · Council Link
ECOLOGY RESPONSE
Consultee Response
Not archived · Council Link
ENVIRONMENTAL HEALTH
Consultee Response
Not archived · Council Link
EXISTING ELEVATIONS
Planning File
Not archived · Council Link
EXISTING FLOORPLANS
Planning File
Not archived · Council Link
HIGHWAYS
Consultee Response
Not archived · Council Link
LOCATION PLAN
Planning File
Not archived · Council Link
PLANNING SUPPORT DOCUMENT
Planning File
Not archived · Council Link
PRELIMINARY DRAINAGE STRATEGY
Planning File
Not archived · Council Link
PRELIMINARY ECOLOGICAL APPRAISAL
Planning File
Not archived · Council Link
PRELIMINARY RISK ASSESSMENT (CONTAMINATION REPORT)
Planning File
Not archived · Council Link
PROPOSED SITE CONTEXT PLAN
Amended Plans
Not archived · Council Link
PROPOSED SITE CONTEXT PLAN
Planning File
Not archived · Council Link
PROPOSED SITE PLAN
Amended Plans
Not archived · Council Link
Amended Plans
Archived · Council Link
PROPOSED SITE PLAN (ALTERNATIVE OPTION)
Amended Plans
Not archived · Council Link
UU RESPONSE
Consultee Response
Not archived · Council Link

Take Action

Make your voice heard. Authorities need to hear from people who support new homes.

✉️ Write Email in Support View on Council Portal