← Back to South Ribble Borough Council

Status

Unknown
Received
16 Dec 2025
New dwellings
n/a

Full Proposal

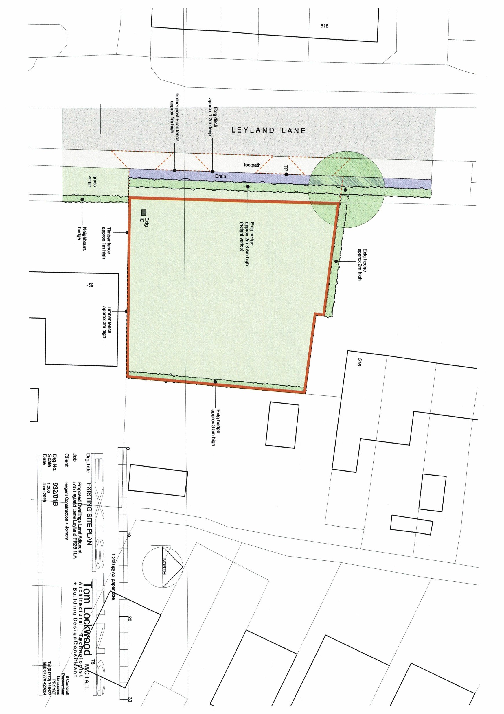
Stage 2 Technical Details Consent for the erection of 3no. two-storey terraced dwellinghouses and associated infrastructure, following Stage 1 Permission in Principle application 07/2025/00254/PIP.

Documents

A3 EXTRACT FROM JLP SURVEYING
Planning File
Not archived · Council Link
AIA
Planning File
Not archived · Council Link
APPENDIX 1 TREE DATA
Planning File
Not archived · Council Link
APPENDIX 2 TSP
Planning File
Not archived · Council Link
APPENDIX 3 TCP
Planning File
Not archived · Council Link
APPENDIX 4 TPP
Planning File
Not archived · Council Link
APPENDIX 5 PLP
Planning File
Not archived · Council Link
APPLICATION FORM REDACTED
Planning File
Not archived · Council Link
APPRENDIX 6 ROOT PROTECTION CALCULATIONS
Planning File
Not archived · Council Link
BNG METRIC
Planning File
Not archived · Council Link
CIL
Consultee Response
Not archived · Council Link
CIL FORM 1
CIL Document
Not archived · Council Link
ENV HEALTH
Consultee Response
Not archived · Council Link
ENVIRONMENT AGENCY RESPONSE
Consultee Response
Not archived · Council Link
Planning File
Archived · Council Link
HABITAT CONDITION SHEET
Planning File
Not archived · Council Link
HIGHWAYS RESPONSE
Consultee Response
Not archived · Council Link
LOCATION PLAN
Planning File
Not archived · Council Link
PEA AND BNG
Planning File
Not archived · Council Link
PROPOSED ELEVATIONS
Planning File
Not archived · Council Link
PROPOSED ELEVATIONS
Planning File
Not archived · Council Link
PROPOSED FF PLAN
Planning File
Not archived · Council Link
PROPOSED GF PLAN
Planning File
Not archived · Council Link
PROPOSED LAYOUT WITH VISIBILITY SIGHT LINES
Site Elevations, Building Plans etc.
Not archived · Council Link
Site Elevations, Building Plans etc.
Archived · Council Link
UNITED UTILITIES
Consultee Response
Not archived · Council Link

Take Action

Make your voice heard. Authorities need to hear from people who support new homes.

✉️ Write Email in Support View on Council Portal