← Back to South Staffordshire Council

Status

Unknown
Received
08 Jan 2025
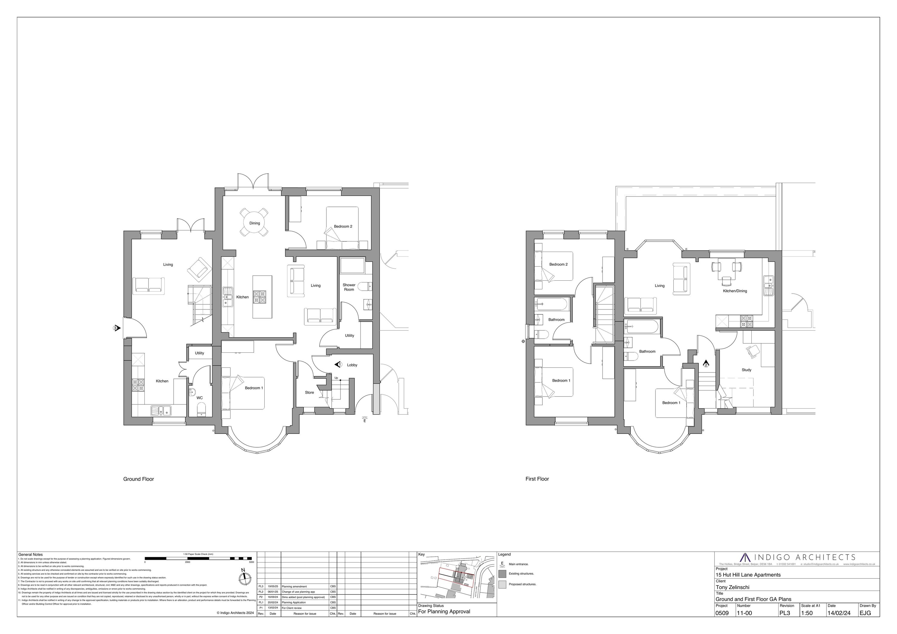
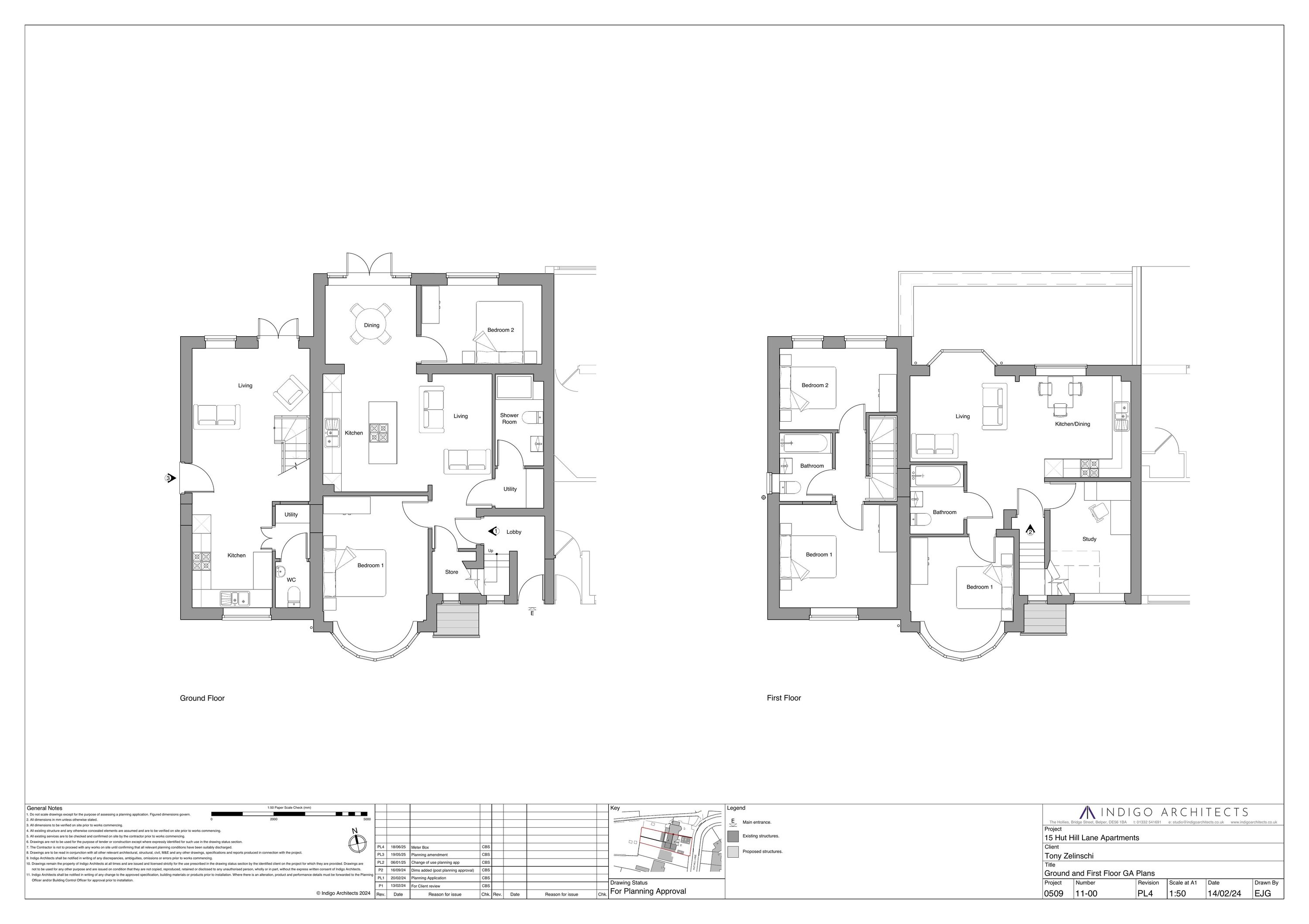
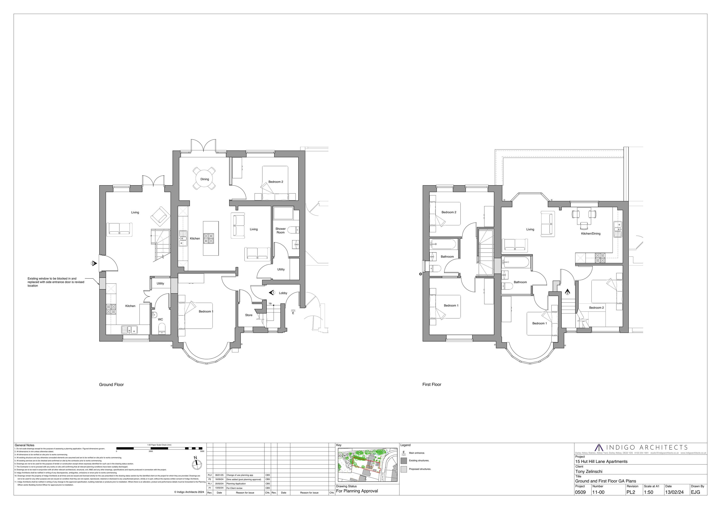
New dwellings
n/a

Full Proposal

Conversion of existing dwelling into three self contained apartments

Documents

AMENDED LOCATIPN PLAN
Amended
Not archived · Council Link
AMENDED PROPOSED ELEVATIONS
Superseded
Not archived · Council Link
Superseded
Archived · Council Link
Amended
Archived · Council Link
APPLICATIONFORMREDACTED
Application Form (Redacted)
Not archived · Council Link
APPROVED - AMENDED PROPOSED ELEVATIONS
Amended
Not archived · Council Link
Amended
Archived · Council Link
APPROVED - STREET SCENE
Amended
Not archived · Council Link
APPROVED DRAFT UU AGREEMENT
Documents
Not archived · Council Link
Decision Notice
Decision Notice
Not archived · Council Link
EXISTING ELEVATIONS
Plans and Drawings
Not archived · Council Link
EXISTING FLOOR PLANS
Plans and Drawings
Not archived · Council Link
LOCATION PLAN
Superseded
Not archived · Council Link
Officer Report
Officer Report
Not archived · Council Link
PLANNING STATEMENT REV A
Documents
Not archived · Council Link
PROPOSED ELEVATIONS
Superseded
Not archived · Council Link
Superseded
Archived · Council Link
PROPOSED STREET SCENE
Superseded
Not archived · Council Link
Section 106
Section 106
Not archived · Council Link
Superseded
Archived · Council Link

Take Action

Make your voice heard. Authorities need to hear from people who support new homes.

✉️ Write Email in Support View on Council Portal