← Back to South Staffordshire Council
Summary
Proposal for constructing up to 180 dwellings.
Full Proposal
Outline planning application (with all matters reserved except for means of vehicular access) for the construction of up to 180 dwellings, including public open space and associated infrastructure.
Documents
ACCESS PLAN
Plans and Drawings
ADDITIONAL HIGHWAYS INFORMATION
Documents
AGRICULTURAL LAND CLASSIFICATIONS REPORT
Documents
AMENDED
Application Form (Redacted)
APPLICATION FORM
Application Form (Redacted)
ARCHAEOLOGICAL DESKBASED ASSESSMENT
Archaeological Assessment
ARTICLE 13 NOTICE AND COVERING LETTER
Documents
ATC AND MCC DATA
Documents
ATC AND MCC DATA
Documents
ATC AND MCC DATA
Documents
ATC AND MCC DATA
Documents
ATC AND MCC DATA
Documents
ATC AND MCC DATA
Documents
ATC AND MCC DATA
Documents
ATC AND MCC DATA
Documents
BIODIVERSITY METRIC
Biodiversity Survey
BIODIVERSITY NET GAIN REPORT
Biodiversity Survey
BIODIVERSITY NET GAIN REPORT
Biodiversity Survey
COVER LETTER
Application Correspondence
DESIGN AND ACCESS STATEMENT
Design and Access Statement
ECOLOGICAL ASSESSMENT
Documents
Ecological Impact Assessment
Ecological Impact Assessment
EDUCATION IMPACT ASSESSMENT
Documents
FLOOD RISK ASSESSMENT
Flood Risk Assessment
GROUND CONDITIONS COVERING NOTE
Documents
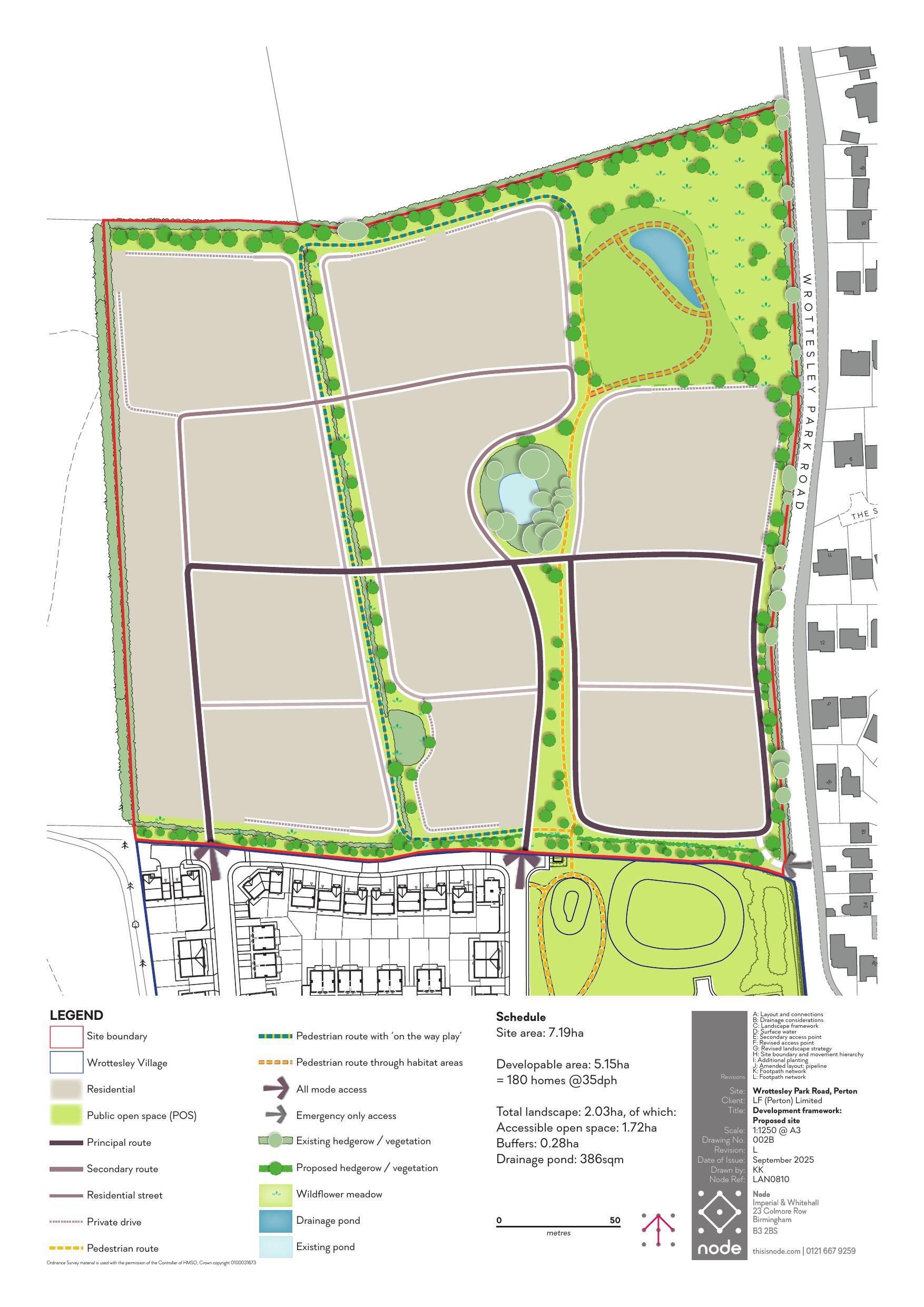
ILLUSTRATIVE MASTERPLAN PLAN
Block Plan - Proposed
JUNCTION CAPACITY MODELS
Documents
JUNCTION CAPACITY MODELS
Documents
JUNCTION CAPACITY MODELS
Documents
JUNCTION CAPACITY MODELS
Documents
JUNCTION CAPACITY MODELS
Documents
JUNCTION CAPACITY MODELS
Documents
JUNCTION CAPACITY MODELS
Documents
LANDSCAPE AND VISUAL IMPACT ASSESSMENT
Documents
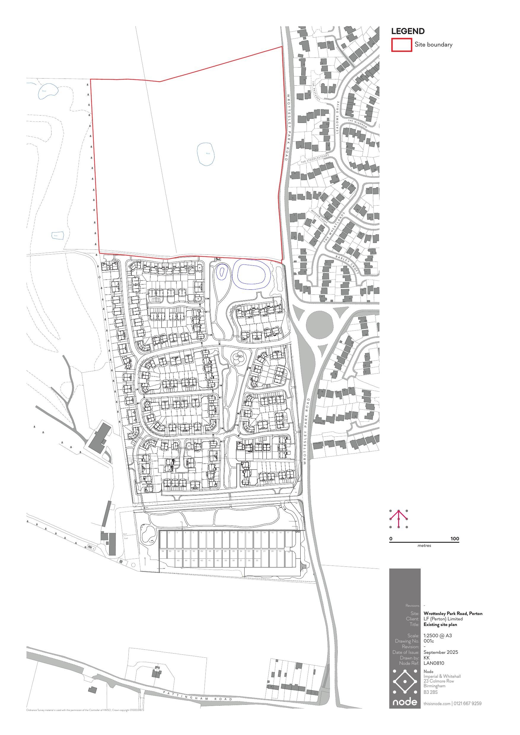
Location Plan
Location Plan
PERTON TRAFFIC DISTRIBUTION
Documents
PLANNING STATEMENT
Planning Statement
PRELIMINARY RISK ASSESSMENT
Land Contamination Assessment
SITE INVESTIGATION REPORT
Land Contamination Assessment
STATEMENT OF CONSULTATION
Statement of Community Involvement
SUPERSEDED
Biodiversity Survey
SUSTAINABLE DRAINAGE REPORT
Flood Risk Assessment
TRANSPORT ASSESSMENT
Transport Assessment
TREE SURVEY AND ARBORICULTURAL IMPACT ASSESSMENT
Tree Survey
Take Action
Make your voice heard. Authorities need to hear from people who support new homes.