← Back to Southwark

Status

Awaiting decision
Received
03 Dec 2024
New dwellings
n/a

Summary

Change of part ground, first and second floors from Class E to one 3/4-bedroom maisonette, with external works.

Full Proposal

Change of use of part of the ground floor, the first and second floors from Class E (Business) to C3 (Residential) to create 1 x 3/4-bedroom maisonettee external alterations including installation of a new shop front to ground floor shop, replacement of the existing windows and doors with new double glazed timber sash windows and doors , replacement of ground floor side elevation door with a timber door, reconstruction of rear wall, reinstatement of first floor front terrace and refurbishment of rear servicing area including new timber doors/gates.

Documents

40 NUNHEAD GREEN - PROPOSED SECOND FLOOR PLAN
Plan - Superseded
Not archived · Council Link
40 NUNHEAD GREEN SE15
Document
Not archived · Council Link
40 NUNHEAD GREEN, SE15 3QF -CYCLE
Plan - Proposed
Not archived · Council Link
40 NUNHEAD GREEN, SE15 3QF -CYCLE
Plan - Amended
Not archived · Council Link
40 NUNHEAD GREEN, SE15 3QF -REF
Plan - Amended
Not archived · Council Link
40 NUNHEAD GREEN, SE15 3QF -REFUSE
Plan - Proposed
Not archived · Council Link
40 NUNHEAD GREEN, SE15 3QF FIRST FLOOR PLAN REV3
Plan - Superseded
Not archived · Council Link
40 NUNHEAD GREEN, SE15 3QF FIRST FLOOR PLAN REV3
Plan - Superseded
Not archived · Council Link
40 NUNHEAD GREEN, SE15 3QF FIRST FLOOR PLAN REV4
Plan - Amended
Not archived · Council Link
40 NUNHEAD GREEN, SE15 3QF SECOND FLOOR PLAN REV3
Plan - Superseded
Not archived · Council Link
40 NUNHEAD GREEN, SE15 3QF SECOND FLOOR PLAN REV4
Plan - Superseded
Not archived · Council Link
40 NUNHEAD GREEN, SE15 3QFSECOND FLOOR PLAN REV 5
Plan - Amended
Not archived · Council Link
APPLICATION FORM - WITHOUT PERSONAL DATA
Application - Form (Without Personal data)
Not archived · Council Link
BIODIVERSITY STATEMENT
Biodiversity BNG Metrics
Not archived · Council Link
DESIGN AND ACCESS STATEMENT
Design and Access statement
Not archived · Council Link
EXECUTIVE SUMMARY
Viability report
Not archived · Council Link
EXISTING BASEMENT FLOOR PLAN
Plan - Existing
Not archived · Council Link
EXISTING FIRST FLOOR PLAN
Plan - Existing
Not archived · Council Link
EXISTING FRONT ELEVATION
Plan - Existing
Not archived · Council Link
EXISTING GROUND FLOOR PLAN
Plan - Existing
Not archived · Council Link
EXISTING REAR ELEVATION
Plan - Existing
Not archived · Council Link
EXISTING ROOF PLAN
Plan - Existing
Not archived · Council Link
EXISTING SECOND FLOOR PLAN
Plan - Existing
Not archived · Council Link
EXISTING SECTION
Plan - Existing
Not archived · Council Link
EXISTING SECTION 2
Plan - Existing
Not archived · Council Link
EXISTING SIDE ELEVATION
Plan - Existing
Not archived · Council Link
Plan - Existing
Archived · Council Link
FILE COPY - NEIGHBOUR NOTIFICATION+LIST
Neighbour Notification List
Not archived · Council Link
FINANCIAL VIABILITY APPRAISAL
Viability report
Not archived · Council Link
FINANCIAL VIABILITY ASSESSMENT
Viability report
Not archived · Council Link
FIRE STATEMENT
Fire Statement
Not archived · Council Link
LOCATION PLAN
Site - Location plan
Not archived · Council Link
NUNHEAD GREEN (40) SE22, STRETTONS FVR AUGUST 2025-COMBINED
Document
Not archived · Council Link
PARKING PROVISION - DETAILS
Parking Provision
Not archived · Council Link
PHOTOS
Photographs and photomontages
Not archived · Council Link
PRESS NOTICE - 19/06/2025
Press Notice
Not archived · Council Link
PROPOSED BASEMENT PLAN
Plan - Proposed
Not archived · Council Link
PROPOSED FIRST FLOOR PLAN
Plan - Superseded
Not archived · Council Link
PROPOSED FRONT ELEVATION
Plan - Proposed
Not archived · Council Link
PROPOSED GROUND FLOOR PLAN
Plan - Proposed
Not archived · Council Link
PROPOSED REAR ELEVATION
Plan - Proposed
Not archived · Council Link
PROPOSED ROOF PLAN
Plan - Proposed
Not archived · Council Link
PROPOSED SECOND FLOOR PLAN
Plan - Superseded
Not archived · Council Link
PROPOSED SECTIONS
Plan - Proposed
Not archived · Council Link
PROPOSED SIDE ELEVATION
Plan - Proposed
Not archived · Council Link
PROPOSED SIDE ELEVATIONS
Plan - Proposed
Not archived · Council Link
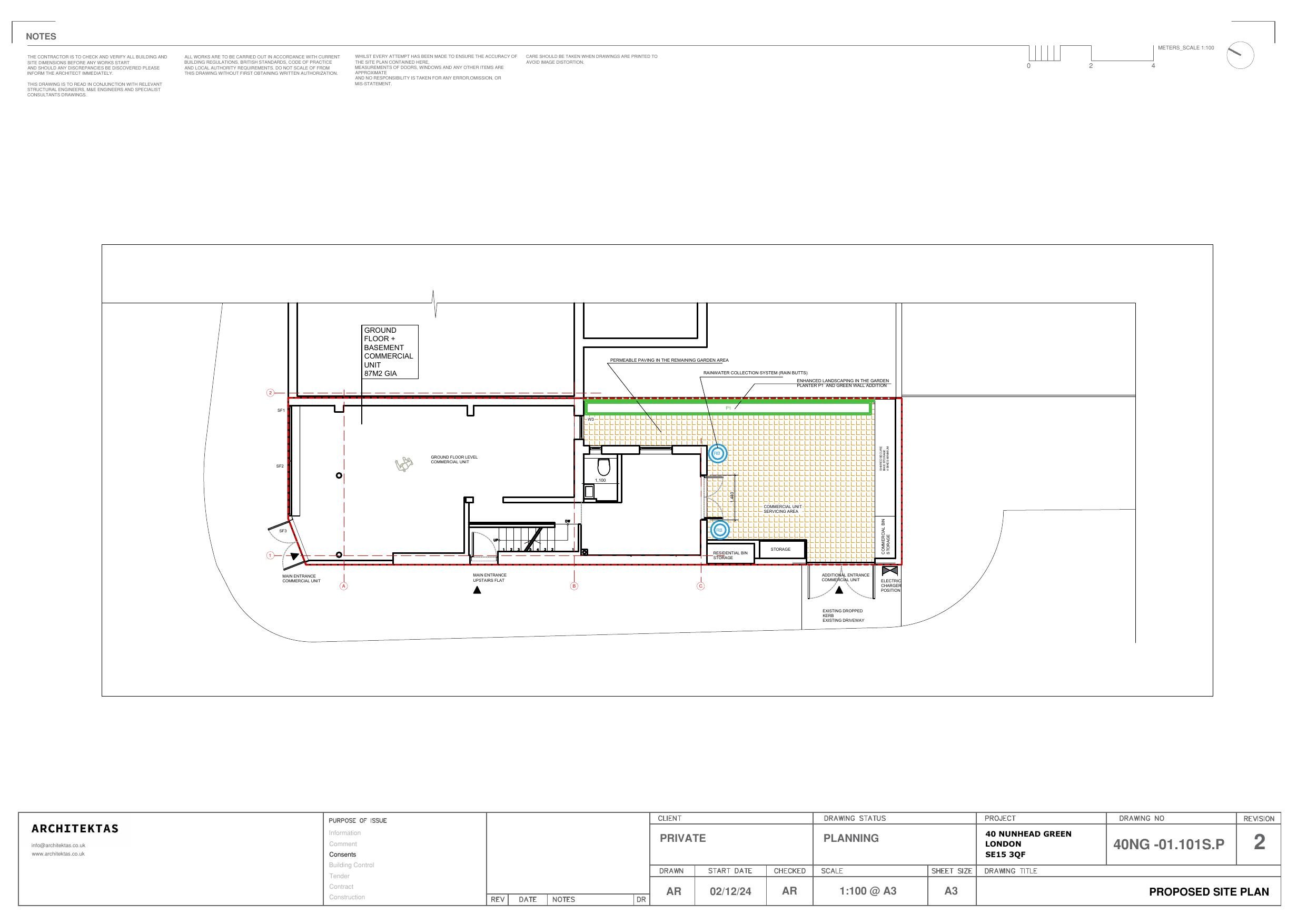
Plan - Proposed
Archived · Council Link
SITE NOTICE
Site notice
Not archived · Council Link
TIME EXTENSION LETTER
Time Extension - Request
Not archived · Council Link
TIME EXTENSION LETTER
Time Extension - Request
Not archived · Council Link
VALID APPLICATION LETTER WITH INVOICE
Valid Application Letter
Not archived · Council Link

Take Action

Make your voice heard. Authorities need to hear from people who support new homes.

✉️ Write Email in Support View on Council Portal