← Back to Southwark

Status

Under consideration/assessment
Received
22 Jul 2025
New dwellings
n/a

Full Proposal

Demolition of the existing rear garage. Construction of a two-storey one-bedroom dwellinghouse with associated amenity space, landscaping and ground level changes. Alterations to the existing commercial unit, shopfront and access arrangements. Construction of front and rear window dormers at roof level of the host property. Construction of a full-length rear outrigger dormer at first floor level of the host property. Provision of a waste/cycle storage structure within the front curtilage of the host property.

Documents

APPLICATION FORM - WITHOUT PERSONAL DATA
Application - Form (Without Personal data)
Not archived · Council Link
CIL
Comment - Consultee
Not archived · Council Link
COMMUNITY INFRASTRUCTURE LEVY - COMPLETED FORM
CIL - GIA Form
Not archived · Council Link
DAYLIGHT OR SUNLIGHT ASSESSMENT
Daylight/Sunlight assessment
Not archived · Council Link
DESIGN AND ACCESS STATEMENT
Design and Access statement
Not archived · Council Link
EXISTING BASEMENT PLAN
Plan - Existing
Not archived · Council Link
EXISTING FIRST FLOOR PLAN
Plan - Existing
Not archived · Council Link
EXISTING GROUND FLOOR PLAN
Plan - Existing
Not archived · Council Link
EXISTING NORTH EAST ELEVATION C
Plan - Existing
Not archived · Council Link
EXISTING NORTH EAST ELEVATION D
Plan - Existing
Not archived · Council Link
EXISTING NORTH WEST ELEVATION A
Plan - Existing
Not archived · Council Link
EXISTING NORTH WEST ELEVATION G
Plan - Existing
Not archived · Council Link
EXISTING SECOND FLOOR PLAN
Plan - Existing
Not archived · Council Link
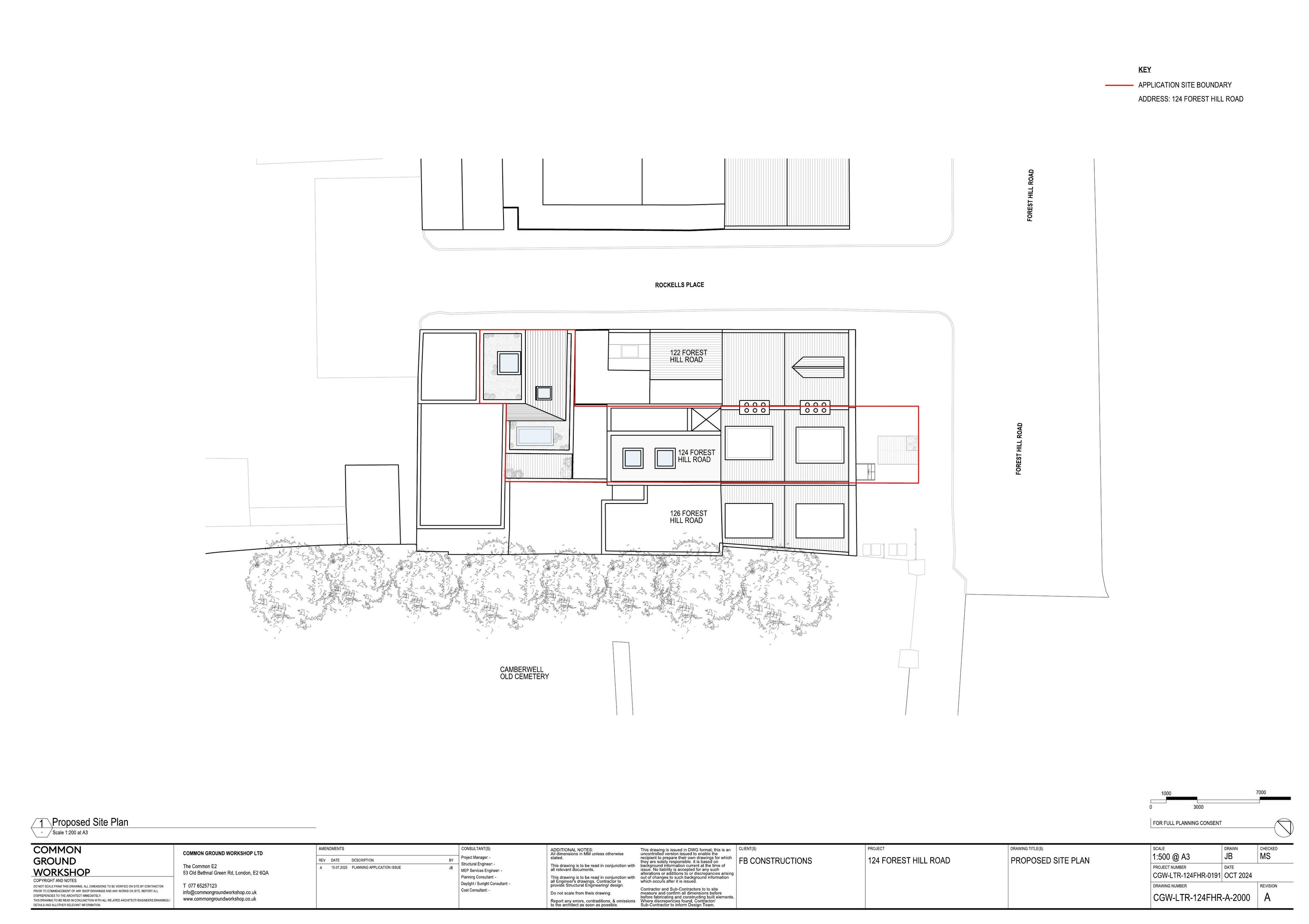
Site - Block plan
Archived · Council Link
EXISTING SOUTH EAST ELEVATION B
Plan - Existing
Not archived · Council Link
EXISTING SOUTH EAST ELEVATION F
Plan - Existing
Not archived · Council Link
EXISTING SOUTH WEST ELEVATION E
Plan - Existing
Not archived · Council Link
FILE COPY - NEIGHBOUR NOTIFICATION+LIST
Neighbour Notification List
Not archived · Council Link
FINANCIAL VIABILITY ASSESSMENT
Viability report
Not archived · Council Link
FIRE SAFETY STRATEGY PLAN
Fire Statement
Not archived · Council Link
LOCATION PLAN
Site - Location plan
Not archived · Council Link
PROPOSED BASEMENT PLAN
Plan - Proposed
Not archived · Council Link
PROPOSED FIRST FLOOR PLAN
Plan - Proposed
Not archived · Council Link
PROPOSED FIRST FLOOR PLAN - NEW BUILD
Plan - Proposed
Not archived · Council Link
PROPOSED GROUND FLOOR PLAN
Plan - Proposed
Not archived · Council Link
PROPOSED GROUND FLOOR PLAN - NEW BUILD
Plan - Proposed
Not archived · Council Link
PROPOSED NORTH EAST ELEVATION C
Plan - Proposed
Not archived · Council Link
PROPOSED NORTH EAST ELEVATION D
Plan - Proposed
Not archived · Council Link
PROPOSED NORTH WEST ELEVATION A
Plan - Proposed
Not archived · Council Link
PROPOSED NORTH WEST ELEVATION G
Plan - Proposed
Not archived · Council Link
PROPOSED ROOF PLAN
Plan - Proposed
Not archived · Council Link
PROPOSED ROOF PLAN - NEW BUILD
Plan - Proposed
Not archived · Council Link
PROPOSED SECOND FLOOR PLAN
Plan - Proposed
Not archived · Council Link
PROPOSED SECTION A-A
Plan - Proposed
Not archived · Council Link
Site - Block plan
Archived · Council Link
PROPOSED SOUTH EAST ELEVATION B
Plan - Proposed
Not archived · Council Link
PROPOSED SOUTH EAST ELEVATION F
Plan - Proposed
Not archived · Council Link
PROPOSED SOUTH WEST ELEVATION
Plan - Proposed
Not archived · Council Link
ROOF PLAN - EXISTING
Plan - Existing
Not archived · Council Link
SITE NOTICE
Site notice
Not archived · Council Link
VALID APPLICATION LETTER WITH INVOICE
Valid Application Letter
Not archived · Council Link

Take Action

Make your voice heard. Authorities need to hear from people who support new homes.

✉️ Write Email in Support View on Council Portal