← Back to Southwark

Status

Under consideration/assessment
Received
11 Nov 2025
New dwellings
n/a

Full Proposal

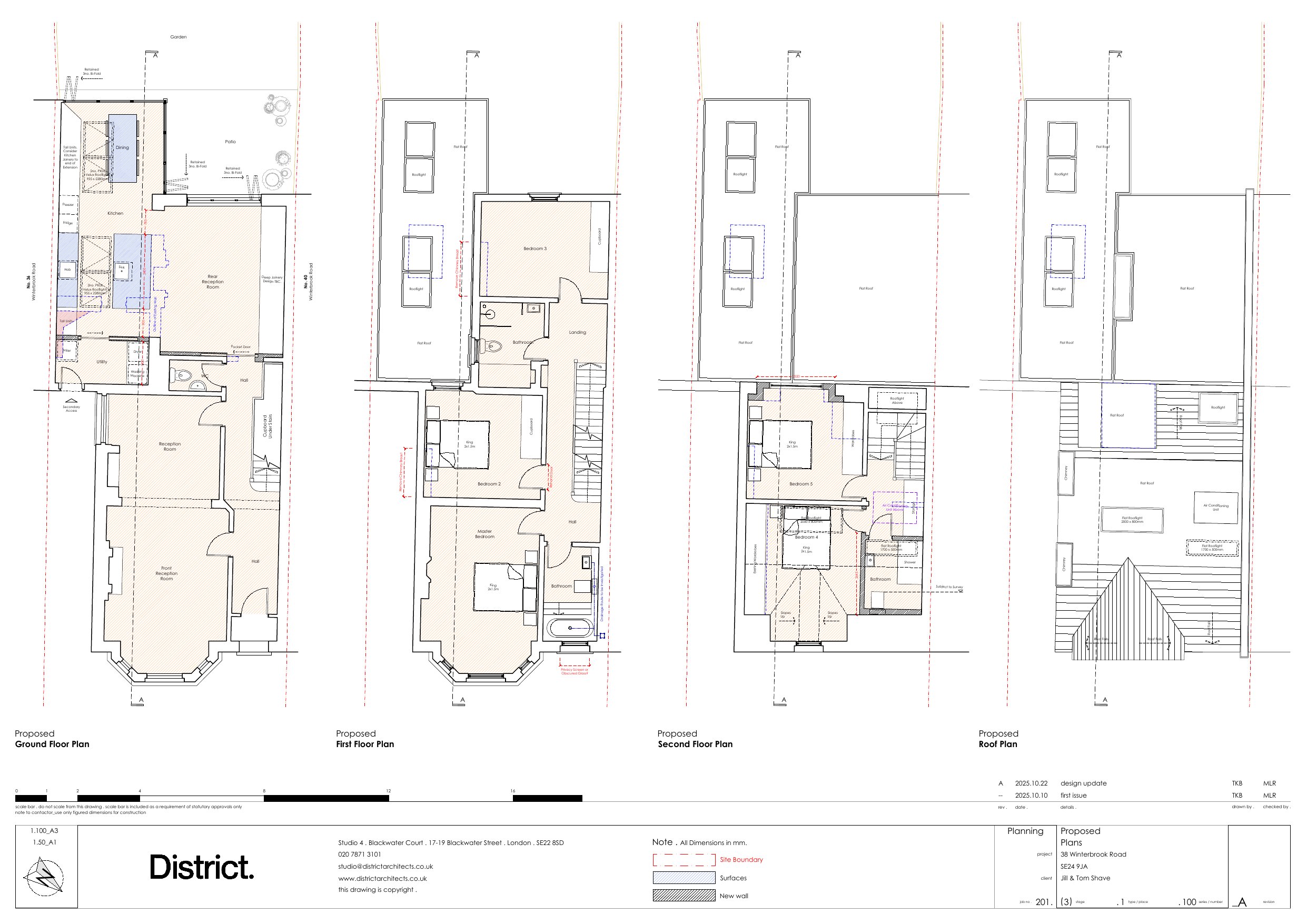
Alterations to the existing roof dormer and existing ground floor rear extension. Addition of 2 new rooflights and an air conditioning unit to the flat roof. The removal of the interior wall that separates the kitchen and rear reception room. The final alteration to the ground floor extension is to position rooflights within the existing side-infill extension. The other aspect of the proposal alters the existing roof dormer by rebuilding this small dormer. Replace the existing window with two timber framed sash windows that better match the rest of the existing building.

Documents

APPLICATION FORM - WITHOUT PERSONAL DATA
Application - Form (Without Personal data)
Not archived · Council Link
CIL - GIA Form
CIL - GIA Form
Not archived · Council Link
DESIGN, ACCESS & HERITAGE STATEMENT
Design and Access statement
Not archived · Council Link
EXISTING BLOCK PLAN
Site - Block plan
Not archived · Council Link
EXISTING ELEVATIONS
Plan - Existing
Not archived · Council Link
EXISTING PLANS
Plan - Existing
Not archived · Council Link
EXISTING SECTION
Plan - Existing
Not archived · Council Link
EXISTING SIDE ELEVATION
Plan - Existing
Not archived · Council Link
Site - Location plan
Archived · Council Link
Fire Statement
Fire Statement
Not archived · Council Link
MATERIAL PALETTE
Document
Not archived · Council Link
Noise impact assessment
Noise impact assessment
Not archived · Council Link
PARKING STATEMENT
Parking Provision
Not archived · Council Link
Photographs and photomontages
Photographs and photomontages
Not archived · Council Link
PROPOSED ELEVATIONS
Plan - Proposed
Not archived · Council Link
PROPOSED FIRST FLOOR PLAN . FIRE STRATEGY
Plan - Proposed
Not archived · Council Link
PROPOSED GROUND FLOOR PLAN . FIRE STRATEGY
Plan - Proposed
Not archived · Council Link
Plan - Proposed
Archived · Council Link
PROPOSED SECOND FLOOR PLAN . FIRE STRATEGY
Plan - Proposed
Not archived · Council Link
PROPOSED SECTION
Plan - Proposed
Not archived · Council Link
PROPOSED SIDE ELEVATION
Plan - Proposed
Not archived · Council Link
TREE STATEMENT
Tree survey or Arboricultural implications
Not archived · Council Link

Take Action

Make your voice heard. Authorities need to hear from people who support new homes.

✉️ Write Email in Support View on Council Portal