← Back to Southwark

Status

Under consideration/assessment
Received
19 Nov 2025
New dwellings
n/a

Full Proposal

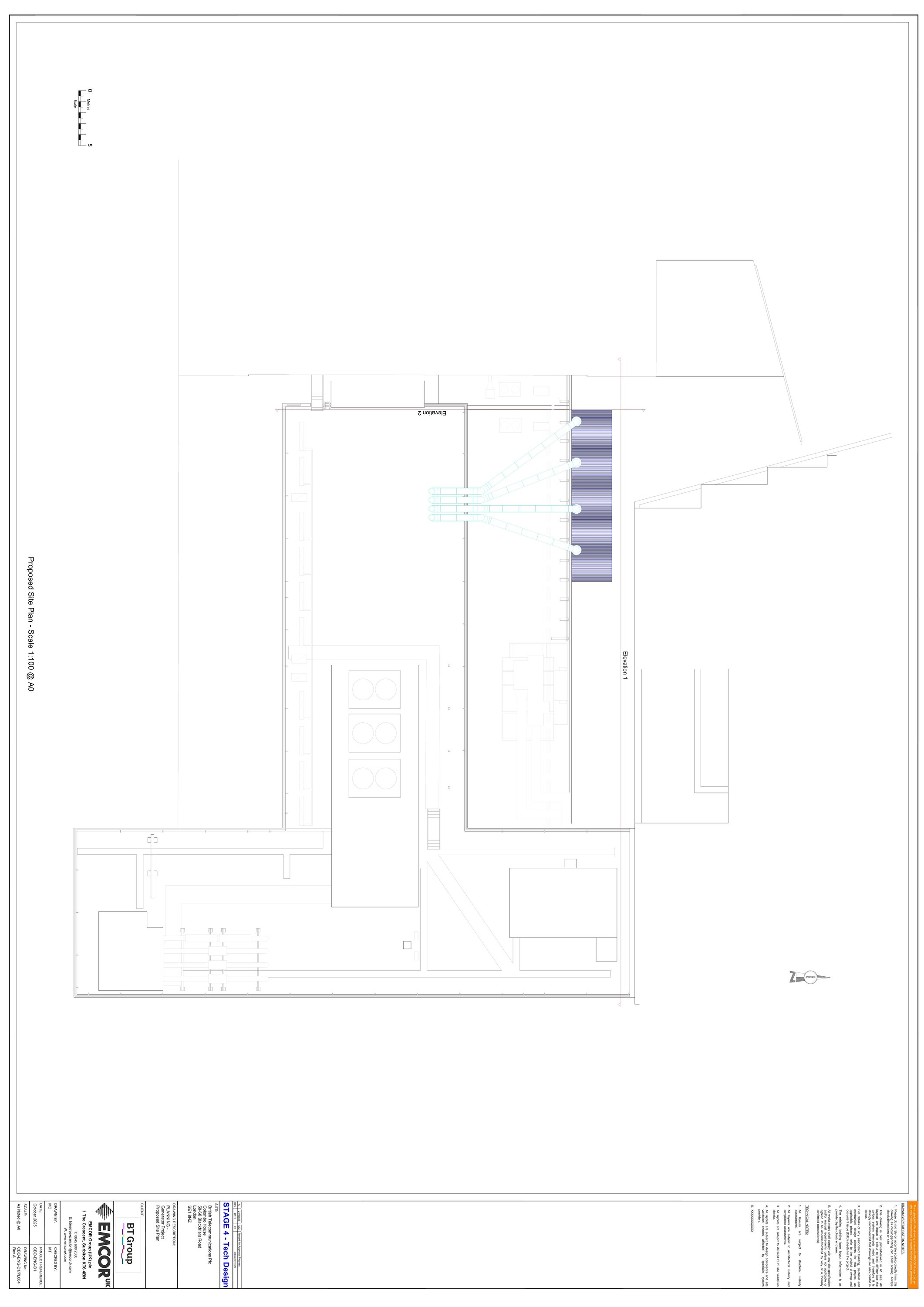
Installation of 5no. exhaust flues to the elevations of Colombo House

Documents

APPLICATION FORM - WITHOUT PERSONAL DATA
Application - Form (Without Personal data)
Not archived · Council Link
COMMUNITY INFRASTRUCTURE LEVY - COMPLETED FORM
CIL - GIA Form
Not archived · Council Link
EXISTING ELEVATION (FRONT)
Plan - Existing
Not archived · Council Link
EXISTING ELEVATION 1 (FRONT)
Plan - Existing
Not archived · Council Link
EXISTING SITE/BLOCK PLAN
Site - Block plan
Not archived · Council Link
NOISE IMPACT ASSESSMENT
Noise impact assessment
Not archived · Council Link
PLANNING STATEMENT
Planning statement
Not archived · Council Link
PROPOSED ELEVATION 1 -
Plan - Proposed
Not archived · Council Link
PROPOSED ELEVATION 2
Plan - Proposed
Not archived · Council Link
Site - Location plan
Archived · Council Link
REASONABLE EXCEPTION STATEMENT
Fire Statement
Not archived · Council Link
Site - Location plan
Archived · Council Link
SITE NOTICE
Site notice
Not archived · Council Link
SITE NOTICE
Site notice
Not archived · Council Link
TIME EXTENSION LETTER
Time Extension - Request
Not archived · Council Link
VALID APPLICATION LETTER WITH INVOICE
Valid Application Letter
Not archived · Council Link

Take Action

Make your voice heard. Authorities need to hear from people who support new homes.

✉️ Write Email in Support View on Council Portal