← Back to Southwark

Status

Under consideration/assessment
Received
19 Dec 2025
New dwellings
n/a

Summary

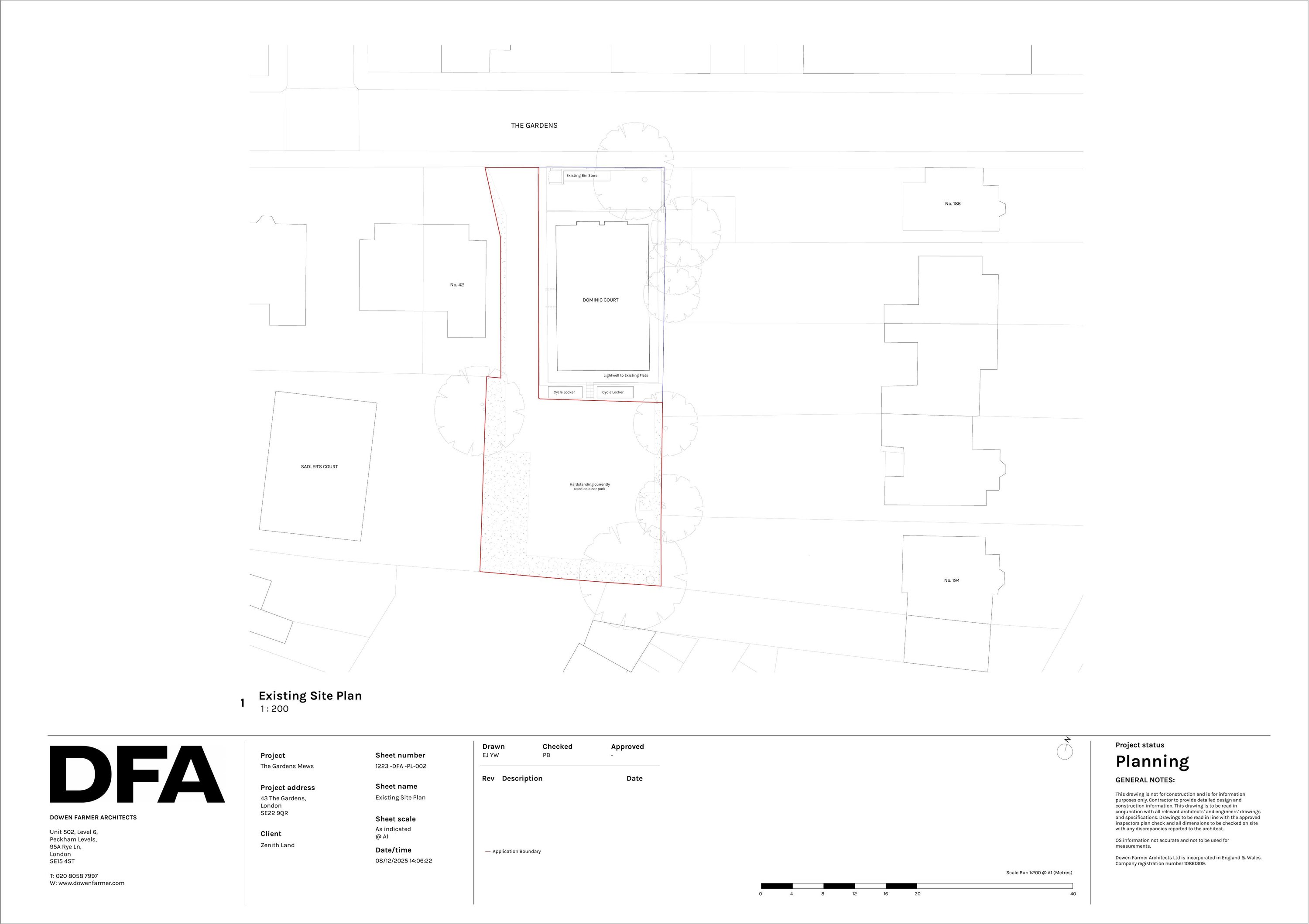
Erection of three 3-bedroom, five-person dwellings with gardens, cycle/refuse storage and landscaping.

Full Proposal

Erection of 3 no. 3B5P dwellings (Use Class C3) to the rear of the site, together with associated gardens, cycle storage, refuse storage, and landscaping

Documents

APPENDICES TO VIABILITY STATEMENT
Viability report
Not archived · Council Link
APPLICATION FORM - WITHOUT PERSONAL DATA
Application - Form (Without Personal data)
Not archived · Council Link
ARBORICULTURAL IMPACT ASSESSMENT.
Tree survey or Arboricultural implications
Not archived · Council Link
BIODIVERSITY NET GAIN ASSESSMENT
Biodiversity BNG Metrics
Not archived · Council Link
BOUNDARY TREATMENT PLAN
Landscaping details
Not archived · Council Link
BUDGET COST PLAN
Document
Not archived · Council Link
COMMUNITY INFRASTRUCTURE LEVY - COMPLETED FORM
CIL - GIA Form
Not archived · Council Link
COVERING LETTER
Application - Covering letter
Not archived · Council Link
DAYLIGHT AND SUNLIGHT ASSESSMENTS
Daylight/Sunlight assessment
Not archived · Council Link
DESIGN AND ACCESS STATEMENT - PART 1
Design and Access statement
Not archived · Council Link
DESIGN AND ACCESS STATEMENT - PART 2
Design and Access statement
Not archived · Council Link
DESIGN AND ACCESS STATEMENT - PART 3
Design and Access statement
Not archived · Council Link
DESIGN AND ACCESS STATEMENT - PART 4
Design and Access statement
Not archived · Council Link
ENERGY STATEMENT
Energy statement
Not archived · Council Link
EXISTING SITE ELEVATIONS
Plan - Existing
Not archived · Council Link
Site - Block plan
Archived · Council Link
FILE COPY - NEIGHBOUR NOTIFICATION+LIST
Neighbour Notification List
Not archived · Council Link
FIRE STATEMENT
Fire Statement
Not archived · Council Link
PLANNING AND HERITAGE STATEMENT (INCLUDING AFFORDABLE HOUSING STATEMENT)
Affordable housing statement
Not archived · Council Link
PLANTING TYPOLOGIES PLAN
Landscaping details
Not archived · Council Link
PRELIMINARY CONTAMINATION RISK ASSESSMENT - PART 1
Ground investigation report
Not archived · Council Link
PRELIMINARY CONTAMINATION RISK ASSESSMENT - PART 2
Ground investigation report
Not archived · Council Link
PRELIMINARY CONTAMINATION RISK ASSESSMENT - PART 3
Ground investigation report
Not archived · Council Link
PRELIMINARY CONTAMINATION RISK ASSESSMENT - PART 4
Ground investigation report
Not archived · Council Link
PRELIMINARY CONTAMINATION RISK ASSESSMENT - PART 5
Ground investigation report
Not archived · Council Link
PRELIMINARY CONTAMINATION RISK ASSESSMENT - PART 6
Ground investigation report
Not archived · Council Link
PRELIMINARY CONTAMINATION RISK ASSESSMENT - PART 7
Ground investigation report
Not archived · Council Link
PRELIMINARY ECOLOGICAL APPRAISAL
Biodiversity survey / ecology assessment
Not archived · Council Link
PRESS NOTICE - 22/01/2026
Press Notice
Not archived · Council Link
PROPOSED CYCLE STORE
Plan - Proposed
Not archived · Council Link
PROPOSED EAST & WEST ELEVATIONS
Plan - Proposed
Not archived · Council Link
PROPOSED FIRE PLAN
Plan - Proposed
Not archived · Council Link
PROPOSED FIRST FLOOR PLAN
Plan - Proposed
Not archived · Council Link
PROPOSED GROUND FLOOR PLAN
Plan - Proposed
Not archived · Council Link
PROPOSED LANDSCAPE PLAN
Landscaping details
Not archived · Council Link
PROPOSED NORTH & SOUTH ELEVATIONS
Plan - Proposed
Not archived · Council Link
PROPOSED REFUSE STORE
Plan - Proposed
Not archived · Council Link
PROPOSED ROOF PLAN
Plan - Proposed
Not archived · Council Link
PROPOSED SECOND FLOOR PLAN
Plan - Proposed
Not archived · Council Link
PROPOSED SECTION A-A
Plan - Proposed
Not archived · Council Link
PROPOSED SECTION B-B
Plan - Proposed
Not archived · Council Link
PROPOSED SITE ELEVATIONS
Plan - Proposed
Not archived · Council Link
Site - Block plan
Archived · Council Link
Site - Location plan
Archived · Council Link
THE STATUTORY BIODIVERSITY METRICS
Biodiversity BNG Metrics
Not archived · Council Link
TRANSPORT STATEMENT
Transport assessment
Not archived · Council Link
VALID APPLICATION LETTER WITH INVOICE
Valid Application Letter
Not archived · Council Link
VIABILITY STATEMENT
Viability report
Not archived · Council Link

Take Action

Make your voice heard. Authorities need to hear from people who support new homes.

✉️ Write Email in Support View on Council Portal