← Back to Southwark

Status

Under consideration/assessment
Received
26 days ago
New dwellings
n/a

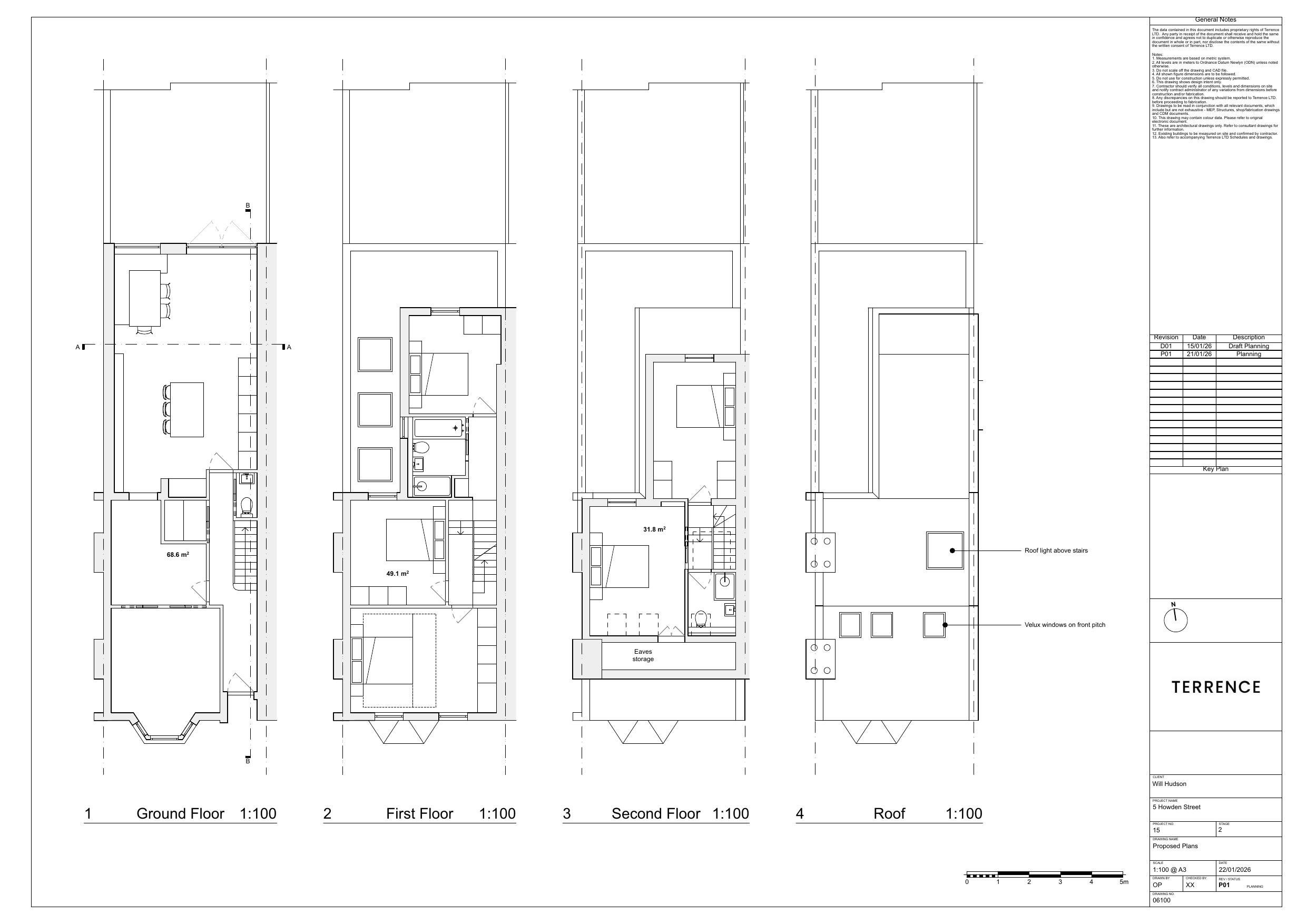
Full Proposal

Construction of a single-storey L-shaped wraparound extension to the side and rear, and a loft conversion involving a rear dormer extension and three front rooflights, with external materials to match the existing dwelling.

Documents

APPLICATION FORM - WITHOUT PERSONAL DATA
Application - Form (Without Personal data)
Not archived · Council Link
COMMUNITY INFRASTRUCTURE LEVY - COMPLETED FORM
CIL - GIA Form
Not archived · Council Link
EXISTING FLOOR PLAN
Plan - Existing
Not archived · Council Link
EXISTING SECTIONS AND ELEVATIONS
Plan - Existing
Not archived · Council Link
FILE COPY - NEIGHBOUR NOTIFICATION+LIST
Neighbour Notification List
Not archived · Council Link
PARKING PROVISION - DETAILS
Parking Provision
Not archived · Council Link
PHOTOGRAPHS
Photographs and photomontages
Not archived · Council Link
PLANNING FIRE STATEMENT
Fire Statement
Not archived · Council Link
Plan - Proposed
Archived · Council Link
PROPOSED SECTIONS AND ELEVATIONS
Plan - Proposed
Not archived · Council Link
Site - Location plan
Archived · Council Link
VALID APPLICATION LETTER WITH INVOICE
Valid Application Letter
Not archived · Council Link

Take Action

Make your voice heard. Authorities need to hear from people who support new homes.

✉️ Write Email in Support View on Council Portal