← Back to Spelthorne Borough Council

Status

Awaiting decision
Received
19 Jun 2025
New dwellings
n/a

Summary

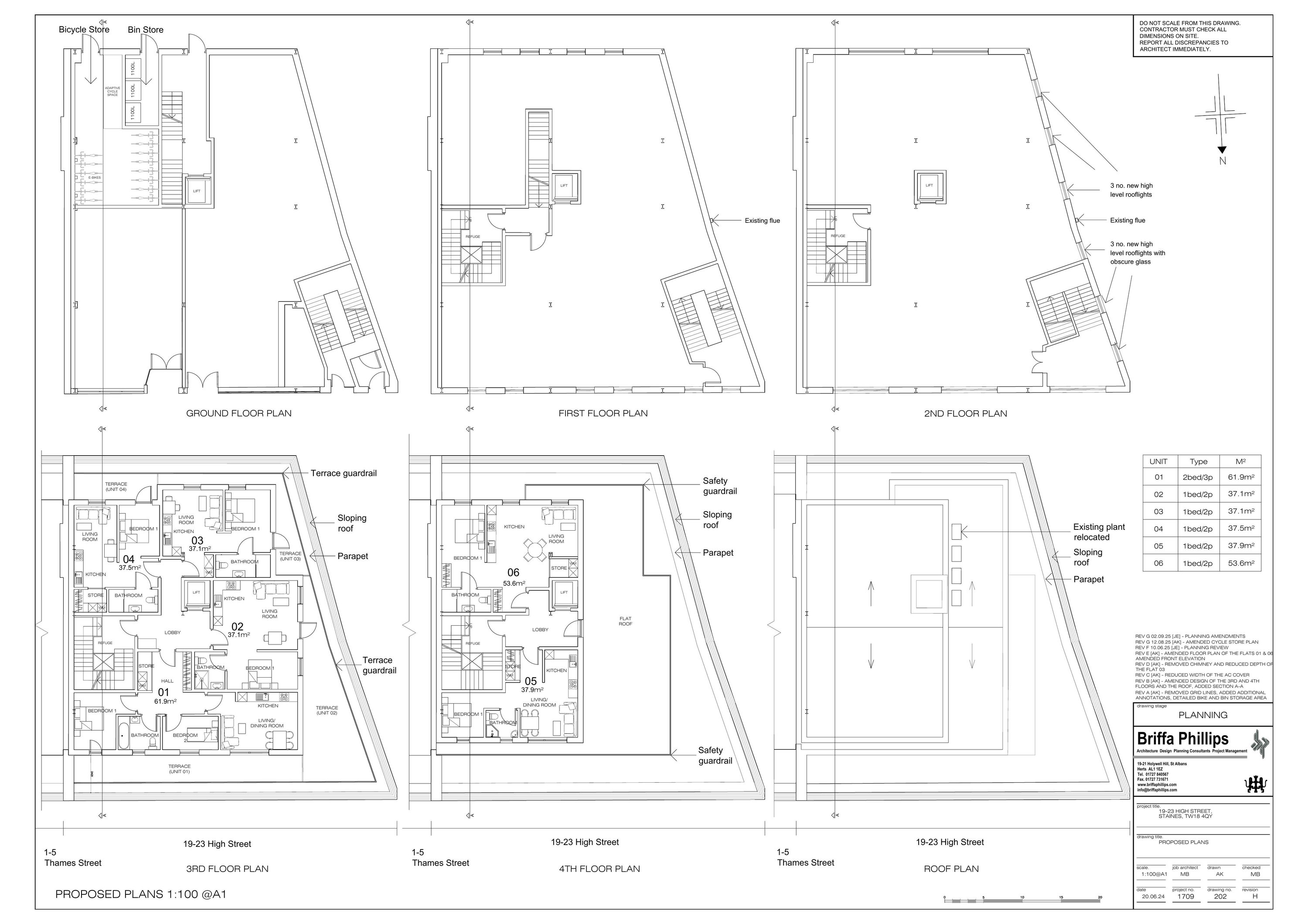
Upward two-floor extension to existing building to provide six flats with terraces and flank windows.

Full Proposal

Upward extension of two floors to provide 6 flats including terracing and 6 flank windows in the existing building.

Documents

1709 - APPENDIX A - HERITAGE STATEMENT
Heritage Statement
Not archived · Council Link
ACKFUL ACK LETTER FOR FULL
Correspondence
Not archived · Council Link
ACOUSTIC ASSESSMENT
Other Documents
Not archived · Council Link
APPLICATIONFORMREDACTED
Application Form
Not archived · Council Link
CIL ADDITIONAL INFORMATION REQUIREMENTS FORM
CIL - Additional Information
Not archived · Council Link
CIL SELF BUILD EXEMPTION FORM
CIL - Exemption Form
Not archived · Council Link
CLIMATE CHANGE CHECKLIST
Other Documents
Not archived · Council Link
DESIGN AND ACCESS STATEMENT
Design and Access Statement
Not archived · Council Link
EXISITNG FLOORPLANS, ELEVATIONS AND ROOF
Plans - Combined
Not archived · Council Link
FEECALCULATION
Other Documents
Not archived · Council Link
FIRE STATEMENT
Flood Risk Assessment
Not archived · Council Link
LETTERS OF REPRESENTATION
Letters of Representation
Not archived · Council Link
LOCATION PLAN
Plans - Location Plan
Not archived · Council Link
PROPOSED ELEVATIONS
Plans Combined - SUPERSEDED
Not archived · Council Link
PROPOSED ELEVATIONS PLAN
Plans - Elevations
Not archived · Council Link
Plans - Floor Plans
Archived · Council Link
Plans Combined - SUPERSEDED
Archived · Council Link
STANDARD CONSULTATION LETTER
Consultation
Not archived · Council Link
STANDARD CONSULTATION LETTER
Consultation
Not archived · Council Link
STANDARD CONSULTATION LETTER
Consultation
Not archived · Council Link
STANDARD CONSULTATION LETTER
Consultation
Not archived · Council Link
STANDARD CONSULTATION LETTER
Consultation
Not archived · Council Link
STANDARD CONSULTATION LETTER
Consultation
Not archived · Council Link

Take Action

Make your voice heard. Authorities need to hear from people who support new homes.

✉️ Write Email in Support View on Council Portal