← Back to Spelthorne Borough Council

Status

Awaiting decision
Received
12 Nov 2025
New dwellings
n/a

Full Proposal

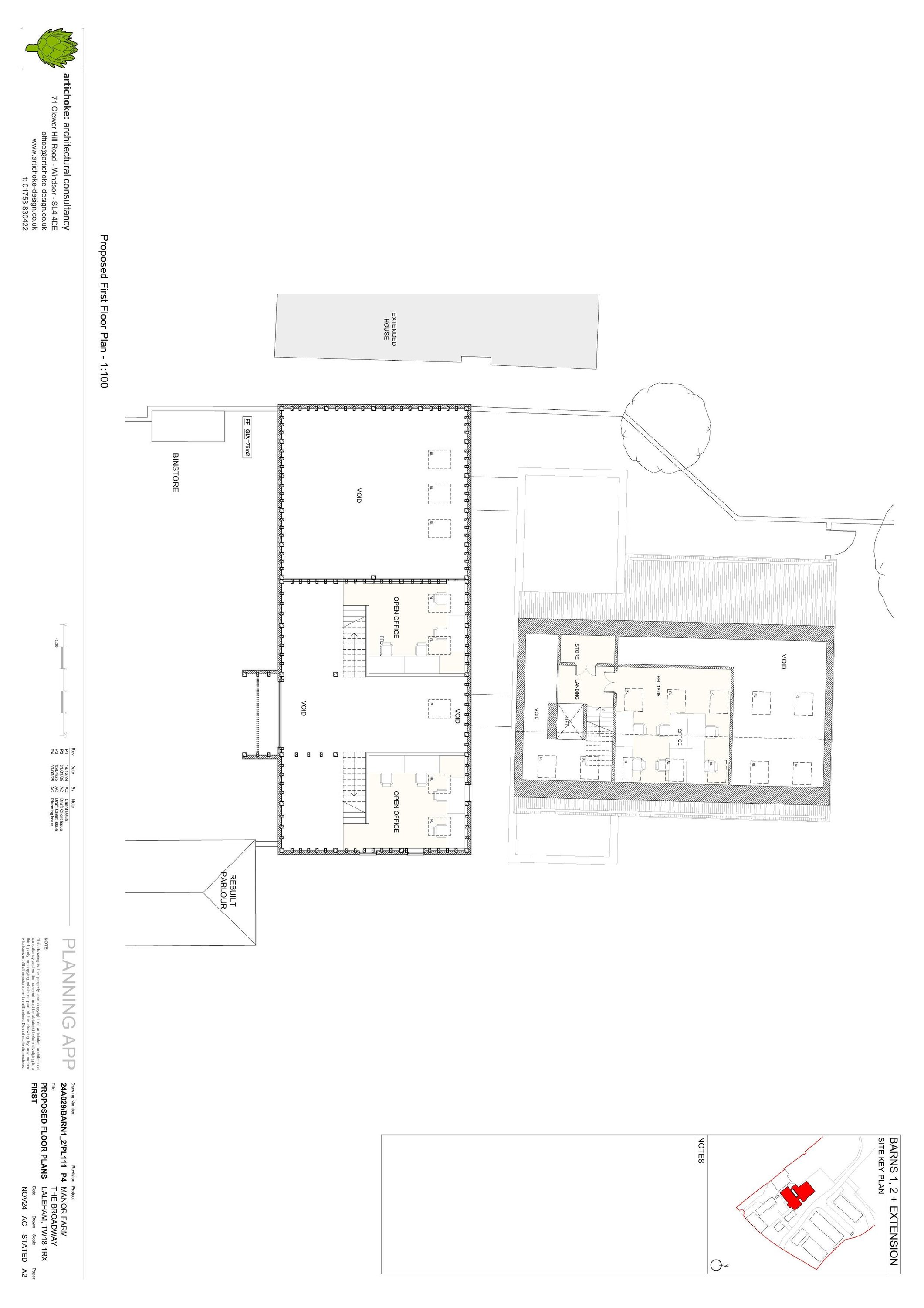
Demolition of existing commercial buildings on site and development of new commercial buildings with access, parking and landscaping. Restoration of existing listed buildings for commercial use. Restoration and extension to existing listed farmhouse and use as single family dwelling with separate access from The Broadway.

Documents

2005 HERITAGE STATEMENT PLANNING
Heritage Statement
Not archived · Council Link
24A029_DAS_V1_251020
Design and Access Statement
Not archived · Council Link
ACKFUL ACK LETTER FOR FULL
Correspondence
Not archived · Council Link
AIR QUALITY ASSESSMENT
Air Quality Assessment
Not archived · Council Link
APPLICATIONFORMREDACTED
Application Form
Not archived · Council Link
ARBORICULTURAL PHOTOLOG
Tree Survey
Not archived · Council Link
ARBORICULTURAL REPORT TPP 01 - MANOR FRAM LALEHAM
Tree Survey
Not archived · Council Link
ARCHAEOLOGICAL ASSESSMENT
Archaeological Assessment
Not archived · Council Link
BLOCK
Plans - Block Plan
Not archived · Council Link
CIL FORM 1
CIL - Form
Not archived · Council Link
CONTAMINATE LAND ASSESSMENT
Contaminated Land Assessment
Not archived · Council Link
ECOLOGICAL STATEMENT
Ecological statement
Not archived · Council Link
ENVIRONMENT AGENCY COMMENTS
Statutory Consultee Response
Not archived · Council Link
EXISTING AND PROPOSED STREET ELEVATIONS
Plans - Elevations
Not archived · Council Link
EXISTING ELEVATIONS
Plans - Elevations
Not archived · Council Link
EXISTING ELEVATIONS
Plans - Elevations
Not archived · Council Link
EXISTING ELEVATIONS
Plans - Elevations
Not archived · Council Link
EXISTING ELEVATIONS
Plans - Elevations
Not archived · Council Link
EXISTING ELEVATIONS
Plans - Elevations
Not archived · Council Link
EXISTING ELEVATIONS
Plans - Elevations
Not archived · Council Link
EXISTING ELEVATIONS
Plans - Elevations
Not archived · Council Link
EXISTING ELEVATIONS
Plans - Elevations
Not archived · Council Link
EXISTING ELEVATIONS
Plans - Elevations
Not archived · Council Link
EXISTING ELEVATIONS
Plans - Elevations
Not archived · Council Link
EXISTING ELEVATIONS
Plans - Elevations
Not archived · Council Link
EXISTING ELEVATIONS
Plans - Elevations
Not archived · Council Link
EXISTING FLOOR PLANS
Plans - Floor Plans
Not archived · Council Link
EXISTING GROUND FLOOR
Plans - Floor Plans
Not archived · Council Link
EXISTING GROUND FLOOR PLAN
Plans - Floor Plans
Not archived · Council Link
EXISTING GROUND FLOORPLAN
Plans - Floor Plans
Not archived · Council Link
EXISTING ROOF PLAN
Plans - Roof
Not archived · Council Link
EXISTING ROOF PLAN
Plans - Roof
Not archived · Council Link
EXISTING ROOF PLAN
Plans - Roof
Not archived · Council Link
EXISTING ROOF PLAN
Plans - Roof
Not archived · Council Link
EXISTING ROOF PLAN
Plans - Roof
Not archived · Council Link
EXISTING ROOF PLAN
Plans - Roof
Not archived · Council Link
EXISTING SECTIONS
Plans - Section
Not archived · Council Link
Fee
Fee
Not archived · Council Link
FLOOD RISK ASSESSMENT
Flood Risk Assessment
Not archived · Council Link
FOUL SEWAGE ASSESSMENT
Foul Sewage Assessment
Not archived · Council Link
LANDSCAPE
Plans - Other
Not archived · Council Link
LANDSCAPE
Plans - Other
Not archived · Council Link
LANDSCAPE
Plans - Other
Not archived · Council Link
LETTERS OF REPRESENTATION
Letters of Representation
Not archived · Council Link
LETTERS OF REPRESENTATION
Letters of Representation
Not archived · Council Link
LOCATION PLAN
Plans - Location Plan
Not archived · Council Link
LOCATION PLAN
Plans - Location Plan
Not archived · Council Link
LOCATION PLAN
Plans - Location Plan
Not archived · Council Link
MANOR FARM - PLANNING STATEMENT WITH APPENDIX
Planning Statement
Not archived · Council Link
PLANT SCHEDULE
Plans - Other
Not archived · Council Link
PROPOSED ELEVATION AND SECTION
Plans - Elevations
Not archived · Council Link
PROPOSED ELEVATIONS
Plans - Elevations
Not archived · Council Link
PROPOSED ELEVATIONS
Plans - Elevations
Not archived · Council Link
PROPOSED ELEVATIONS
Plans - Elevations
Not archived · Council Link
PROPOSED ELEVATIONS
Plans - Elevations
Not archived · Council Link
PROPOSED ELEVATIONS
Plans - Elevations
Not archived · Council Link
PROPOSED ELEVATIONS
Plans - Elevations
Not archived · Council Link
PROPOSED ELEVATIONS
Plans - Elevations
Not archived · Council Link
PROPOSED ELEVATIONS
Plans - Elevations
Not archived · Council Link
PROPOSED ELEVATIONS
Plans - Elevations
Not archived · Council Link
PROPOSED ELEVATIONS
Plans - Elevations
Not archived · Council Link
PROPOSED ELEVATIONS
Plans - Elevations
Not archived · Council Link
PROPOSED ELEVATIONS
Plans - Elevations
Not archived · Council Link
PROPOSED ELEVATIONS
Plans - Elevations
Not archived · Council Link
PROPOSED ELEVATIONS
Plans - Elevations
Not archived · Council Link
PROPOSED ELEVATIONS
Plans - Elevations
Not archived · Council Link
PROPOSED ELEVATIONS
Plans - Elevations
Not archived · Council Link
PROPOSED ELEVATIONS
Plans - Elevations
Not archived · Council Link
PROPOSED ELEVATIONS
Plans - Elevations
Not archived · Council Link
PROPOSED ELEVATIONS
Plans - Elevations
Not archived · Council Link
PROPOSED ELEVATIONS
Plans - Elevations
Not archived · Council Link
PROPOSED ELEVATIONS
Plans - Elevations
Not archived · Council Link
Plans - Floor Plans
Archived · Council Link
Plans - Floor Plans
Archived · Council Link
Plans - Floor Plans
Archived · Council Link
PROPOSED FLOORPLANS
Plans - Floor Plans
Not archived · Council Link
PROPOSED FRONT ELEVATION
Plans - Elevations
Not archived · Council Link
PROPOSED GROUND FLOOR
Plans - Floor Plans
Not archived · Council Link
PROPOSED GROUND FLOOR PLAN
Plans - Floor Plans
Not archived · Council Link
PROPOSED GROUND FLOOR PLAN
Plans - Floor Plans
Not archived · Council Link
PROPOSED GROUND FLOOR PLAN
Plans - Floor Plans
Not archived · Council Link
PROPOSED GROUND FLOOR PLAN
Plans - Floor Plans
Not archived · Council Link
PROPOSED GROUND FLOOR PLAN
Plans - Floor Plans
Not archived · Council Link
PROPOSED GROUND FLOOR PLANS
Plans - Floor Plans
Not archived · Council Link
PROPOSED GROUND FLOORPLAN
Plans - Floor Plans
Not archived · Council Link
PROPOSED GROUND FLOORPLAN
Plans - Floor Plans
Not archived · Council Link
PROPOSED REAR ELEVATIONS
Plans - Elevations
Not archived · Council Link
PROPOSED ROOF
Plans - Roof
Not archived · Council Link
PROPOSED ROOF PLAN
Plans - Roof
Not archived · Council Link
PROPOSED ROOF PLAN
Plans - Roof
Not archived · Council Link
PROPOSED ROOF PLAN
Plans - Roof
Not archived · Council Link
PROPOSED ROOF PLAN
Plans - Roof
Not archived · Council Link
PROPOSED ROOFPLAN
Plans - Roof
Not archived · Council Link
PROPOSED SECTION
Plans - Section
Not archived · Council Link
PROPOSED SECTION
Plans - Section
Not archived · Council Link
PROPOSED SECTION
Plans - Section
Not archived · Council Link
PROPOSED SECTION
Plans - Section
Not archived · Council Link
PROPOSED SECTION
Plans - Section
Not archived · Council Link
PROPOSED SECTION
Plans - Section
Not archived · Council Link
PROPOSED SECTION
Plans - Section
Not archived · Council Link
PROPOSED SECTION
Plans - Section
Not archived · Council Link
PROPOSED SECTION
Plans - Section
Not archived · Council Link
PROPOSED SIDE ELEAVTION
Plans - Elevations
Not archived · Council Link
PROPOSED SIDE ELEVATION
Plans - Elevations
Not archived · Council Link
PROPOSED SIDE ELEVATIONS
Plans - Elevations
Not archived · Council Link
R01 - TRANSPORT STATEMENT - STLALE - 2025-08-05
Transport Assessment
Not archived · Council Link
R02 - TRAVEL PLAN - STLALE - 2025-08-05
Travel Plan
Not archived · Council Link
ROOF AND GROUND FLOOR
Plans - Combined
Not archived · Council Link
ROOF AND GROUND FLOOR
Plans - Combined
Not archived · Council Link
Plans - Site Layout
Archived · Council Link
Plans - Site Layout
Archived · Council Link
Plans - Site Layout
Archived · Council Link
Plans - Site Layout
Archived · Council Link
Plans - Site Layout
Archived · Council Link
Plans - Site Layout
Archived · Council Link
Plans - Site Layout
Archived · Council Link
SOCIETY FOR PROTECTION OF ANCIENT BUILDINGS
Statutory Consultee Response
Not archived · Council Link
SOFTSCAPE PLAN
Plans - Other
Not archived · Council Link
SOFTSCAPE PLAN
Plans - Other
Not archived · Council Link
STANDARD CONSULTATION LETTER
Consultation
Not archived · Council Link
STANDARD CONSULTATION LETTER
Consultation
Not archived · Council Link
STANDARD CONSULTATION LETTER
Consultation
Not archived · Council Link
STANDARD CONSULTATION LETTER
Consultation
Not archived · Council Link
STANDARD CONSULTATION LETTER
Consultation
Not archived · Council Link
STANDARD CONSULTATION LETTER
Consultation
Not archived · Council Link
STANDARD CONSULTATION LETTER
Consultation
Not archived · Council Link
STANDARD CONSULTATION LETTER
Consultation
Not archived · Council Link
STANDARD CONSULTATION LETTER
Consultation
Not archived · Council Link
STANDARD CONSULTATION LETTER
Consultation
Not archived · Council Link
STANDARD CONSULTATION LETTER
Consultation
Not archived · Council Link
STREET ELEVATION
Plans - Other
Not archived · Council Link
STREET SCENE
Plans - Other
Not archived · Council Link
STREET SCENE
Plans - Other
Not archived · Council Link
SUDS COMMENTS
Statutory Consultee Response
Not archived · Council Link
SUMMARY AND VISUAL LANDSCAPE
Other Documents
Not archived · Council Link
SUSTAINABILITY STATEMENT DECEMBER 2025
Renewable Energy Statement
Not archived · Council Link
SUSTAINABILITY STATEMENT JANUARY 2025
Renewable Energy Statement
Not archived · Council Link
TOPOGRAPHICAL SURVEY
Plans - Other
Not archived · Council Link

Take Action

Make your voice heard. Authorities need to hear from people who support new homes.

✉️ Write Email in Support View on Council Portal