← Back to Spelthorne Borough Council

Status

Awaiting decision
Received
18 Dec 2025
New dwellings
n/a

Full Proposal

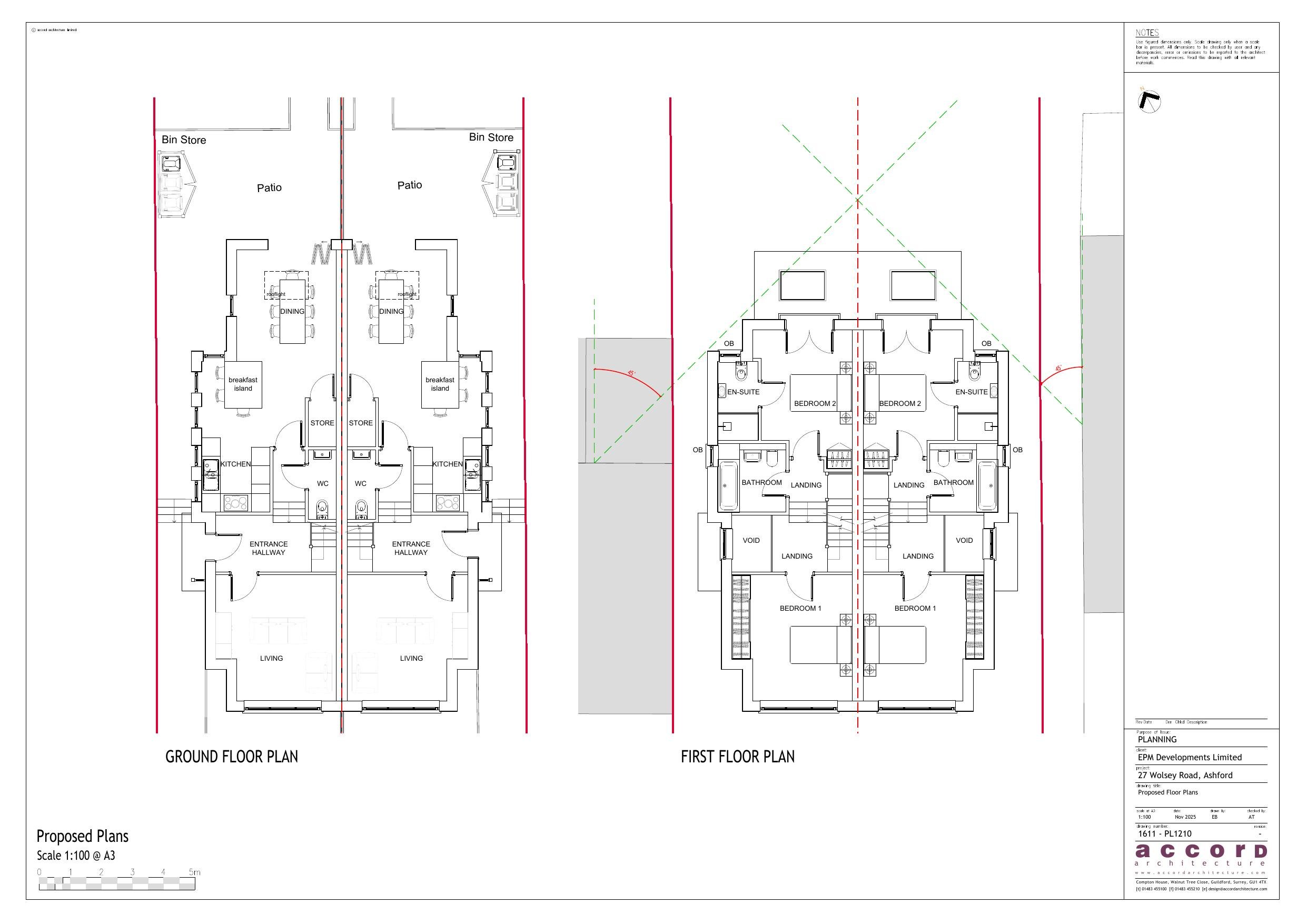
Demolition of existing detached 2 storey residential building and garage. Construction of a new custom 2 storey building with additional habitable accommodation in the roof space to create 2 semi-detached, 3-bed dwellings with bin and cycle storage, and amenity to front and rear.

Documents

1611 - FLOOD MAP PLANNING 2025
Flood Risk Assessment
Not archived · Council Link
1611 - FORM_1_CIL_ADDITIONAL_INFORMATION
CIL - Additional Information
Not archived · Council Link
1611 - ITEM_36_-_SBC_PROFORMA_FOR_SELF_BUILD_AND_CUSTOM_HOUSEBUILDING_APPLICATIO
Other Documents
Not archived · Council Link
ACKFUL ACK LETTER FOR FULL
Correspondence
Not archived · Council Link
APPLICATIONFORMREDACTED
Application Form
Not archived · Council Link
ATTACHMENTSUMMARY
Other Documents
Not archived · Council Link
DESIGN AND ACCESS STATEMENT
Design and Access Statement
Not archived · Council Link
EXISTING ELEVATIONS
Plans - Elevations
Not archived · Council Link
EXISTING FLOOR PLANS
Plans - Floor Plans
Not archived · Council Link
EXISTING SITE BLOCK PLAN
Plans - Block Plan
Not archived · Council Link
FEECALCULATION
Fee
Not archived · Council Link
Plans - Other
Archived · Council Link
LETTERS OF REPRESENTATION
Letters of Representation
Not archived · Council Link
PLANNING FIRE SAFETY STRATEGY
Fire Risk assessment
Not archived · Council Link
PROPOSED ELEVATIONS
Plans - Elevations
Not archived · Council Link
Plans - Floor Plans
Archived · Council Link
Plans - Floor Plans
Archived · Council Link
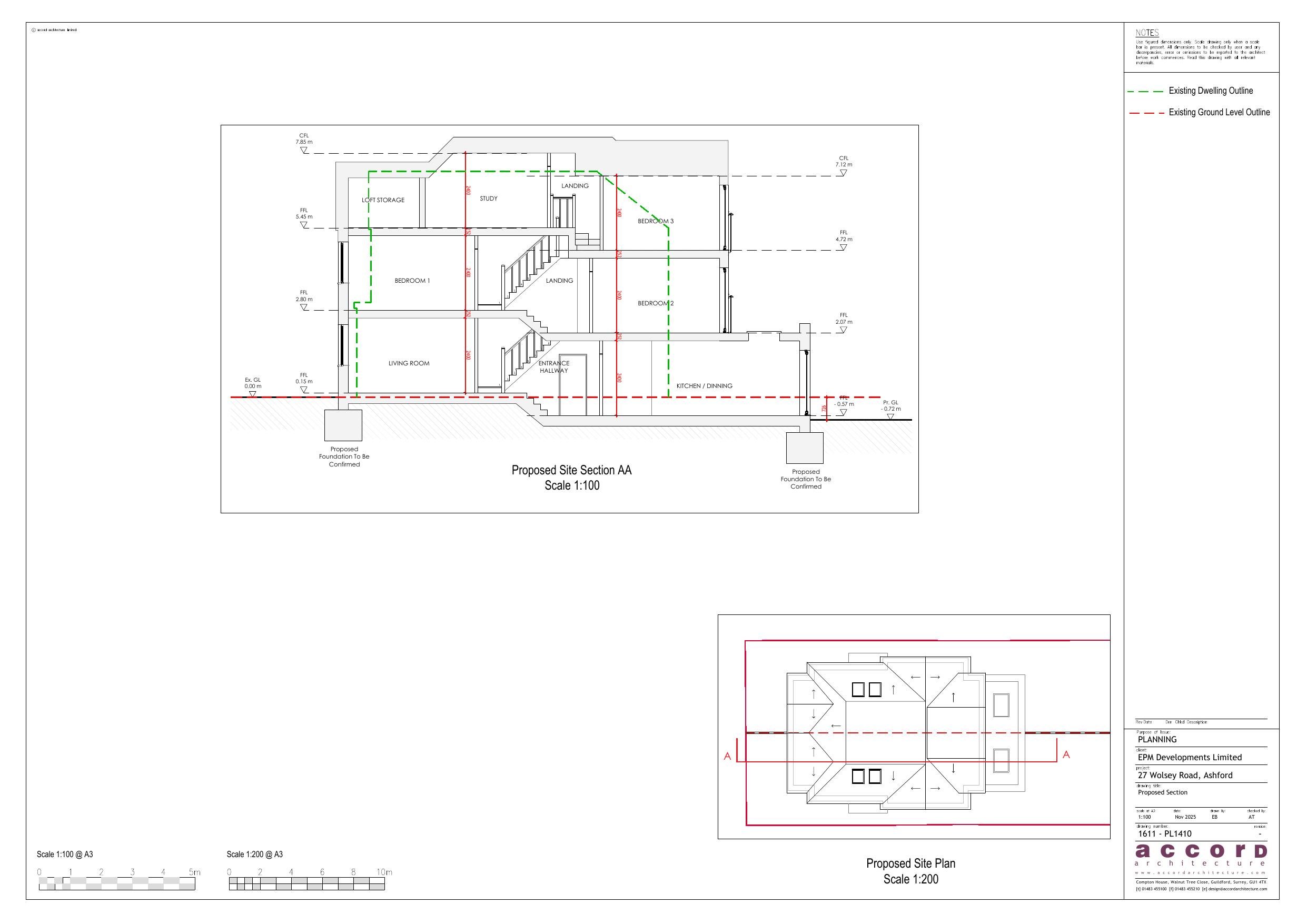
Plans - Section
Archived · Council Link
PROPOSED SITE BLOCK PLAN
Plans - Block Plan
Not archived · Council Link
Plans - Block Plan
Archived · Council Link
Plans - Block Plan
Archived · Council Link
SBC CC SPD - CHECKLIST 1 HOUSEHOLDER
Checklist
Not archived · Council Link
Plans - Location Plan
Archived · Council Link
STANDARD CONSULTATION LETTER
Consultation
Not archived · Council Link
STANDARD CONSULTATION LETTER
Consultation
Not archived · Council Link
STANDARD CONSULTATION LETTER
Consultation
Not archived · Council Link
STANDARD CONSULTATION LETTER
Consultation
Not archived · Council Link
STANDARD CONSULTATION LETTER
Consultation
Not archived · Council Link
STREETSCENE ELEVATIONS
Plans - Elevations
Not archived · Council Link

Take Action

Make your voice heard. Authorities need to hear from people who support new homes.

✉️ Write Email in Support View on Council Portal