← Back to St Albans City and District Council

Status

Unknown status
Received
n/a
New dwellings
n/a

Full Proposal

Planning Application - Valid From 02/04/2025

Documents

Application - householder (R)
Document
Not archived · Council Link
Consultation response - Arboriculture - 5/2025/0302
Document
Not archived · Council Link
Consultation response - Arboriculture - FW: Trees consultation Planning application ref: 5/2025/0302 at 98 Oakwood Road Bricket Wood AL2 3QA
Document
Not archived · Council Link
Consultation response - Highways - FW: Response To Application Number 5/2025/0302 at 98 OAKWOOD ROAD BRICKET WOOD ST. ALBANSAL2 3QA
Document
Not archived · Council Link
Decision notice - 0302
Document
Not archived · Council Link
Officer delegated report - 0302
Document
Not archived · Council Link
Planning Comment Public - 96 Oakwood Road
Document
Not archived · Council Link
Plans - amended - proposed block and site location
Document
Not archived · Council Link
Plans - amended - proposed ground and first floor
Document
Not archived · Council Link
Plans - elevations existing
Document
Not archived · Council Link
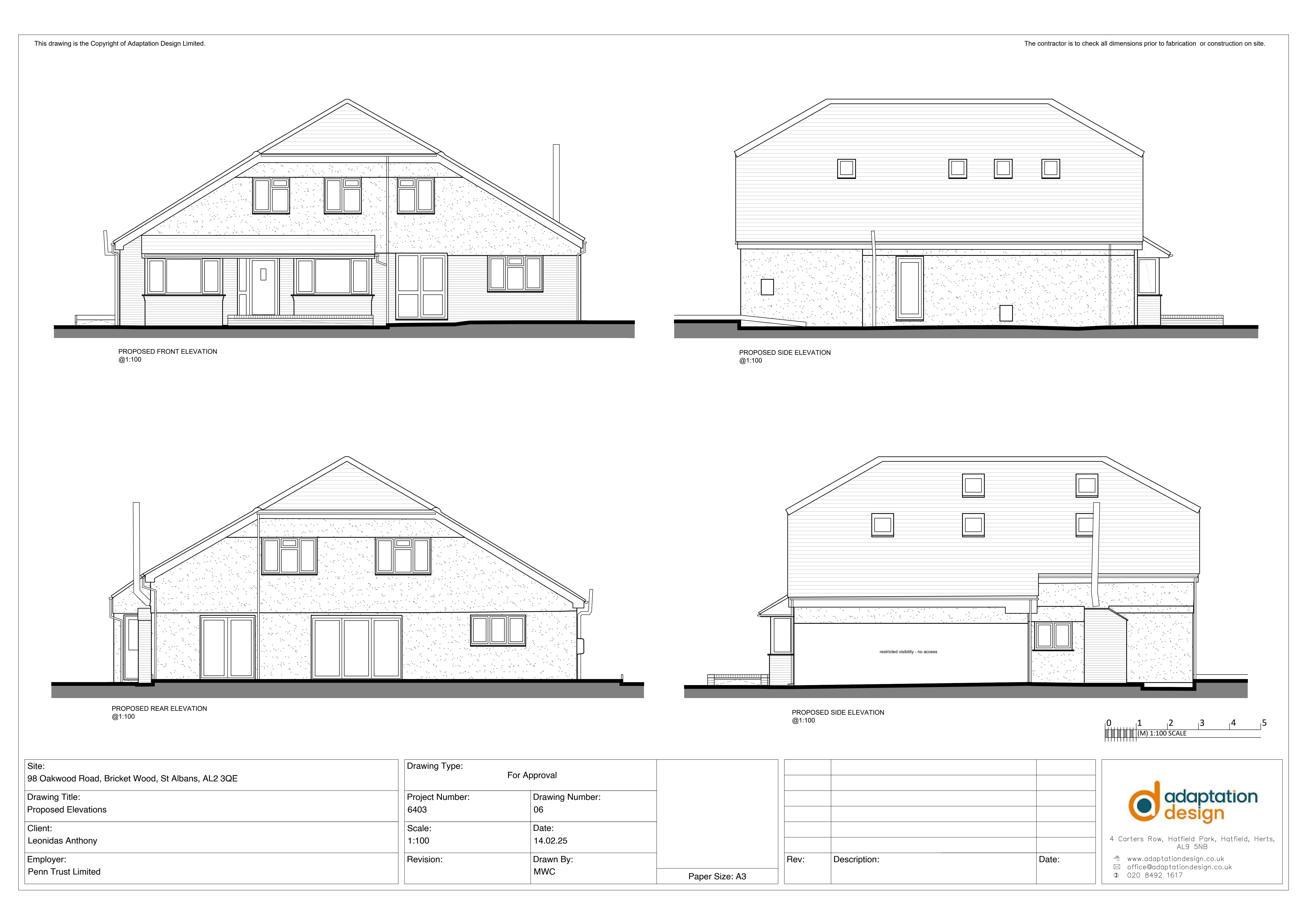
Plans - elevations proposed
Document
Not archived · Council Link
Plans - floor plans existing
Document
Not archived · Council Link
Plans - site location - Existing
Document
Not archived · Council Link
Plans - superseded (see Plans - amended)
Document
Not archived · Council Link
Plans - superseded (see Plans - amended) - Proposed
Document
Not archived · Council Link
Summary of consultations - 0302
Document
Not archived · Council Link
Summary of consultations - 0302
Document
Not archived · Council Link

Take Action

Make your voice heard. Authorities need to hear from people who support new homes.

✉️ Write Email in Support View on Council Portal