← Back to St Albans City and District Council

Status

Unknown status
Received
n/a
New dwellings
n/a

Full Proposal

Planning Application - Valid From 02/12/2025

Documents

Application - householder and LB consent (R)
Document
Not archived · Council Link
Consultation response - Design/Conservation - FW: 5.2025.1693 174 FIshpool Street.docx
Document
Not archived · Council Link
Plans - block
Document
Not archived · Council Link
Plans - elevations existing & proposed
Document
Not archived · Council Link
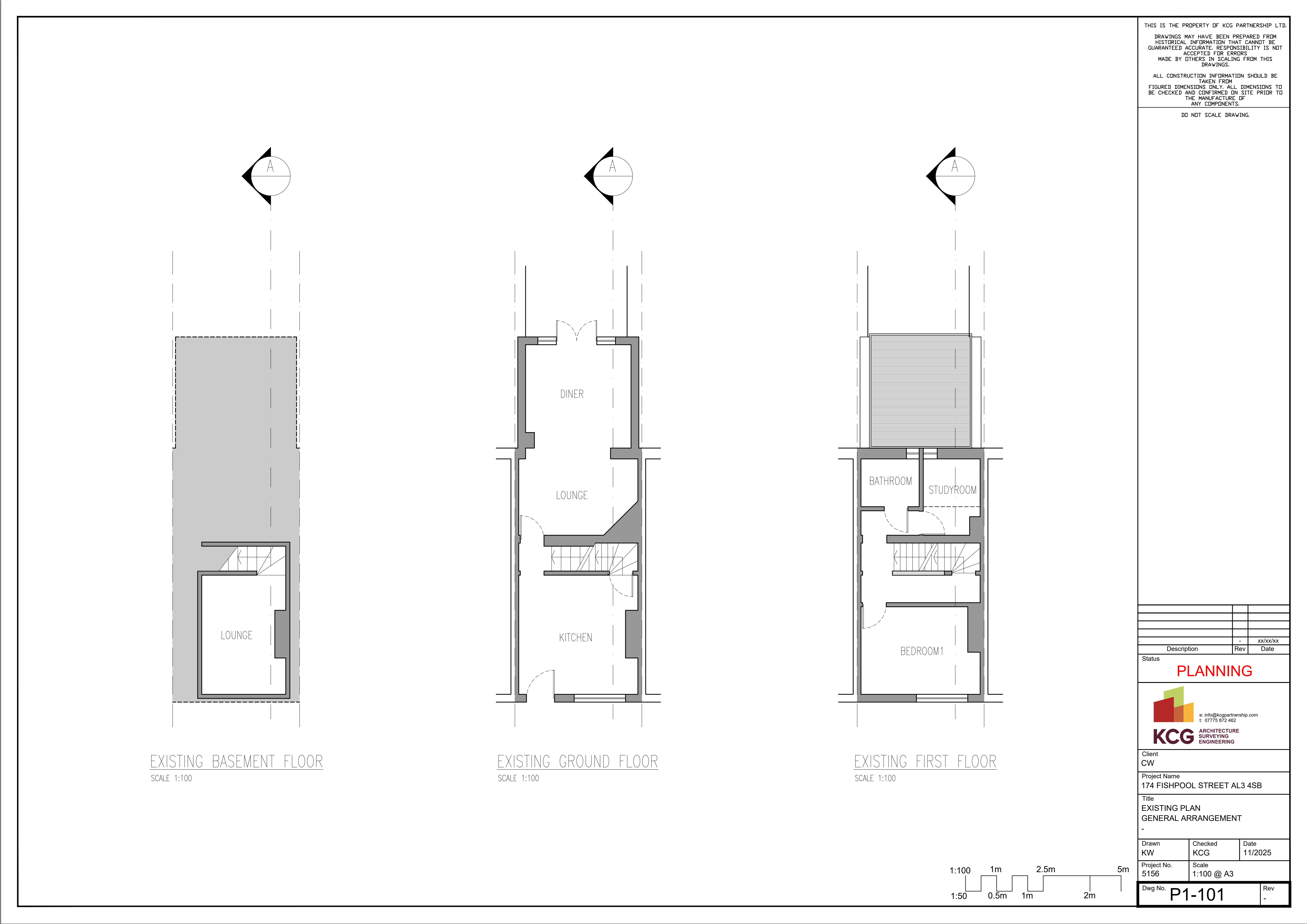
Plans - floor plans existing & proposed
Document
Not archived · Council Link
Plans - floor plans existing & proposed
Document
Not archived · Council Link
Plans - site location
Document
Not archived · Council Link
Reports/statements - other (R) - Heritage statement
Document
Not archived · Council Link
Site and press notice - 1693
Document
Not archived · Council Link
Summary of consultations - 1693
Document
Not archived · Council Link

Take Action

Make your voice heard. Authorities need to hear from people who support new homes.

✉️ Write Email in Support View on Council Portal