← Back to St Helens Borough Council
Full Proposal
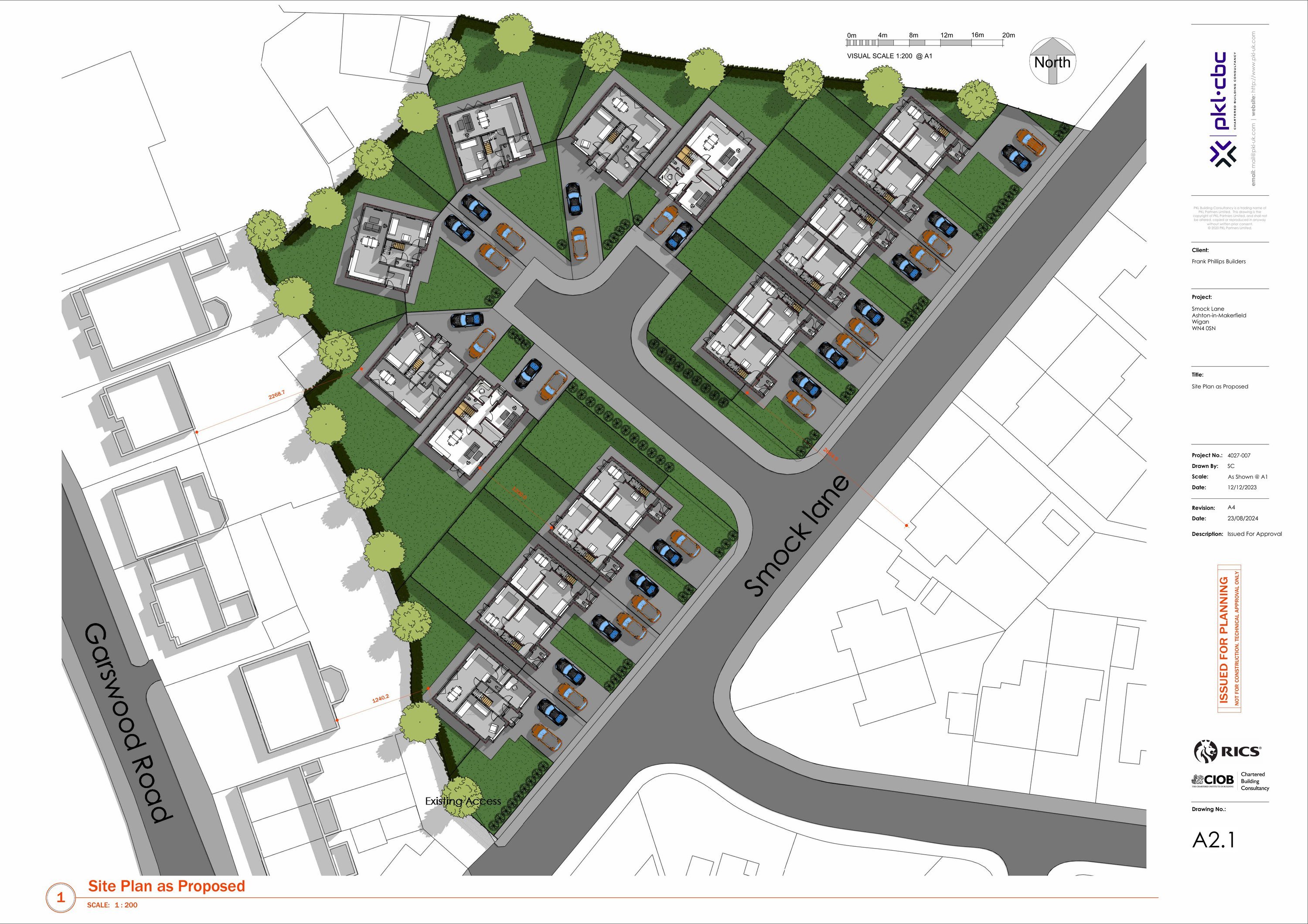
Proposed residential development of 17 dwellinghouses with associated landscaping and access from Smock Lane following removal of bowling green and allotments.
Documents
31626 COAL MINING RISK ASSESSMENT FOR SMOCK LANE
Report
AFFORDABLE HOUSING STATEMENT
Other
AGENT RESPONSE TO CONSULTEE COMMENTS
Correspondance from Agent/Applicant
AIR QUALITY OFFICER
Consultee Comment
APPLICATIONFORMREDACTED
Application Form
BIODIVERSITY METRIC CALCULATION TOOL V2
Other
BIODIVERSITY NET GAIN ASSESSMENT
Other
COAL AUTHORITY COMMENTS
Consultee Comment
CONTAMINATED LAND OFFICER COMMENT
Consultee Comment
CULTURE AND WELLBEING RESPONSE
Consultee Comment
EDUCATION RESPONSE
Consultee Comment
EXISTING BLOCK PLAN
Existing Block Plan
EXISTING STREET VIEW
Other
HIGHWAYS RESPONSE
Consultee Comment
HOUSING RESPONSE
Consultee Comment
LANDSCAPING PLAN (INCLUDING TRACKING)
Other
LLFA COMMENTS REVIEW 1
Consultee Comment
LLFA RESPONSE - REVIEW 2
Consultee Comment
MEAS COMMENTS
Consultee Comment
NOISE IMPACT ASSESSMENT
Noise Information
NOISE OFFICER RESPONSE
Consultee Comment
OBJECTION COMMENTS
Objection Comment
OBJECTION COMMENTS
Objection Comment
OBJECTION COMMENTS
Objection Comment
OBJECTION COMMENTS
Objection Comment
OBJECTION COMMENTS
Objection Comment
OBJECTION COMMENTS
Objection Comment
OBJECTION COMMENTS
Objection Comment
OBJECTION EMAIL
Objection Comment
OBJECTION EMAIL
Objection Comment
OPEN SPACE STATEMENT
Other
PARISH COUNCIL COMMENTS
Consultee Comment
PHASE 1 DESK STUDY REPORT
Report
PKL4027-007-A1 ORDANANCE SURVEY PLAN
Drawing
PKL4027-007-A3 SERIES - REV-A4 - HOUSE TYPE A
Drawing
PKL4027-007-A4 SERIES - REV-A4 - HOUSE TYPE B
Drawing
PKL4027-007-A5 SERIES - REV-A4 - HOUSE TYPE C
Drawing
PKL4027-007-A6 SERIES - REV-A4 - HOUSE TYPE D
Drawing
PLANNING STATEMENT
Planning Statement
PRELIMINARY ECOLOGICAL APPRAISAL
Report
PROPOSED BLOCK PLAN
Proposed Block Plan
PROPOSED STREET VIEW
Other
PROPOSED STREET VIEW
Other
SPORT ENGLAND RESPONSE
Consultee Comment
STATEMENT OF FACT - CURRENT OWNERS
Other
TREES AND WOODLANDS OFFICER
Consultee Comment
URBAN DESIGN COMMENTS
Consultee Comment
UU RESPONSE
United Utilities Response
Take Action
Make your voice heard. Authorities need to hear from people who support new homes.