← Back to St Helens Borough Council
Full Proposal
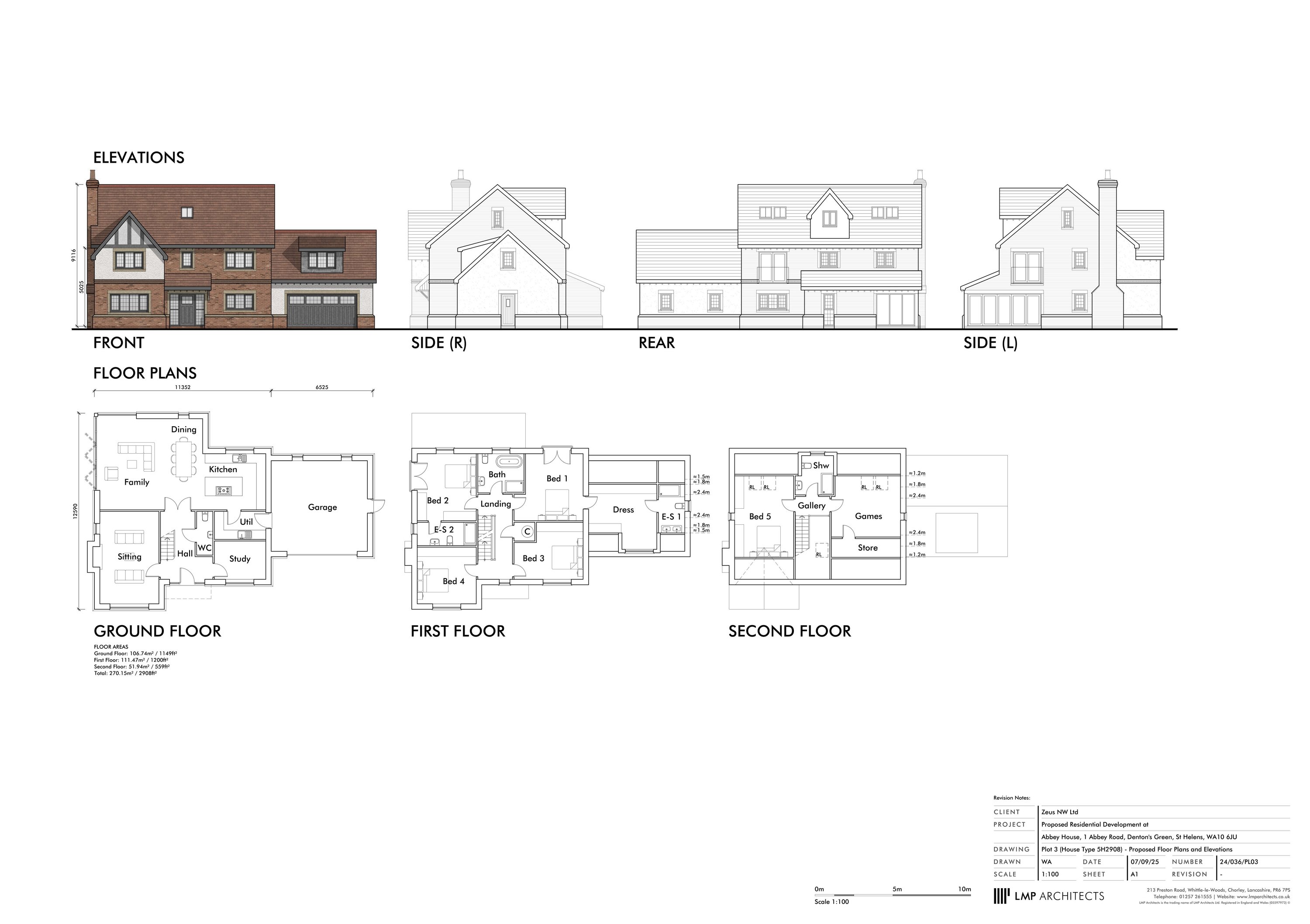
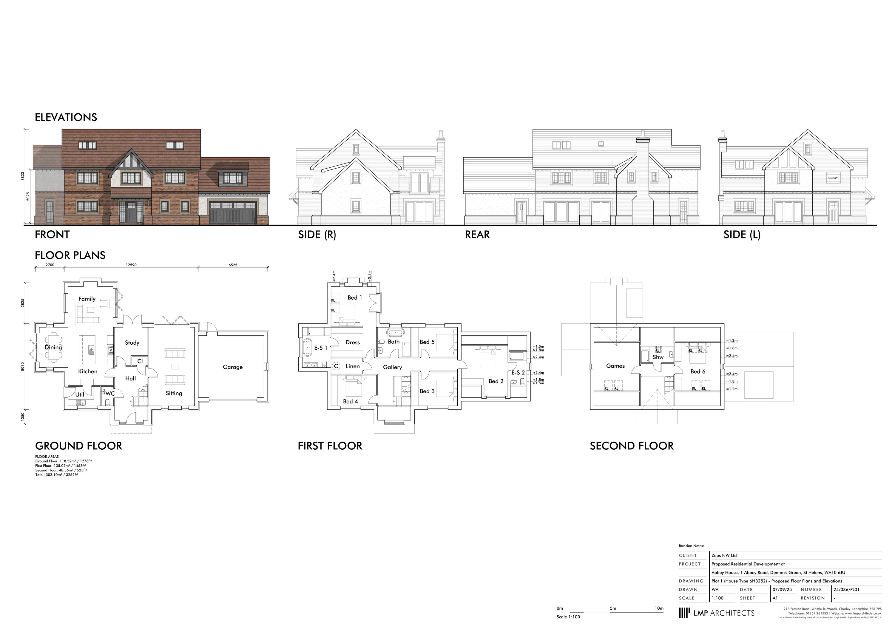
Demolition of existing property and erection of 4 houses.
Documents
500M BUFFER ZONE AND TPOS
Other
APPLICATIONFORMREDACTED
Application Form
ASBESTOS SURVEY
Technical Report
CADENT RESPONSE
Consultee Comment
COAL AUTHORITY RESPONSE
Coal Authority Response
CONDITION ASSESSMENT SHEET 01 OF 02
Other
CONDITION ASSESSMENT SHEET 02 OF 02
Other
CONSERVATION RESPONSE
Consultee Comment
CONTAMINATED LAND RESPONSE
Consultee Comment
DETACHED GARAGE - PROPOSED FLOOR PLAN AND ELEVATIONS
Other
DRAINAGE STRATEGY
Drainage Information
ECOLOGIST RESPONSE TO MEAS COMMENTS
Ecology Information
EHO AIR QUALITY RESPONSE
Consultee Comment
EHO CONT LAND RESPONSE
Consultee Comment
EVENING ACTIVITY AND BAT EMERGENCE SURVEY
Other
FIRE AND RESCUE RESPONSE
Consultee Comment
HERITAGE APPRAISAL AND HERITAGE IMPACT ASSESSMENT
Other
HIGHWAYS RESPONSE
Consultee Comment
LEAD LOCAL FLOOD AUTHORITY RESPONSE
Consultee Comment
LOCATION PLAN
Location Plan
MEAS RESPONSE
Consultee Comment
NOISE OFFICER RESPONSE
Consultee Comment
PRELIMINARY ECOLOGICAL APPRAISAL
Other
PRELIMINARY RISK ASSESSMENT
Technical Report
PROPOSED SITE LAYOUT
Other
PUBLIC RIGHTS OF WAY RESPONSE
Consultee Comment
REVISED PROPOSED SITE LAYOUT
Revised Drawing
SUPERCEDED PROPOSED SITE LAYOUT
Other
TREES AND WOODLANDS OFFICER RESPONSE
Consultee Comment
UNITED UTILITIES RESPONSE
United Utilities Response
Take Action
Make your voice heard. Authorities need to hear from people who support new homes.