← Back to St Helens Borough Council

Status

Awaiting decision
Received
29 days ago
New dwellings
n/a

Full Proposal

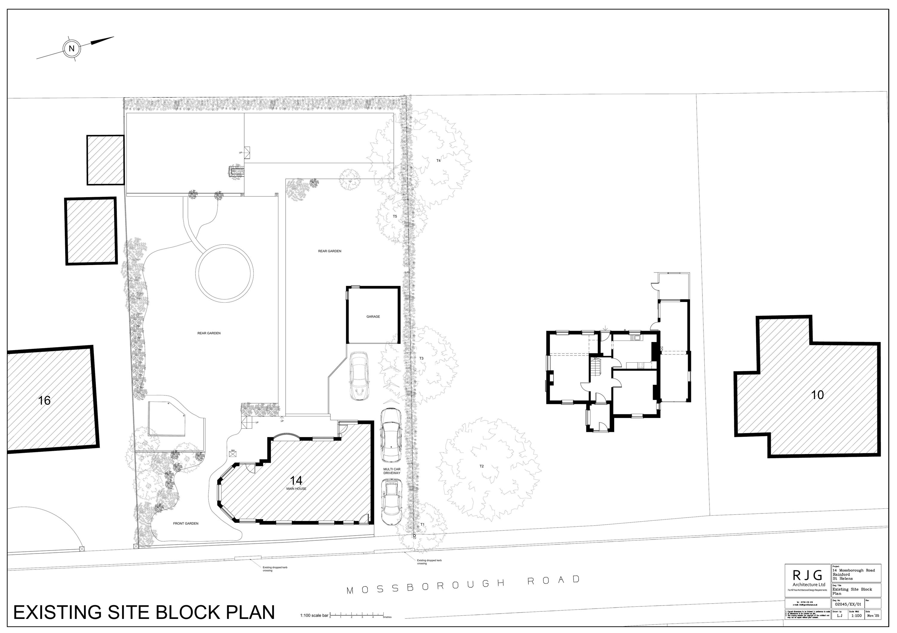
Erection of a new build detached dwelling following the demolition of existing dwelling

Documents

APPLICATION FORM REDACTED
Application Form
Not archived · Council Link
ARBORICULTURAL REPORT
Other
Not archived · Council Link
EXISTING & PROPOSED STREET VIEW ELEVATION
Other
Not archived · Council Link
Other
Archived · Council Link
EXISTING TREE CONSTRAINTS PLAN
Other
Not archived · Council Link
HIGHWAYS RESPONSE
Consultee Comment
Not archived · Council Link
LOCATION PLAN
Other
Not archived · Council Link
PLANNING STATEMENT
Other
Not archived · Council Link
PRELIMINARY ROOST ASSESSMENT
Other
Not archived · Council Link
Other
Archived · Council Link
SELF-BUILD/CUSTOM-BUILD STATEMENT
Other
Not archived · Council Link
TREE PROTECTION PLAN
Other
Not archived · Council Link
TREE REMOVAL PLAN
Other
Not archived · Council Link

Take Action

Make your voice heard. Authorities need to hear from people who support new homes.

✉️ Write Email in Support View on Council Portal